← Back to London Borough of Redbridge
Summary
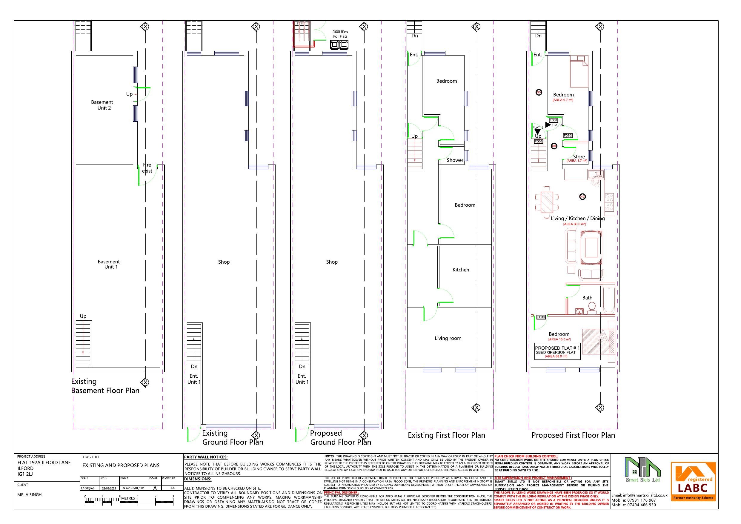
Convert one residential flat into two self-contained flats with refuse and cycle storage.
Full Proposal
Conversion of existing residential flat in to two self-contained flats with associated waste/refuse and cycle store (summary)
Documents
Combined plan - floor plan
Combined plan - floor plan
Combined plan - floor plan
804-EXISTING AND PROPOSED ELEVATIONS.pdf
Combined plan - elevation
805-EXISTING AND PROPOSED ELEVATIONS.pdf
Combined plan - elevation
806-EXISTING AND PROPOSED ELEVATIONS.pdf
Combined plan - elevation
807-EXISTING SECTION.pdf
Existing plan - elevation
808-PROPOSED SECTION.pdf
Proposed plan - elevation
809-CYCLE STORAGE.pdf
Uncategorized
810-EXISTING BLOCK PLAN.pdf
Site/block plan
811-PROPOSED BLOCK PLAN.pdf
Site/block plan
812-LOCATION PLAN.pdf
Site/block plan
ApplicationFormRedacted.pdf
Application form
CIL FORM.pdf
CIL supporting document
DESIGN AND ACCESS SATATEMENT.pdf
Design and access statement
FIRE SAFETY STATEMENT.pdf
Fire statement
FLOOD RISK ASSESSMENT.pdf
Flood risk assessment
redbridge_suds_proforma_192A Ilford.pdf
SuDS supporting information
SUDS STRATEGY_.pdf
SuDS supporting information
Take Action
Make your voice heard. Authorities need to hear from people who support new homes.