← Back to London Borough of Redbridge

Status

Under Consideration
Received
18 Dec 2025
New dwellings
n/a

Full Proposal

Change of use from a single dwellinghouse to a six-bedroom small HMO with associated waste/refuse, cycle store and amenity space (Retrospective) (summary)

Documents

ApplicationFormRedacted.pdf
Application form
Not archived · Council Link
hmo management plan
Supporting document
Not archived · Council Link
Location Plan.pdf
Site/block plan
Not archived · Council Link
Planning Statement.pdf
Planning statement
Not archived · Council Link
Proposed Elevations (Same as Existing).pdf
Proposed plan - elevation
Not archived · Council Link
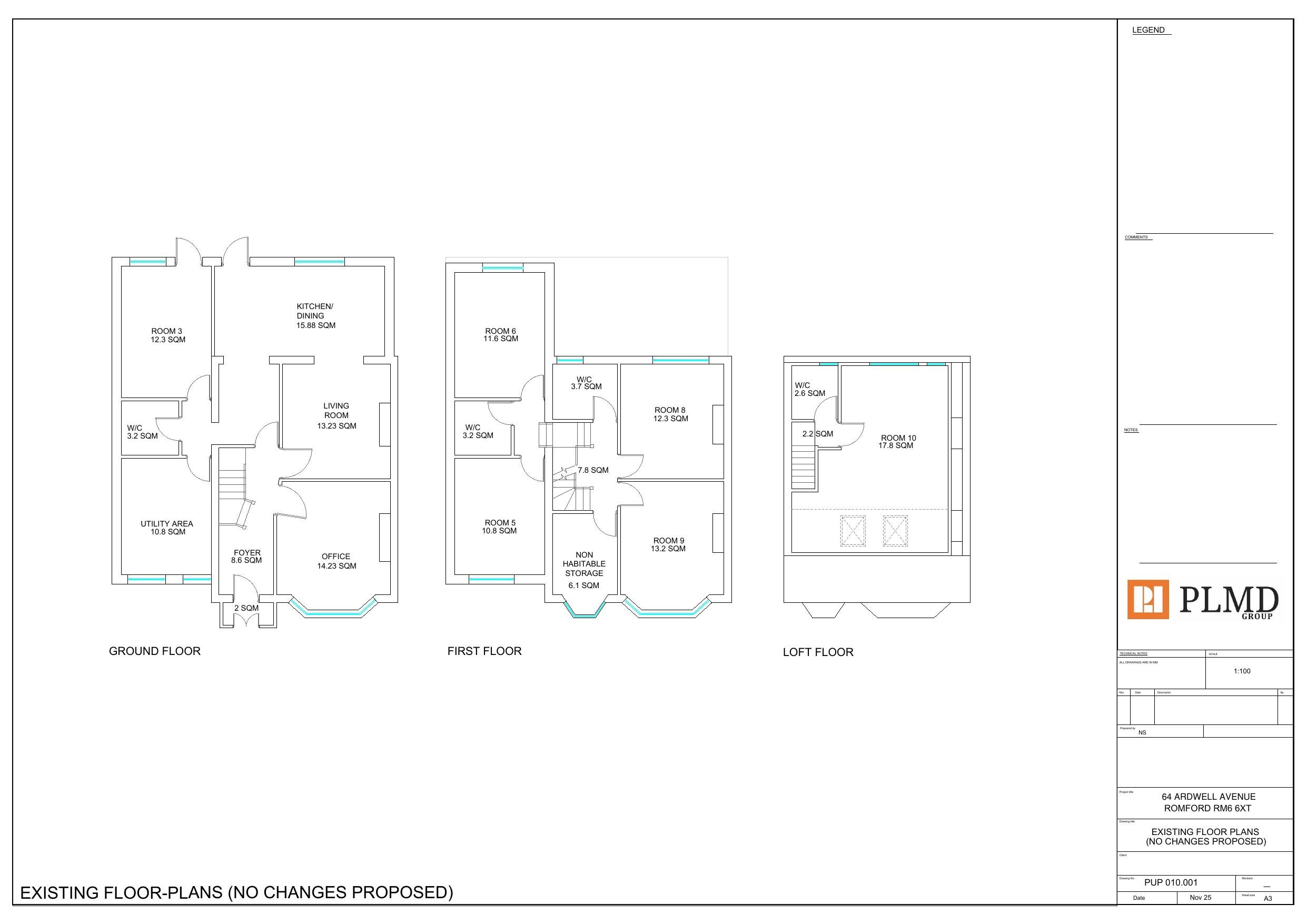
Existing plan - floor plan
Archived · Council Link
Proposed Site Layout Plan (Same as Existing).pdf
Proposed plan - floor plan
Not archived · Council Link

Take Action

Make your voice heard. Authorities need to hear from people who support new homes.

✉️ Write Email in Support View on Council Portal