← Back to Redditch Borough Council

Status

Pending Consideration
Received
12 Nov 2025
New dwellings
n/a

Full Proposal

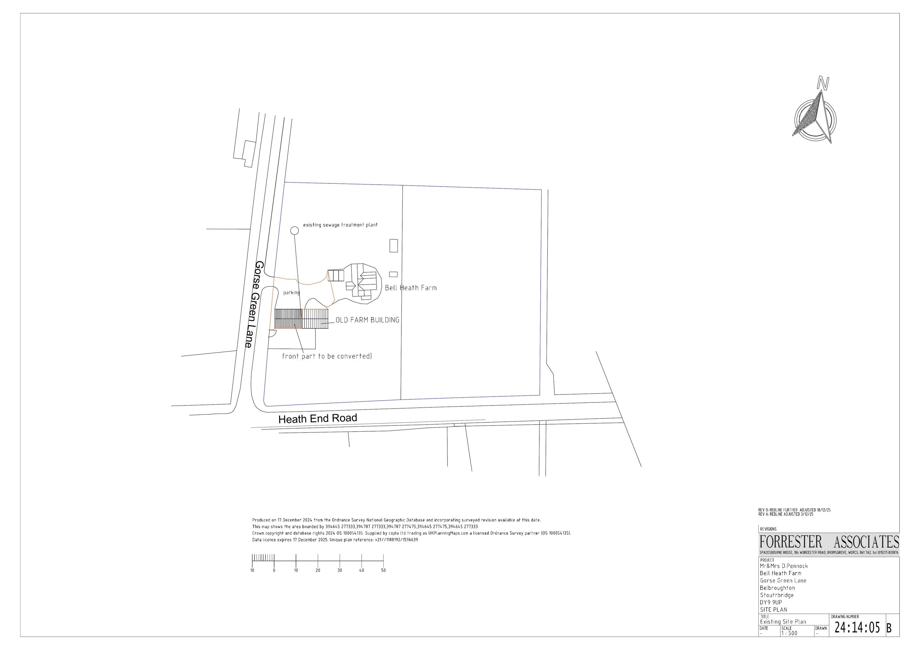
Conversion of part of old agricultural building currently used as household and garden store into a yoga studio, installation of air source heat pump, installation of solar panels, and associated works

Documents

24 14 01 EX PLAN
Plans
Not archived · Council Link
24 14 02 EX ELEVATIONS
Plans
Not archived · Council Link
24 14 03 PROPOSED PLAN AND SECTION
Plans
Not archived · Council Link
APPLICATIONFORMREDACTED
Application Form
Not archived · Council Link
DESIGN ACCESS PLANNING ENERGY WATER MANAGEMENT STATEMENT
Plans
Not archived · Council Link
Plans
Archived · Council Link
IMAGES OF BUILDING/ SITE
Supporting Information
Not archived · Council Link
IMAGES OF BUILDING/ SITE
Supporting Information
Not archived · Council Link
LOCATION PLAN
Plans
Not archived · Council Link
PLANNING STATEMENT
Supporting Information
Not archived · Council Link
PROPOSED ELEVATIONS
Plans
Not archived · Council Link
Plans
Archived · Council Link
STRUCTURAL REPORT
Supporting Information
Not archived · Council Link

Take Action

Make your voice heard. Authorities need to hear from people who support new homes.

✉️ Write Email in Support View on Council Portal