← Back to Redditch Borough Council

Status

Pending Consideration
Received
22 days ago
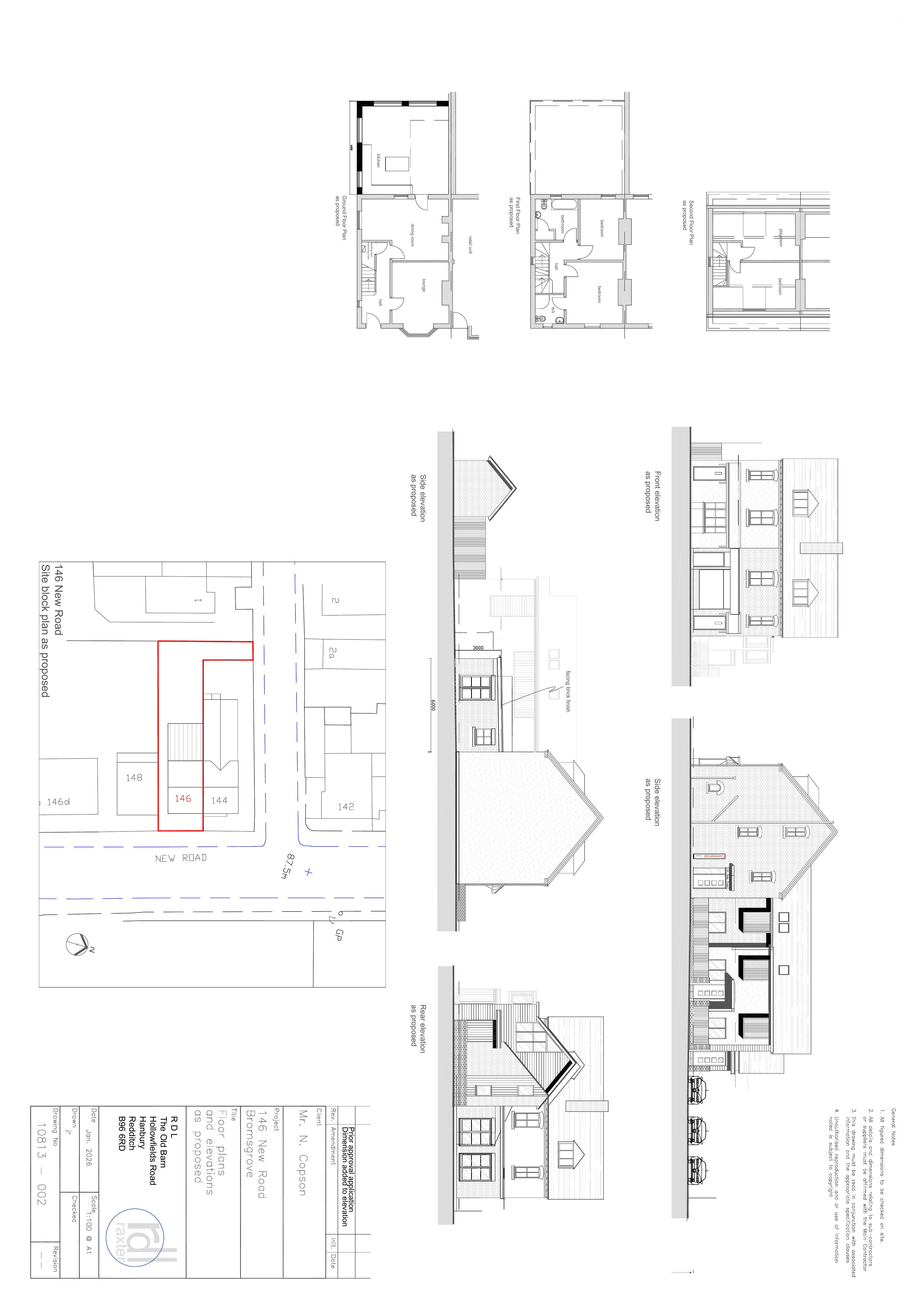
New dwellings
n/a

Full Proposal

Single storey rear extension. Walls in facing brick to match existing. Upvc double glazed windows and doors , arched brick window heads, upvc fascia, GRP flat roof finish

Documents

APPLICATION FORM - REDACTED
Application Form
Not archived · Council Link
Plans
Archived · Council Link

Take Action

Make your voice heard. Authorities need to hear from people who support new homes.

✉️ Write Email in Support View on Council Portal