← Back to London Borough of Richmond upon Thames

Status

Manager Review Decision
Received
17 Mar 2025
New dwellings
n/a

Summary

Demolition of existing bungalow and erection of a three-storey replacement dwelling (no net gain).

Full Proposal

Demolition of existing bungalow and the erection of a three-storey replacement dwelling

Documents

2 Coleshill Road
Public Comment - Object
Not archived · Council Link
2 Coleshill Road
Public Comment - Observation
Not archived · Council Link
23 Hampton Road
Public Comment - Object
Not archived · Council Link
3D Photo Front no tree
Photo
Not archived · Council Link
3D Photo with Tree
Photo
Not archived · Council Link
4, Teddington Hall
Public Comment - Object
Not archived · Council Link
5 Shrewsbury House, 16 Hampton road
Public Comment - Object
Not archived · Council Link
5 Shrewsbury House, 16 Hampton road
Public Comment - Object
Not archived · Council Link
Application Form - Without Personal Data
Application Form - Redacted
Not archived · Council Link
Arboricultural Impact Assessment
Report
Not archived · Council Link
CIL FORM
Community Infrastructure Levy Form
Not archived · Council Link
Construction Managment Plan
Report
Not archived · Council Link
Design and access statement
Report
Not archived · Council Link
Ecological Appraisal Report
Report
Not archived · Council Link
Elevation (Side) - Proposed
Photo
Not archived · Council Link
Energy Statement
Report
Not archived · Council Link
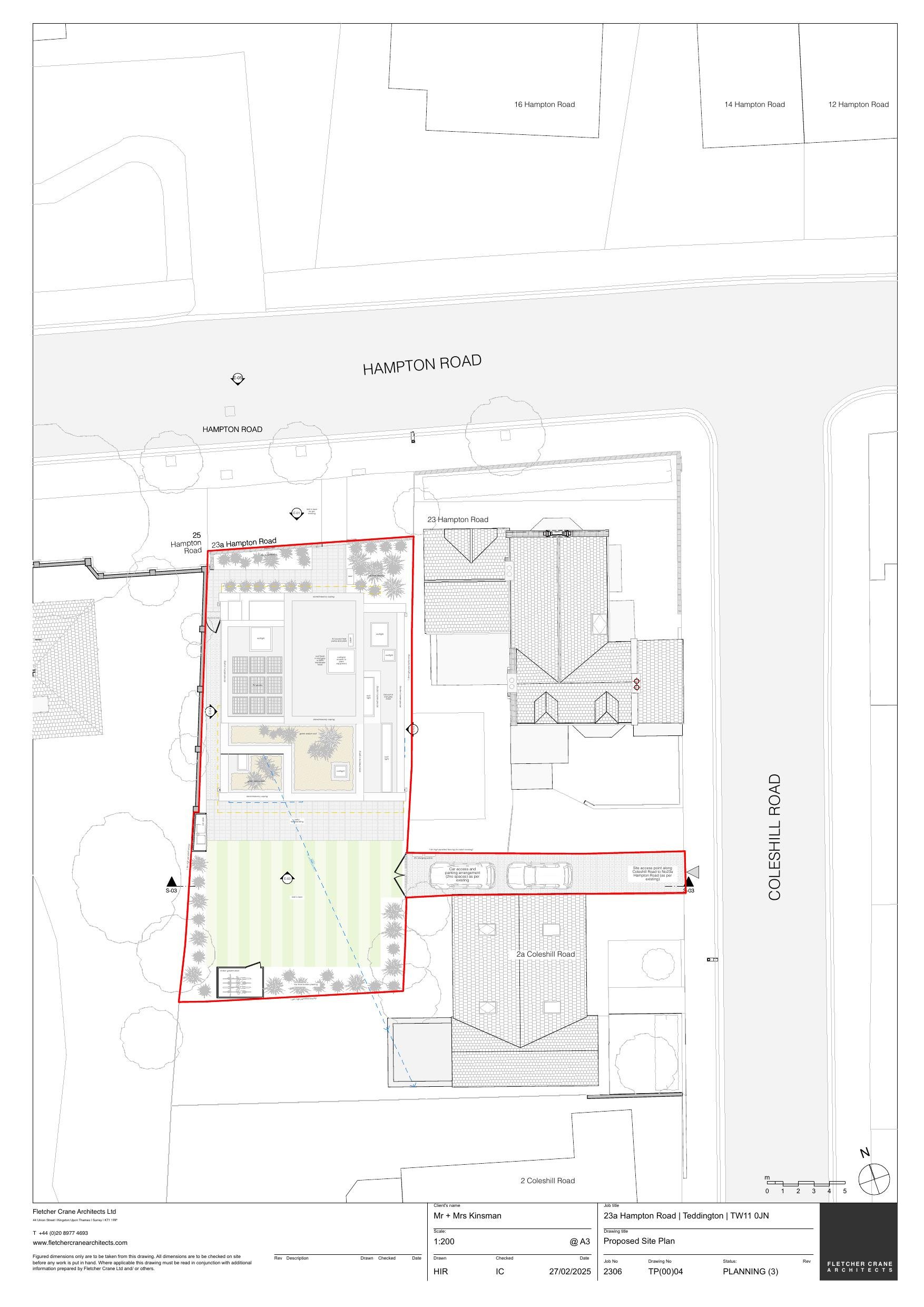
Existing and Proposed Block Plan TP(00)02 A
Revised Drawing
Not archived · Council Link
Existing First Floor Plan TP(10)01
Submitted Drawing
Not archived · Council Link
Existing Front & Side Elevations TP(11)01
Submitted Drawing
Not archived · Council Link
Existing Ground Floor Plan TP(00)00
Submitted Drawing
Not archived · Council Link
Existing Rear & Side Elevations TP(11)02
Submitted Drawing
Not archived · Council Link
Existing Roof Plan TP(10)02
Submitted Drawing
Not archived · Council Link
Existing/Proposed Block Plan TP(11)02
Superseded Drawing
Not archived · Council Link
Financial Viability Assessment
Report
Not archived · Council Link
Fire Statement
Report
Not archived · Council Link
Flats a and b, 12 Hampton Road
Public Comment - Object
Not archived · Council Link
Flood risk assessment
Report
Not archived · Council Link
Heritage statement
Report
Not archived · Council Link
Location Plan TP(00)01
Submitted Drawing
Not archived · Council Link
Photo Corner 3D
Photo
Not archived · Council Link
Photo Side A 3D
Photo
Not archived · Council Link
Photo Side A 3D Tree
Photo
Not archived · Council Link
Planning Design Access Statement
Report
Not archived · Council Link
Proposed East Side Elevation TP(11)22
Superseded Drawing
Not archived · Council Link
Proposed First Floor Plan TP(10)21
Superseded Drawing
Not archived · Council Link
Proposed First Floor TP(10)20 A
Revised Drawing
Not archived · Council Link
Proposed Front Elevation North TP(11)21 B
Revised Drawing
Not archived · Council Link
Proposed Front Elevation North TP(11)21A
Superseded Drawing
Not archived · Council Link
Proposed Front Elevation TP(11)21
Superseded Drawing
Not archived · Council Link
Proposed Ground Floor Plan TP(10)20
Superseded Drawing
Not archived · Council Link
Proposed Ground Floor TP(10)04 A
Revised Drawing
Not archived · Council Link
Proposed Rear 3D
Photo
Not archived · Council Link
Proposed Rear Elevation South TP(11)23 B
Revised Drawing
Not archived · Council Link
Proposed Rear Elevation TP(11)23
Superseded Drawing
Not archived · Council Link
Proposed Roof Plan TP(10)23
Superseded Drawing
Not archived · Council Link
Proposed Roof Plan TP(10)23 A
Revised Drawing
Not archived · Council Link
Proposed Second Floor Plan TP(10)22
Superseded Drawing
Not archived · Council Link
Proposed Second Floor TP(10)22 A
Revised Drawing
Not archived · Council Link
Proposed Section 01 TP(12)21
Superseded Drawing
Not archived · Council Link
Proposed Section 01 TP(12)21 A
Revised Drawing
Not archived · Council Link
Proposed Side Elevation East TP(11)22 B
Revised Drawing
Not archived · Council Link
Proposed Side Elevation East TP(11)22A
Superseded Drawing
Not archived · Council Link
Proposed Side Elevation West TP(11)24 B
Revised Drawing
Not archived · Council Link
Proposed Side Elevation West TP(11)24A
Superseded Drawing
Not archived · Council Link
Superseded Drawing
Archived · Council Link
Superseded Drawing
Archived · Council Link
Revised Drawing
Archived · Council Link
Proposed Street Elevation TP(11)25
Superseded Drawing
Not archived · Council Link
Proposed Street Elevation TP(11)25A
Superseded Drawing
Not archived · Council Link
Proposed Street Elevatoin TP(11)25 B
Revised Drawing
Not archived · Council Link
Proposed West Side Elevation TP(11)24
Superseded Drawing
Not archived · Council Link
Residential Development Standards
Report
Not archived · Council Link
S106 Unilateral Undertaking
Legal Document
Not archived · Council Link
Sustainable Drainage Assessment
Report
Not archived · Council Link
Transport assessment
Report
Not archived · Council Link
Tree Protection Plan 02
Submitted Drawing
Not archived · Council Link
TW11 0JN, 4 TEDDINGTON HALL (OBJECTION TO REVISED PLANS)
Public Comment - Object
Not archived · Council Link

Take Action

Make your voice heard. Authorities need to hear from people who support new homes.

✉️ Write Email in Support View on Council Portal