← Back to London Borough of Richmond upon Thames
Status
Pending Consideration
Summary
Redevelopment to erect two 2.5‑storey semi‑detached dwellings.
Full Proposal
Demolition of existing dwelling and redevelopment of the site to erect 2no 2.5 storey semi-detached dwellings
Documents
13 Strawberry Vale
Public Comment - Support
Affordable housing statement
Affordable Housing Statement
APPENDIX D: Groundwater Flood Risk Mapping=APPENDIX-2
Report
APPENDIX D: Groundwater Flood Risk Mapping=APPENDIX-3
Report
APPENDIX D: Groundwater Flood Risk Mapping=APPENDIX-4
Report
APPENDIX D: Groundwater Flood Risk Mapping=APPENDIX-5
Report
Application Form - Without Personal Data
Application Form - Redacted
Arboricultural Impact Assessment Rev 4
Report
ARBORICULTURAL IMPACT ASSESSMENT STATEMENT AND TREE PROTECTION PLAN
Report
Archaeological assessment
Report
BAT EMERGENCE SURVEY REPORT
Report
Biodiversity Net Gain Assessment Report
Report
BNG spreadsheet
Specifications
CAVAT Full Method Project Sheet
Report
CIL FORM
Application Form
Construction Method Statement
Report
Covering letter
Correspondence
Design and access statement-PART-1
Superseded
Design and access statement-PART-2
Superseded
Design and access statement-PART-3
Superseded
ENERGY STRATEGY REPORT
Report
Environment Agency Consult
Consultee
EXISTING & PROPOSED SIDE ELEVATIONS- NORTH=PL-023
Superseded Drawing
EXISTING & PROPOSED SIDE ELEVATIONS- SOUTH=PL-024
Superseded Drawing
EXISTING & PROPOSED STREET ELEVATIONS=PL-027
Submitted Drawing
Existing and Proposed Garden Elevations PL-022
Superseded Drawing
Existing and Proposed Garden Elevations PL-022 A
Revised Drawing
Existing and Proposed Garden Elevations PL-028 A
Revised Drawing
EXISTING AND PROPOSED GARDEN ELEVATIONS=PL-028
Submitted Drawing
Existing and Proposed Side Elevations - North - PL-023 A
Revised Drawing
Existing and Proposed Side Elevations - South - PL-024 A
Revised Drawing
Existing and Proposed Street Elevations PL-021
Superseded Drawing
File Size: 3100800, Reference: Planning statement
Report
Fire Safety Strategy-Planning
Report
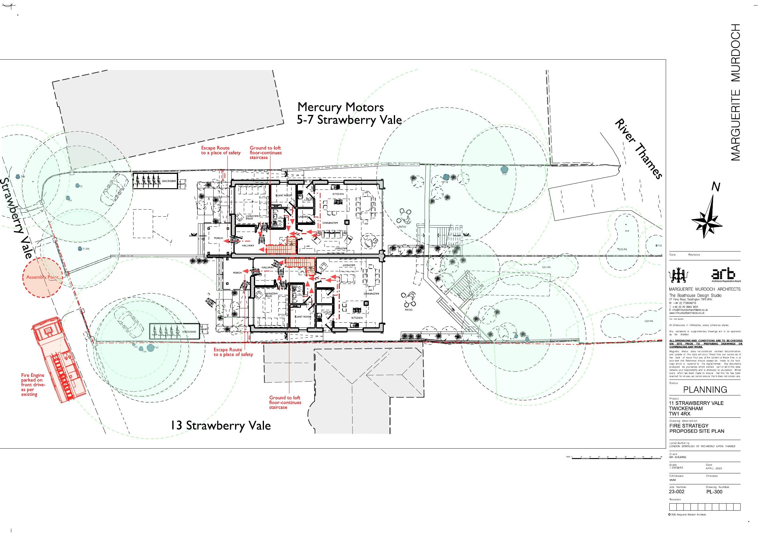
FIRE STRATEGY-PROPOSED FIRST FLOOR PLAN=PL-301
Submitted Drawing
FIRE STRATEGY-PROPOSED LOFT FLOOR PLAN=PL-302
Submitted Drawing
Flood Risk Assessment and Surface Water Drainage Strategy
Superseded
FRA AND Drainage DRAINAGE STRATEGY=APPENDIX=1- A
Report
GROSS INTERNAL AREA EXISTING EXISTING FIRST FLOOR PLAN=PL-601
Submitted Drawing
GROSS INTERNAL AREA EXISTING GROUND FLOOR PLAN=PL-600
Submitted Drawing
GROSS INTERNAL AREA EXISTING PROPOSED FIRST FLOOR PLAN=PL-701
Submitted Drawing
GROSS INTERNAL AREA PROPOSED GROUND FLOOR PLAN=PL-700
Submitted Drawing
GROSS INTERNAL AREA-PROPOSED LOFT FLOOR PLAN=PL-702
Submitted Drawing
Highways Technical Note
Report
Inclusive Access Statement-Planning
Report
Justification for Demolition of Existing Building
Correspondence
Landscape Strategy Plan=PJC.1204.001-REV D
Submitted Drawing
Noise impact assessment
Noise Impact Assessment
Open space assessment
Open Space Assessment
OS PLAN=PL-001
Submitted Drawing
Overland Flow Path Plan
Submitted Drawing
Photorealistic Render of Garden Elevation PL-801
Submitted Drawing
Photorealistic Render of Street Elevation PL-800
Submitted Drawing
PRELIMINARY ECOLOGICAL APPRAISAL
Report
PROPOSED FIRST FLOOR PLAN=PL-005
Submitted Drawing
Proposed Garden Elevation PL-026 A
Revised Drawing
PROPOSED GARDEN ELEVATION=PL-026
Superseded Drawing
Proposed Ground Floor Plan PL-004 A
Revised Drawing
PROPOSED GROUND FLOOR PLAN=PL-004
Superseded Drawing
Proposed Loft Plan PL-006
Submitted Drawing
Proposed Roof Plan PL-007
Submitted Drawing
PROPOSED SECTIONS A-A & B-B=PL-031
Superseded Drawing
Proposed Sections A-A and B-B PL-031 A
Revised Drawing
PROPOSED STREET ELEVATION=PL-025
Submitted Drawing
Proposed Vehicle Crossover =2305092-01=REV A
Submitted Drawing
Public Consultation- 29th June 2023
Report
Revised Design and Access Statement
Report
Revised Flood Risk Assessment
Report
SUDS AND WATER USAGE STATEMENT
Report
Swept Path Analysis Large Car=2305092-TK09=REV A
Submitted Drawing
Updated BNG spreadsheet
Specifications
Take Action
Make your voice heard. Authorities need to hear from people who support new homes.