← Back to London Borough of Richmond upon Thames

Status

Pending Consideration Householder application
Received
25 Sep 2025
New dwellings
n/a

Full Proposal

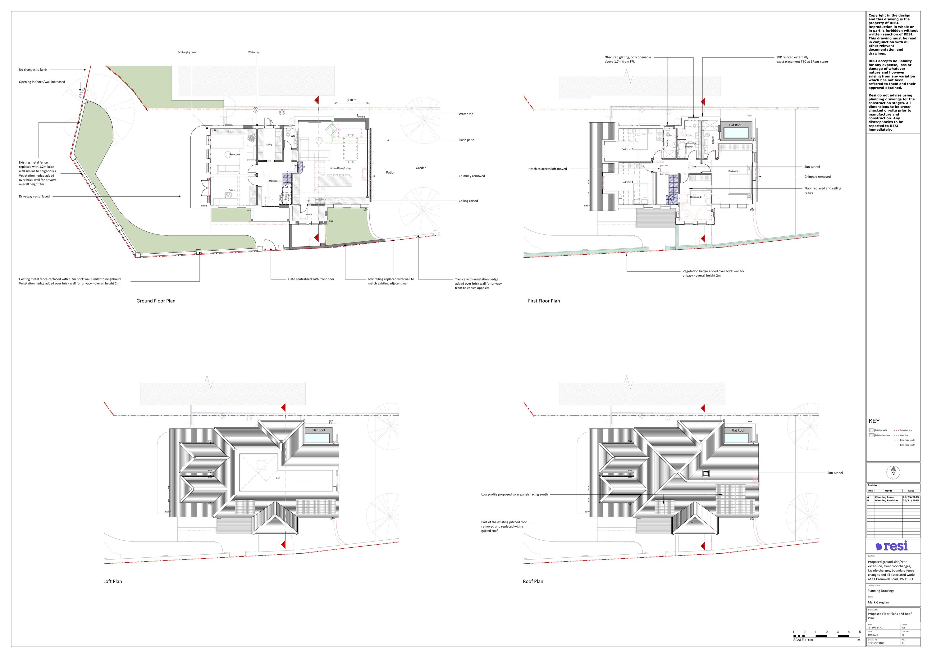
The proposal is for insertion of 2 x sky lights in the front roof slope of the cat-slid-roof, relocation of the entrance door and insertion of four sash windows on the ground floor side elevation facing Cromwell Rd, extension of the living room to the rear, removal of the chimney breast along with 2 x double doors replacing them with 3 x full height fixed glass panels, conversion of the integral gar-age to office, insertion of a sky light to side roof slope and a window on the first floor side elevation, removal of 2 x sash windows from ground floor side elevation and addition of a new sash window and relocation of the single door, replacing the low railing on the right side of the existing gate with wall to match existing adjacent wall, addition of Trellis with vegetation hedge over brick wall for privacy from balconies opposite, relocation of the front gate to align with new entrance and installation of 9 x solar panels on side roof slope.

Documents

6 Cromwell Road
Public Comment - Support
Not archived · Council Link
Application Form - Without Personal Data
Application Form - Redacted
Not archived · Council Link
Boundary elevation facing Bolton Gdns
Superseded Drawing
Not archived · Council Link
CIL FORM
Application Form
Not archived · Council Link
DESIGN STATEMENT
Report
Not archived · Council Link
Existing and Proposed Block Plan
Superseded Drawing
Not archived · Council Link
EXISTING BLOCK PLAN
Superseded Drawing
Not archived · Council Link
Existing Block Plan B253652-1000 A
Revised Drawing
Not archived · Council Link
Existing Elevations & Sections
Superseded Drawing
Not archived · Council Link
EXISTING ELEVATIONS & SECTIONS
Superseded Drawing
Not archived · Council Link
Existing Elevations & Sections B253652-1200 A
Revised Drawing
Not archived · Council Link
EXISTING FLOOR PLANS & ROOF PLAN
Superseded Drawing
Not archived · Council Link
Existing Floor Plans & Roof Plan B253652-1100 A
Revised Drawing
Not archived · Council Link
Existing Floor Plans & Roof Plans
Superseded Drawing
Not archived · Council Link
FIRE SAFETY STRATEGY
Report
Not archived · Council Link
FLOOD RISK ASSESSMENT
Report
Not archived · Council Link
LOCATION PLAN
Submitted Drawing
Not archived · Council Link
PROPOSED BLOCK PLAN
Superseded Drawing
Not archived · Council Link
Proposed Block Plan B253652-3000 D
Revised Drawing
Not archived · Council Link
Proposed Elevations & Section B253652-3200 E
Revised Drawing
Not archived · Council Link
Proposed Elevations & Sections
Superseded Drawing
Not archived · Council Link
PROPOSED ELEVATIONS & SECTIONS
Superseded Drawing
Not archived · Council Link
Superseded Drawing
Archived · Council Link
Superseded Drawing
Archived · Council Link

Take Action

Make your voice heard. Authorities need to hear from people who support new homes.

✉️ Write Email in Support View on Council Portal