← Back to London Borough of Richmond upon Thames

Status

Pending Consideration Householder application
Received
18 Nov 2025
New dwellings
n/a

Full Proposal

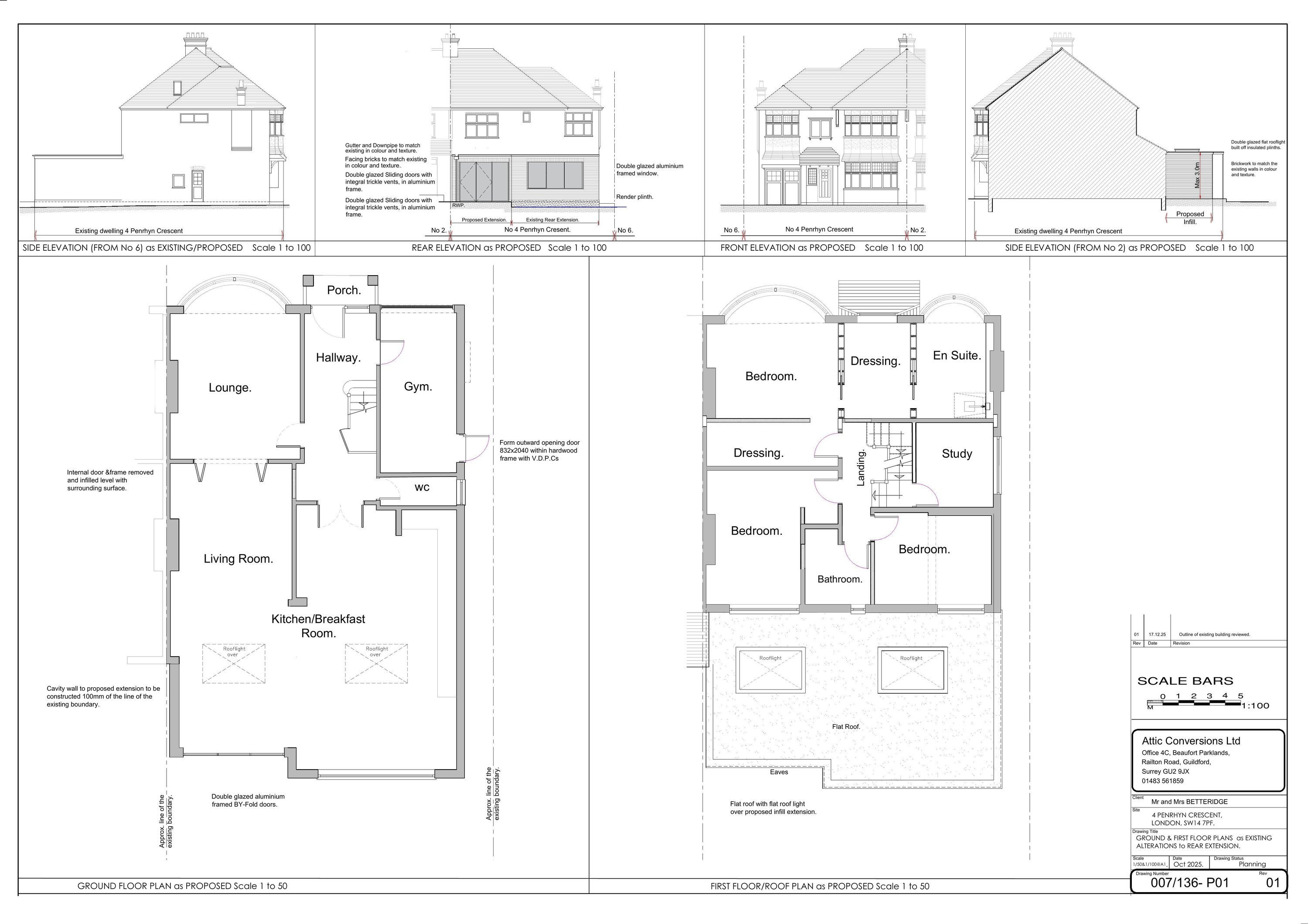
Retrospective approval for erection of a single-storey rear extension, air source heat pumps, and the replacement of the existing pitched roof with a flat roof on the existing single-storey rear element of the dwelling.

Documents

Application Form - Without Personal Data
Application Form - Redacted
Not archived · Council Link
Superseded Drawing
Archived · Council Link
Community Infrastructure Levy - Completed form
Application Form
Not archived · Council Link
EXISTING ELEVATIONS AND FLOOR PLANS
Superseded Drawing
Not archived · Council Link
FIRE STATEMENT
Report
Not archived · Council Link
FRA
Report
Not archived · Council Link
Noise report/Acoustic Assessment
Report
Not archived · Council Link
Planning, Design and access statement
Report
Not archived · Council Link
Pre-Existing plans
Superseded Drawing
Not archived · Council Link
PROPOSED ALTERATIONS TO REAR EXTENSION - GROUND & FIRST FLOOR PLANS
Superseded Drawing
Not archived · Council Link
Revised As Built Plans
Submitted Drawing
Not archived · Council Link
Revised As Built Plans
Superseded Drawing
Not archived · Council Link
Revised Pre-Existing plans with measurements
Submitted Drawing
Not archived · Council Link
The location plan
Submitted Drawing
Not archived · Council Link

Take Action

Make your voice heard. Authorities need to hear from people who support new homes.

✉️ Write Email in Support View on Council Portal