← Back to London Borough of Richmond upon Thames

Status

Pending Consideration
Received
26 Nov 2025
New dwellings
n/a

Summary

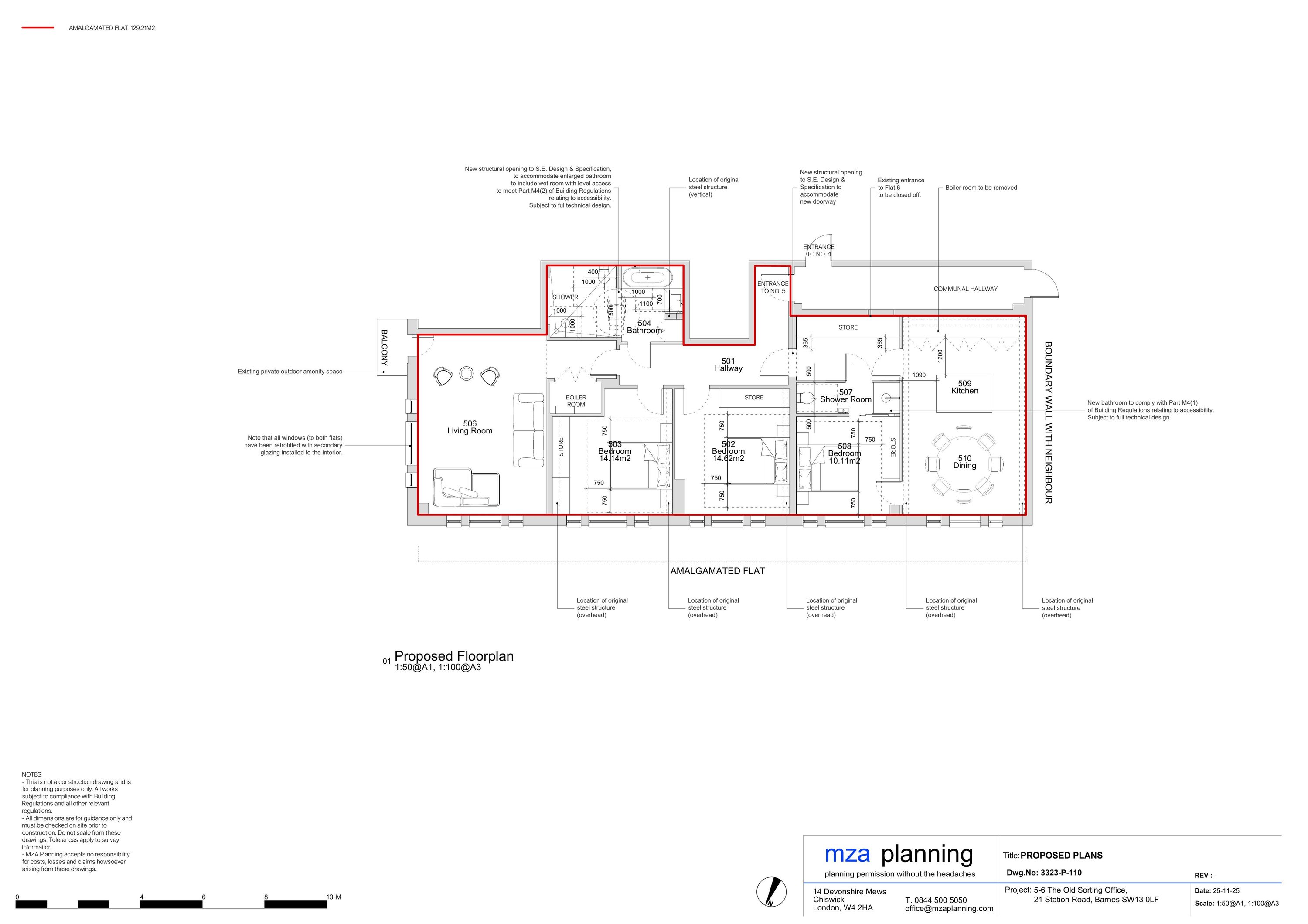
Amalgamate Flats 5 and 6 into one three-bedroom single dwelling.

Full Proposal

Amalgamation of Flats 5 and 6 into a three-bedroom, single dwelling house.

Documents

Affordable housing statement
Report
Not archived · Council Link
Application form
Application Form - Redacted
Not archived · Council Link
BREEAM Report
Report
Not archived · Council Link
CIL FORM
Community Infrastructure Levy Form
Not archived · Council Link
Design and access statement
Report
Not archived · Council Link
Energy Statement
Report
Not archived · Council Link
Evidence of Environmental Benefits
Report
Not archived · Council Link
Existing Plans 3323-P-010
Submitted Drawing
Not archived · Council Link
Existing Section 3323-P-020
Submitted Drawing
Not archived · Council Link
Fire Statement
Report
Not archived · Council Link
Planning Statement
Report
Not archived · Council Link
Submitted Drawing
Archived · Council Link
Proposed Sections 3323-P-120
Submitted Drawing
Not archived · Council Link
Submitted Drawing
Archived · Council Link
Sustainable Construction Checklist
Report
Not archived · Council Link
Water neutrality statement
Report
Not archived · Council Link

Take Action

Make your voice heard. Authorities need to hear from people who support new homes.

✉️ Write Email in Support View on Council Portal