← Back to London Borough of Richmond upon Thames

Status

Pending Consideration
Received
12 Dec 2025
New dwellings
n/a

Summary

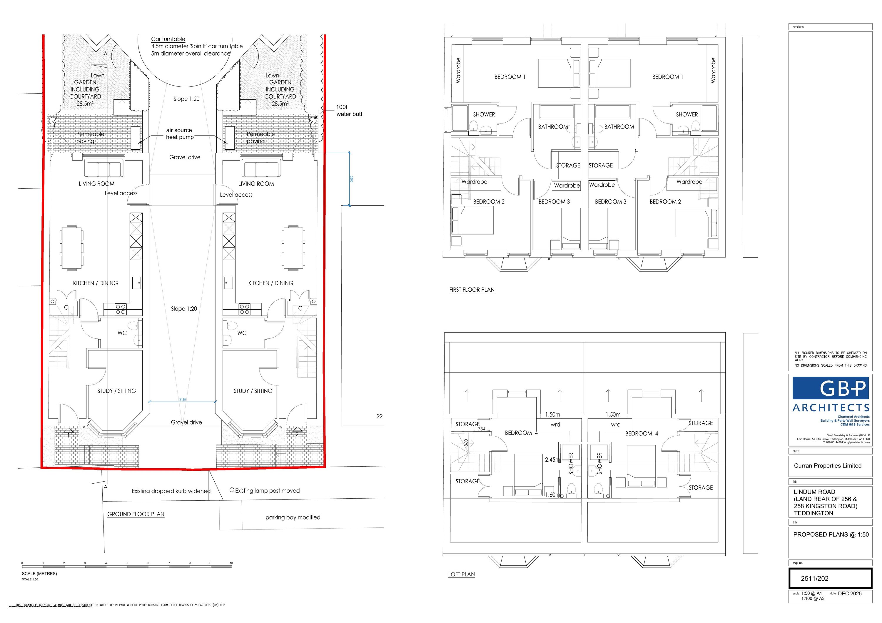
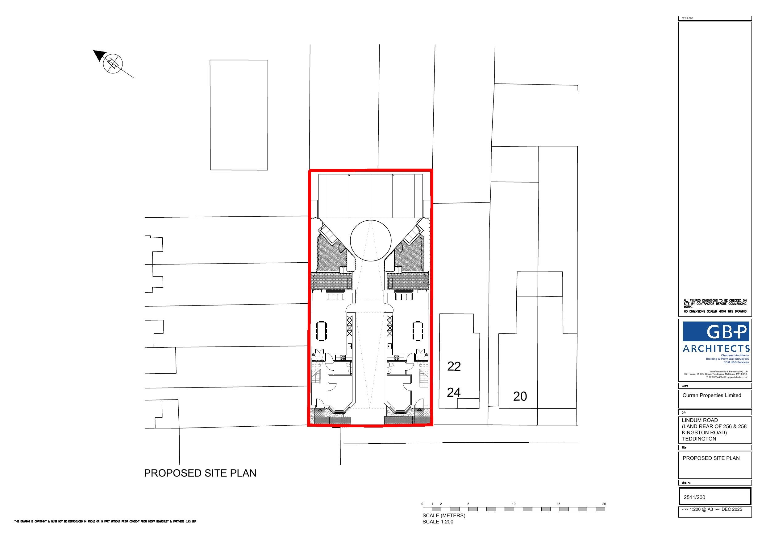
Removal of existing structures and construction of two semi-detached dwellings with undercroft access.

Full Proposal

Removal of existing structures and construction of 2no. new semi-detached dwellings with undercroft access

Documents

Application Form - Without Personal Data
Application Form - Redacted
Not archived · Council Link
Carbon Emission
Report
Not archived · Council Link
Combined Schedule
Report
Not archived · Council Link
CONSTRUCTION MANAGEMENT STATEMENT
Report
Not archived · Council Link
Design and access statement
Report
Not archived · Council Link
Design Stage Water Usage Calculations
Report
Not archived · Council Link
Energy Assessment
Report
Not archived · Council Link
Enviro Report
Report
Not archived · Council Link
Existing Elevations 2511/102
Submitted Drawing
Not archived · Council Link
Existing Elevations 2511/103
Submitted Drawing
Not archived · Council Link
Existing Ground Plan 2511/101
Submitted Drawing
Not archived · Council Link
Submitted Drawing
Archived · Council Link
Financial Viability Appraisal
Report
Not archived · Council Link
fire safety statement
Report
Not archived · Council Link
Flood Risk Assessment
Report
Not archived · Council Link
Geoenvironmental Investigation
Report
Not archived · Council Link
Heritage statement
Report
Not archived · Council Link
inclusive access statement
Report
Not archived · Council Link
Location Plan 2511/000
Submitted Drawing
Not archived · Council Link
Proposed Elevations 2511/203
Submitted Drawing
Not archived · Council Link
Submitted Drawing
Archived · Council Link
Submitted Drawing
Archived · Council Link
Proposed Rear Elevation & Section A-A 2511/204
Submitted Drawing
Not archived · Council Link
Submitted Drawing
Archived · Council Link
Proposed Street View 2511/205
Submitted Drawing
Not archived · Council Link
Residential Standards Statement
Report
Not archived · Council Link
SAP Calculation Printout 01
Report
Not archived · Council Link
SAP Calculation Printout 01
Report
Not archived · Council Link
sustainable construction checklist
Report
Not archived · Council Link
Transport assessment
Report
Not archived · Council Link

Take Action

Make your voice heard. Authorities need to hear from people who support new homes.

✉️ Write Email in Support View on Council Portal