← Back to London Borough of Richmond upon Thames

Status

Pending Consideration
Received
23 Dec 2025
New dwellings
n/a

Summary

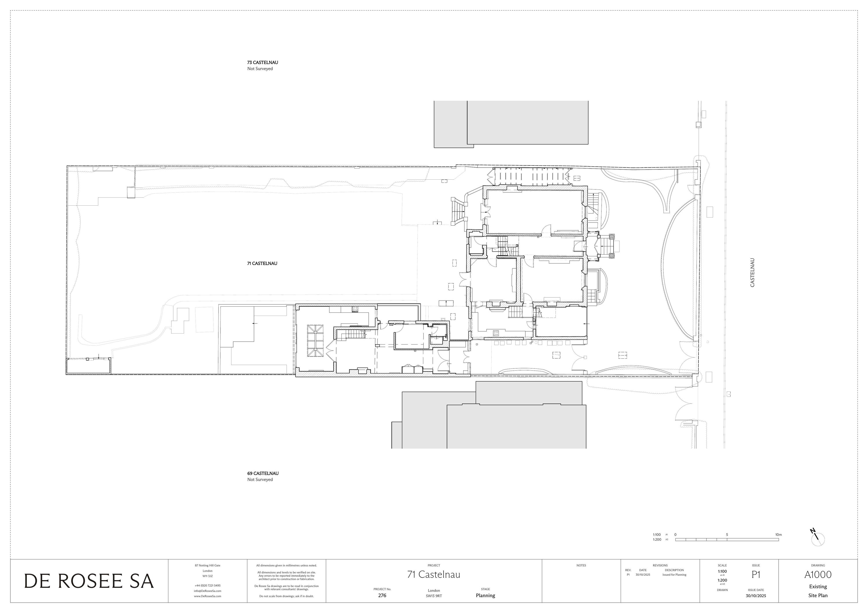
Amalgamate two dwellings into one; replace coach house, add extensions, roof alterations and upgrades.

Full Proposal

Amalgamation of two dwellings into a single dwelling, comprising demolition and replacement of coach house and ancillary elements, construction of new rear and side extensions, alterations to roof including replacement dormer windows; internal reconfiguration, sustainability upgrades and other works incidental to the development.

Documents

69 Castelnau
Public Comment - Support
Not archived · Council Link
Air Source Heat Pump
Submitted Drawing
Not archived · Council Link
Application Form - Without Personal Data
Application Form - Redacted
Not archived · Council Link
Arboricultural Impact Assessment
Report
Not archived · Council Link
Basement Impact Assessment
Report
Not archived · Council Link
CIL QNR
Application Form
Not archived · Council Link
Construction Management
Report
Not archived · Council Link
Demolition Management Plan
Report
Not archived · Council Link
Design and access statement
Report
Not archived · Council Link
Energy Statement
Report
Not archived · Council Link
Existing First Floor Demo
Submitted Drawing
Not archived · Council Link
Existing First Floor Plan
Submitted Drawing
Not archived · Council Link
Existing Front Elevation
Submitted Drawing
Not archived · Council Link
Existing Ground Floor Demo
Submitted Drawing
Not archived · Council Link
Existing Ground Floor Plan
Submitted Drawing
Not archived · Council Link
Existing Lower Ground Floor Demo
Submitted Drawing
Not archived · Council Link
Existing Lower Ground Floor Plan
Submitted Drawing
Not archived · Council Link
Existing Rear Elevation
Submitted Drawing
Not archived · Council Link
Existing Roof Plan
Submitted Drawing
Not archived · Council Link
Existing Scoping Elevation
Submitted Drawing
Not archived · Council Link
Existing Scoping Elevation
Submitted Drawing
Not archived · Council Link
Existing Second Floor Demo
Submitted Drawing
Not archived · Council Link
Existing Second Floor Plan
Submitted Drawing
Not archived · Council Link
Existing Section AA
Submitted Drawing
Not archived · Council Link
Existing Side Elevation North
Submitted Drawing
Not archived · Council Link
Existing Side elevation South
Submitted Drawing
Not archived · Council Link
Submitted Drawing
Archived · Council Link
Fire Statement
Report
Not archived · Council Link
Flood risk assessment
Report
Not archived · Council Link
Heritage statement
Report
Not archived · Council Link
Landscaping details
Submitted Drawing
Not archived · Council Link
Noise impact assessment
Report
Not archived · Council Link
Planning statement
Report
Not archived · Council Link
Proposed Boundary Elevation from No 69
Submitted Drawing
Not archived · Council Link
Proposed First Floor Plan
Submitted Drawing
Not archived · Council Link
Proposed Front Boundary Elevation
Submitted Drawing
Not archived · Council Link
Proposed Front Driveway
Submitted Drawing
Not archived · Council Link
Proposed Front Elevation
Submitted Drawing
Not archived · Council Link
Proposed Ground Floor Plan
Submitted Drawing
Not archived · Council Link
Proposed Lower Ground Floor Plan
Submitted Drawing
Not archived · Council Link
Proposed Rear Elevation
Submitted Drawing
Not archived · Council Link
Proposed Roof Plan
Submitted Drawing
Not archived · Council Link
Proposed Scoping Elevation
Submitted Drawing
Not archived · Council Link
Proposed Scoping Elevation
Submitted Drawing
Not archived · Council Link
Proposed Second Floor Plan
Submitted Drawing
Not archived · Council Link
Proposed Section AA
Submitted Drawing
Not archived · Council Link
Proposed Side Elevation North
Submitted Drawing
Not archived · Council Link
Proposed Side Elevation South
Submitted Drawing
Not archived · Council Link
Submitted Drawing
Archived · Council Link
SUDS Report
Report
Not archived · Council Link
Summary for Input Data
Report
Not archived · Council Link
Summary for Input Data
Report
Not archived · Council Link
The location plan
Submitted Drawing
Not archived · Council Link
Tree Schedule
Report
Not archived · Council Link
Tree Survey Plan
Submitted Drawing
Not archived · Council Link

Take Action

Make your voice heard. Authorities need to hear from people who support new homes.

✉️ Write Email in Support View on Council Portal