← Back to London Borough of Richmond upon Thames

Status

Pending Consideration
Received
23 Dec 2025
New dwellings
n/a

Full Proposal

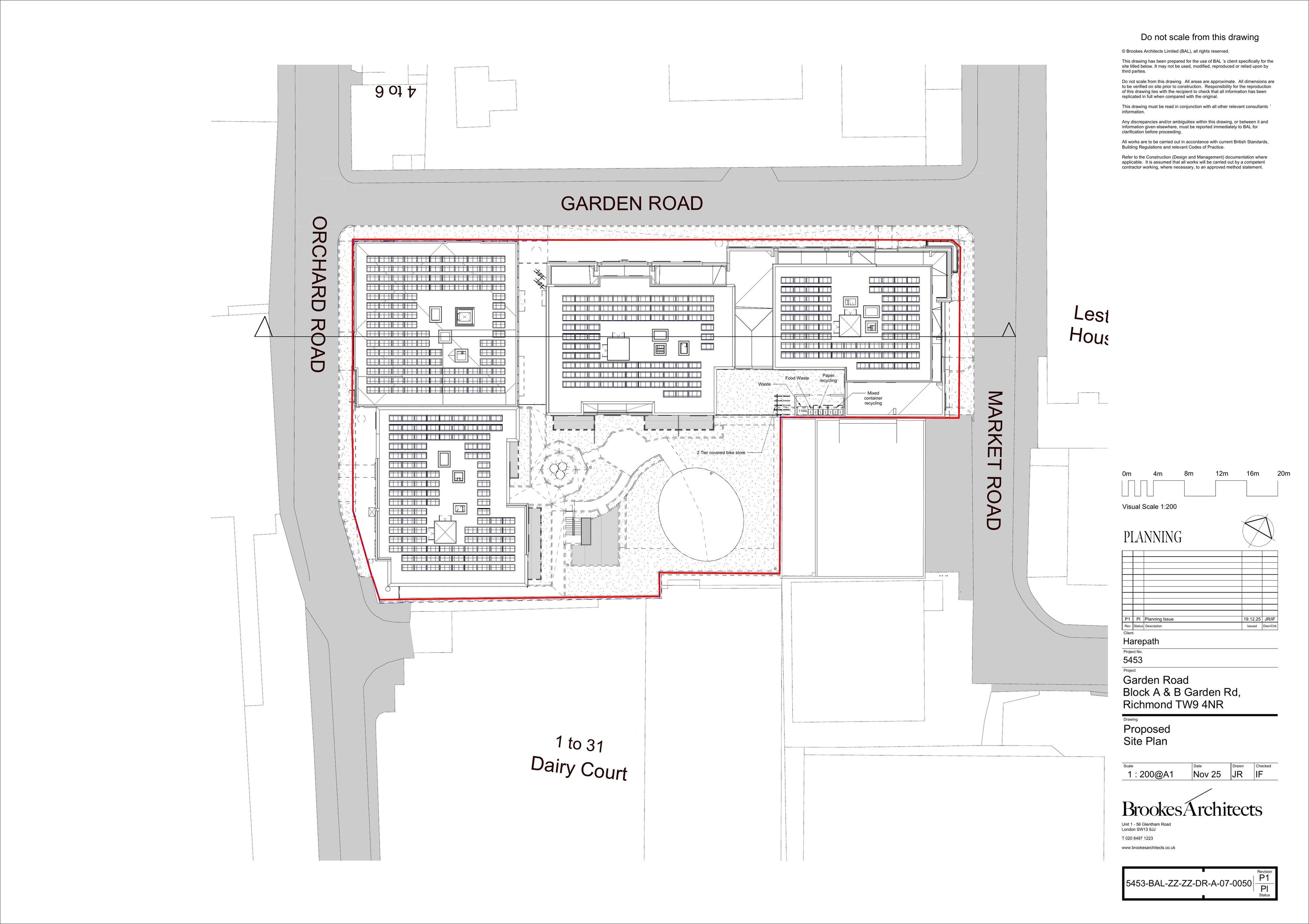
Construction of additional storey to include nine new flats to an existing building.

Documents

1 Garden Road
Public Comment - Object
Not archived · Council Link
1 Garden Road
Public Comment - Object
Not archived · Council Link
12 Garden Road
Public Comment - Object
Not archived · Council Link
14 Garden Road
Public Comment - Object
Not archived · Council Link
15 Garden Road
Public Comment - Object
Not archived · Council Link
15 Garden Road
Public Comment - Object
Not archived · Council Link
15 Garden Road
Public Comment - Object
Not archived · Council Link
15 Garden Road
Public Comment - Object
Not archived · Council Link
15 Garden Road
Public Comment - Object
Not archived · Council Link
15 Garden Road
Public Comment - Object
Not archived · Council Link
21 Garden Road
Public Comment - Object
Not archived · Council Link
24 Garden Road
Public Comment - Object
Not archived · Council Link
26 Garden Road
Public Comment - Object
Not archived · Council Link
3 Garden Road
Public Comment - Object
Not archived · Council Link
31 Garden Road
Public Comment - Object
Not archived · Council Link
34 Garden Road
Public Comment - Object
Not archived · Council Link
37 Garden Road
Public Comment - Object
Not archived · Council Link
4 Garden Road
Public Comment - Object
Not archived · Council Link
42 Garden Road
Public Comment - Object
Not archived · Council Link
43 Garden Road
Public Comment - Object
Not archived · Council Link
44 Garden Road
Public Comment - Object
Not archived · Council Link
47 Garden Road
Public Comment - Object
Not archived · Council Link
48 Garden Road
Public Comment - Object
Not archived · Council Link
49 Garden Road
Public Comment - Object
Not archived · Council Link
5 Garden Road
Public Comment - Object
Not archived · Council Link
51 Garden Road
Public Comment - Object
Not archived · Council Link
53 Garden Road
Public Comment - Object
Not archived · Council Link
55 Garden Road
Public Comment - Object
Not archived · Council Link
6 Garden Road
Public Comment - Object
Not archived · Council Link
Application Form - Without Personal Data
Application Form - Redacted
Not archived · Council Link
CIL FORM
Community Infrastructure Levy Form
Not archived · Council Link
Daylight & Sunlight Report
Report
Not archived · Council Link
Design and access statement
Report
Not archived · Council Link
Existing Basement Floor Plan
Submitted Drawing
Not archived · Council Link
Existing East & West Elevation
Submitted Drawing
Not archived · Council Link
Existing First Floor Plan
Submitted Drawing
Not archived · Council Link
Existing Fourth Floor Plan
Submitted Drawing
Not archived · Council Link
Existing Ground Floor Plan
Submitted Drawing
Not archived · Council Link
Existing North & South Elevation
Submitted Drawing
Not archived · Council Link
Existing Roof Plan
Submitted Drawing
Not archived · Council Link
Existing Second Floor Plan
Submitted Drawing
Not archived · Council Link
Submitted Drawing
Archived · Council Link
Existing Third Floor Plan
Submitted Drawing
Not archived · Council Link
Existing/Proposed Section
Submitted Drawing
Not archived · Council Link
Flat 4, 1a Orchard Road
Public Comment - Object
Not archived · Council Link
List of Flats & Other Premises in the existing building
Report
Not archived · Council Link
Location Plan
Submitted Drawing
Not archived · Council Link
Proposed Basement Plan
Submitted Drawing
Not archived · Council Link
Proposed East & West Elevation
Submitted Drawing
Not archived · Council Link
Proposed Fifth Floor Plan
Submitted Drawing
Not archived · Council Link
Proposed Ground Floor Plan
Submitted Drawing
Not archived · Council Link
Proposed North & South Elevaiton
Submitted Drawing
Not archived · Council Link
Proposed Roof Plan
Submitted Drawing
Not archived · Council Link
Submitted Drawing
Archived · Council Link
Rumsey and Son, Market Road
Public Comment - Object
Not archived · Council Link
Transport Statement
Report
Not archived · Council Link
Unit 2, Market Road
Public Comment - Object
Not archived · Council Link

Take Action

Make your voice heard. Authorities need to hear from people who support new homes.

✉️ Write Email in Support View on Council Portal