← Back to London Borough of Richmond upon Thames
PA26/0166
London Borough of Richmond upon Thames · AGILE
Status
Pending Consideration
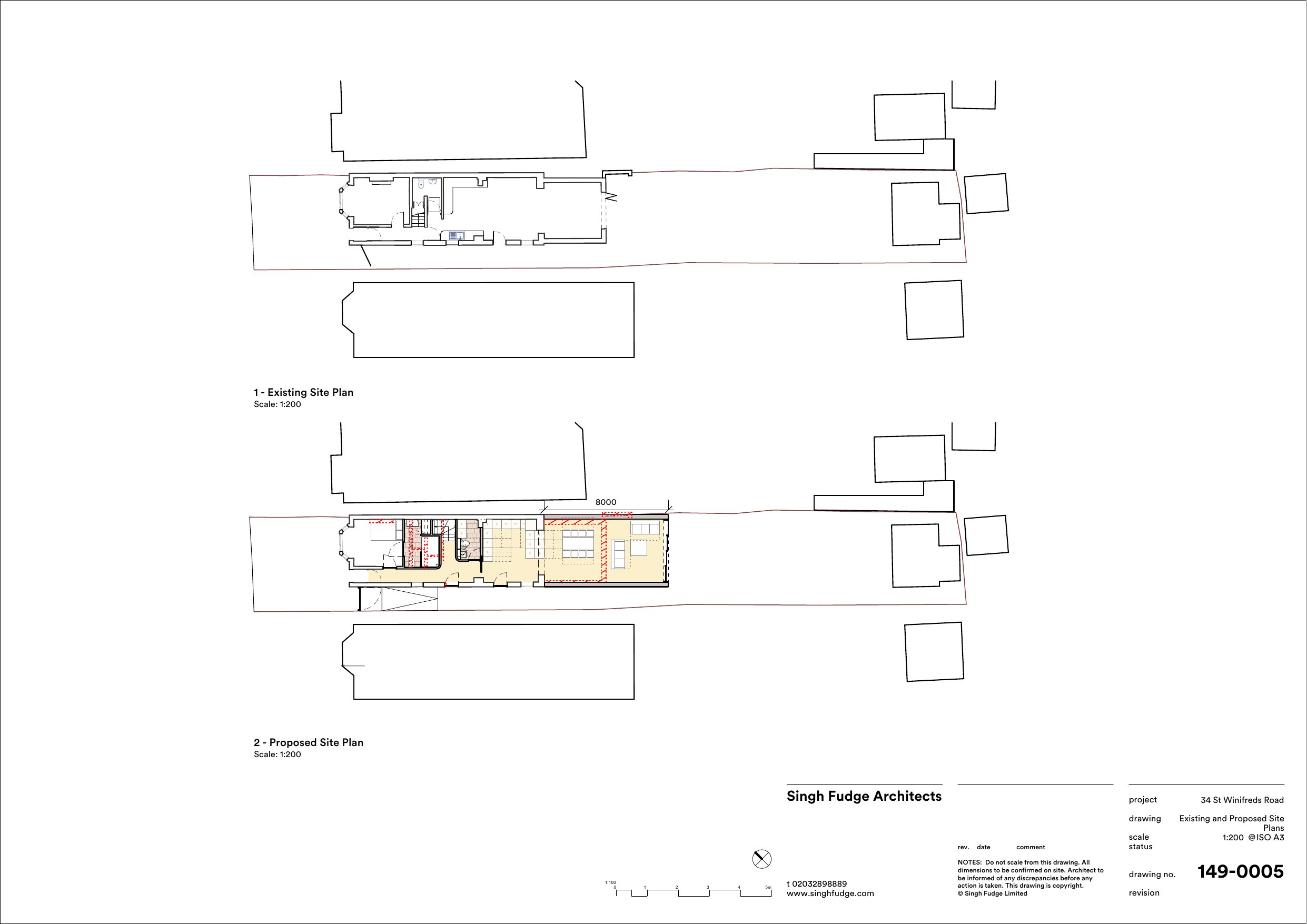
General permitted development extension
Received
Last month
New dwellings
n/a
Full Proposal
Single storey extension to a detached home with demolition of the existing extension (5m depth, 3m eaves height, 3.15m overall height)
Documents
Take Action
Make your voice heard. Authorities need to hear from people who support new homes.