← Back to London Borough of Richmond upon Thames

Status

Pending Consideration Full application
Received
Last month
New dwellings
n/a

Full Proposal

Rear extension, loft extension and ancillary garden office.

Documents

Application Form
Application Form
Not archived · Council Link
Application Form - Without Personal Data
Application Form - Redacted
Not archived · Council Link
ARBORICULTURAL IMPACT ASSESSMENT
Report
Not archived · Council Link
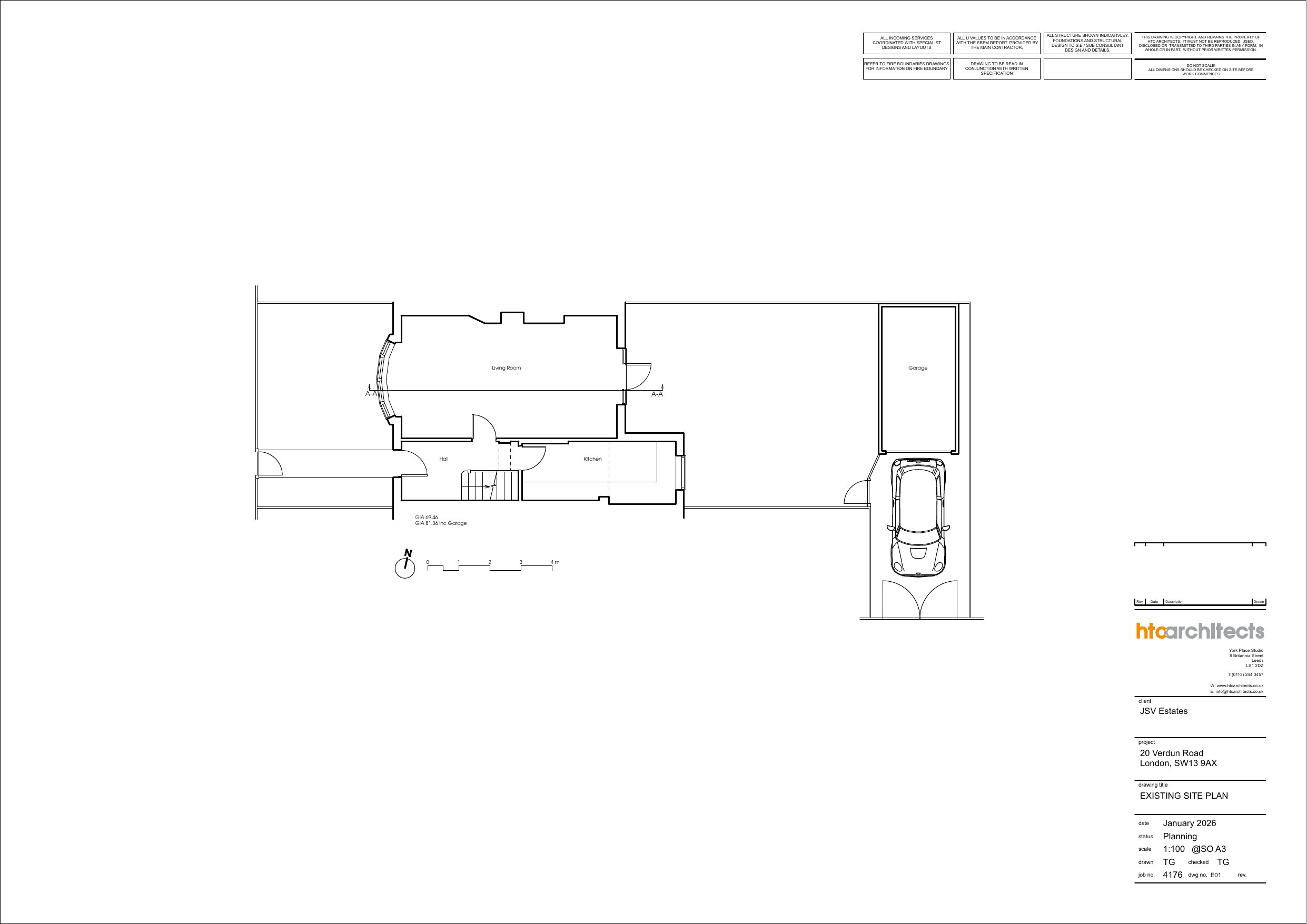
BLOCK PLAN=E00
Submitted Drawing
Not archived · Council Link
Design and access statement
Report
Not archived · Council Link
EXISTING 1F=E03
Submitted Drawing
Not archived · Council Link
EXISTING ELE=E05
Submitted Drawing
Not archived · Council Link
EXISTING GF=E02
Submitted Drawing
Not archived · Council Link
EXISTING ROOF=E04
Submitted Drawing
Not archived · Council Link
EXISTING SECTION AA=E07
Submitted Drawing
Not archived · Council Link
EXISTING SIDE ELE=E06
Submitted Drawing
Not archived · Council Link
Submitted Drawing
Archived · Council Link
Fire Statement
Report
Not archived · Council Link
FLOOD RISK ASSESSMENT
Report
Not archived · Council Link
Front=V04B
Submitted Drawing
Not archived · Council Link
Garden view 3=V06D
Submitted Drawing
Not archived · Council Link
Green roof detail -P10
Submitted Drawing
Not archived · Council Link
Internal=V03D
Submitted Drawing
Not archived · Council Link
Location plan
Submitted Drawing
Not archived · Council Link
OUTBUILDING STATEMENT
Report
Not archived · Council Link
PROPOSED 1F=P02
Submitted Drawing
Not archived · Council Link
PROPOSED FRONT ELE=P05
Submitted Drawing
Not archived · Council Link
PROPOSED GF=P01
Submitted Drawing
Not archived · Council Link
PROPOSED LOFT=P03
Submitted Drawing
Not archived · Council Link
PROPOSED OFFICE ELE=P09
Submitted Drawing
Not archived · Council Link
PROPOSED REAR ELE=P06
Submitted Drawing
Not archived · Council Link
PROPOSED ROOF=P04
Submitted Drawing
Not archived · Council Link
PROPOSED SECTION AA=P08
Submitted Drawing
Not archived · Council Link
PROPOSED SIDE ELE=P07
Submitted Drawing
Not archived · Council Link
Submitted Drawing
Archived · Council Link
REFUSE AND RECYCLING STATEMENT
Report
Not archived · Council Link
Right Isometric=V01D
Submitted Drawing
Not archived · Council Link

Take Action

Make your voice heard. Authorities need to hear from people who support new homes.

✉️ Write Email in Support View on Council Portal