← Back to London Borough of Richmond upon Thames

Status

Pending Consideration Householder application
Received
Last month
New dwellings
n/a

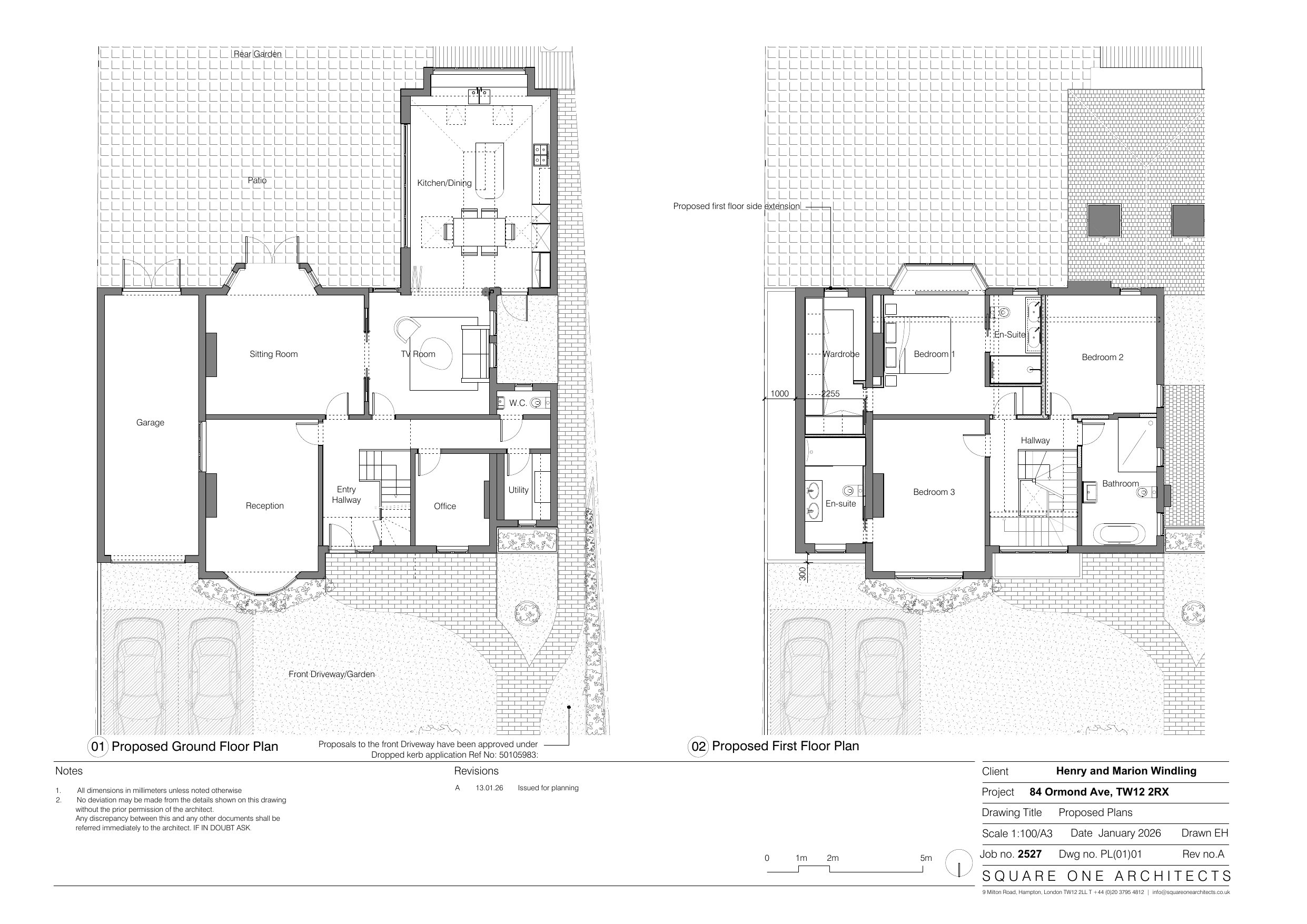
Full Proposal

First floor side extension

Documents

Application Form - Without Personal Data
Application Form - Redacted
Not archived · Council Link
CIL FORM
Community Infrastructure Levy Form
Not archived · Council Link
Design and access statement
Report
Not archived · Council Link
Existing Elevations=EX(03)01
Submitted Drawing
Not archived · Council Link
Existing Elevations=EX(03)02
Submitted Drawing
Not archived · Council Link
Existing Plans=EX(01)01
Submitted Drawing
Not archived · Council Link
Existing Plans=EX(01)02
Submitted Drawing
Not archived · Council Link
Fire Safety Strategy
Report
Not archived · Council Link
FSS
Report
Not archived · Council Link
Location plan=EX(01)00
Submitted Drawing
Not archived · Council Link
Proposed Elevations=PL(03)01
Submitted Drawing
Not archived · Council Link
Proposed Elevations=PL(03)02
Submitted Drawing
Not archived · Council Link
Submitted Drawing
Archived · Council Link
Submitted Drawing
Archived · Council Link

Take Action

Make your voice heard. Authorities need to hear from people who support new homes.

✉️ Write Email in Support View on Council Portal