← Back to London Borough of Richmond upon Thames

Status

Pending Consideration Full application
Received
25 days ago
New dwellings
n/a

Full Proposal

External alterations including removal of external escape stair, alterations to existing windows and doors, and new rooflights. Installation of replacement plant equipment and associated mitigation and louvres/vents. Installation of timber fencing, external stores, and other minor alterations.

Documents

ACOUSTIC ASSESSMENT
Report
Not archived · Council Link
Application Form - Without Personal Data
Application Form - Redacted
Not archived · Council Link
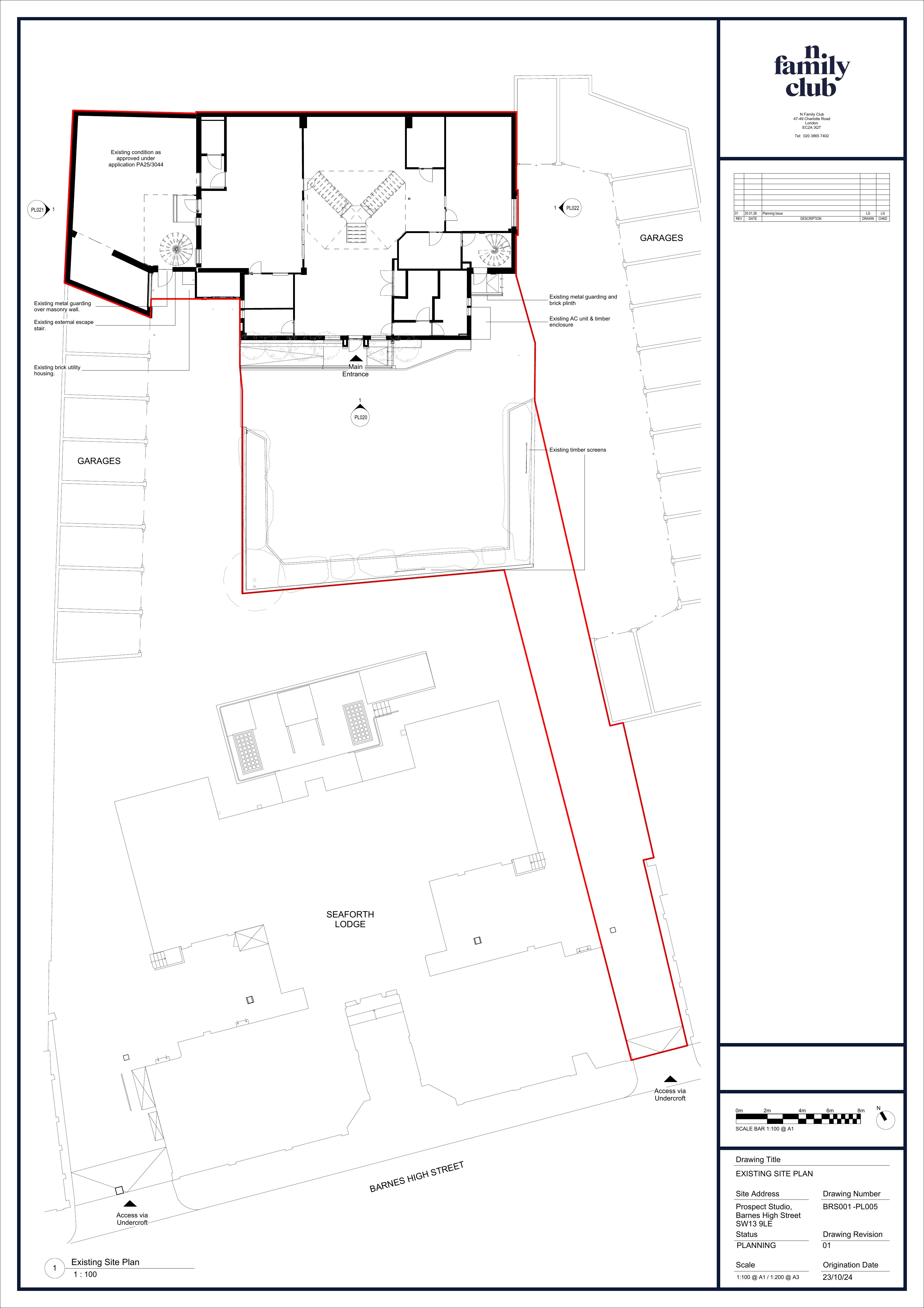
BLOCK PLAN
Submitted Drawing
Not archived · Council Link
CIL FORM
Application Form
Not archived · Council Link
EXISTING FIRST FLOOR PLAN
Submitted Drawing
Not archived · Council Link
EXISTING FRONT ELEVATION
Submitted Drawing
Not archived · Council Link
EXISTING GROUND FLOOR PLAN
Submitted Drawing
Not archived · Council Link
EXISTING ROOF PLAN
Submitted Drawing
Not archived · Council Link
EXISTING SIDE NORTH ELEVATION
Submitted Drawing
Not archived · Council Link
EXISTING SIDE SOUTH ELEVATION
Submitted Drawing
Not archived · Council Link
Submitted Drawing
Archived · Council Link
FIRE SAFETY STRATEGY
Report
Not archived · Council Link
PROPOSED ANCILLARY ELEVATIONS
Submitted Drawing
Not archived · Council Link
PROPOSED FIRST FLOOR PLAN
Submitted Drawing
Not archived · Council Link
PROPOSED FRONT ELEVATION
Submitted Drawing
Not archived · Council Link
PROPOSED GROUND FLOOR PLAN
Submitted Drawing
Not archived · Council Link
PROPOSED ROOF PLAN
Submitted Drawing
Not archived · Council Link
PROPOSED SIDE NORTH ELEVATION
Submitted Drawing
Not archived · Council Link
PROPOSED SIDE SOUTH ELEVATION
Submitted Drawing
Not archived · Council Link
Submitted Drawing
Archived · Council Link
Submitted Drawing
Archived · Council Link

Take Action

Make your voice heard. Authorities need to hear from people who support new homes.

✉️ Write Email in Support View on Council Portal