← Back to London Borough of Richmond upon Thames

Status

Pending Consideration Householder application
Received
19 days ago
New dwellings
n/a

Full Proposal

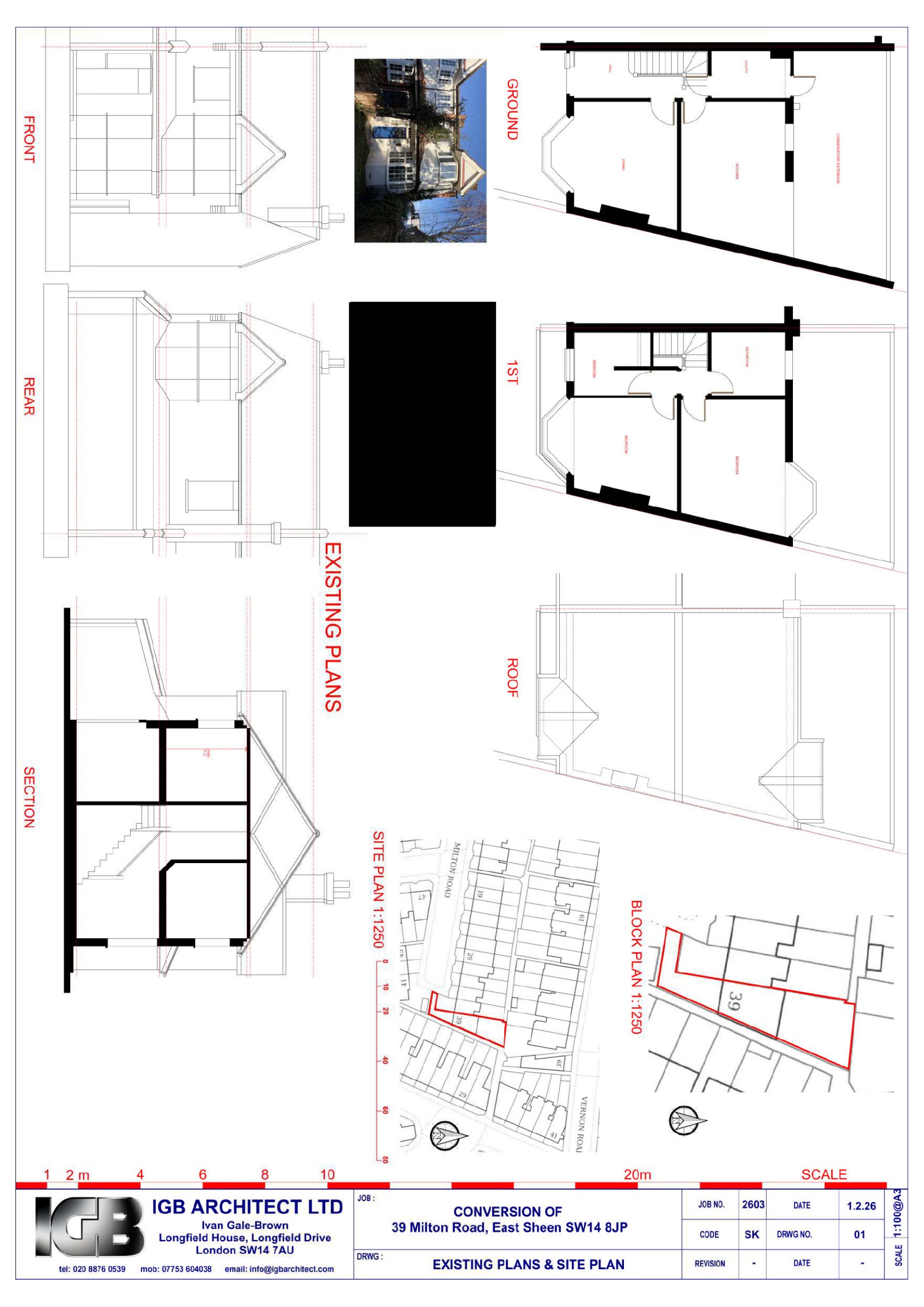
Single Storey Rear Extension

Documents

Application Form - Without Personal Data
Application Form - Redacted
Not archived · Council Link
CIL FORM
Application Form
Not archived · Council Link
Submitted Drawing
Archived · Council Link
FRA
Report
Not archived · Council Link
FSS
S278 Agreement
Not archived · Council Link
LOCATION PLAN
Submitted Drawing
Not archived · Council Link
Submitted Drawing
Archived · Council Link

Take Action

Make your voice heard. Authorities need to hear from people who support new homes.

✉️ Write Email in Support View on Council Portal