← Back to London Borough of Richmond upon Thames

Status

Pending Consideration Householder application
Received
17 days ago
New dwellings
n/a

Full Proposal

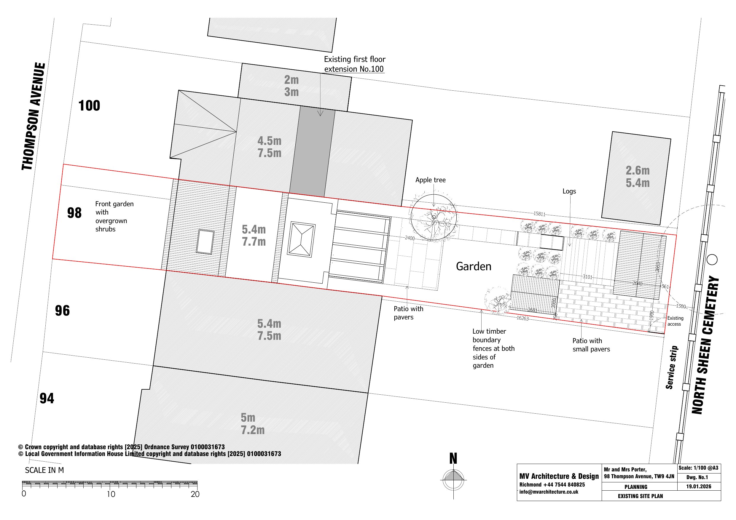
First-floor rear extension with a flat roof, extending 2m from the existing rear wall, with the eaves height matching the existing first floor level. External materials—including red brickwork, window frames, and roof finishes—will match those of the existing dwelling to maintain continuity within the terrace. A new small window is also proposed on the front elevation, consistent in material, colour, and proportion with the existing fenestration.

Documents

Application Form - Without Personal Data
Application Form - Redacted
Not archived · Council Link
CIL FORM
Community Infrastructure Levy Form
Not archived · Council Link
Cover Letter
Correspondence
Not archived · Council Link
Design and access statement
Report
Not archived · Council Link
Existing Elevations 05
Submitted Drawing
Not archived · Council Link
Existing Ground & First Floor Plan 03
Submitted Drawing
Not archived · Council Link
Existing Second Floor & Roof Plan 04
Submitted Drawing
Not archived · Council Link
Existing Sections 06
Submitted Drawing
Not archived · Council Link
Submitted Drawing
Archived · Council Link
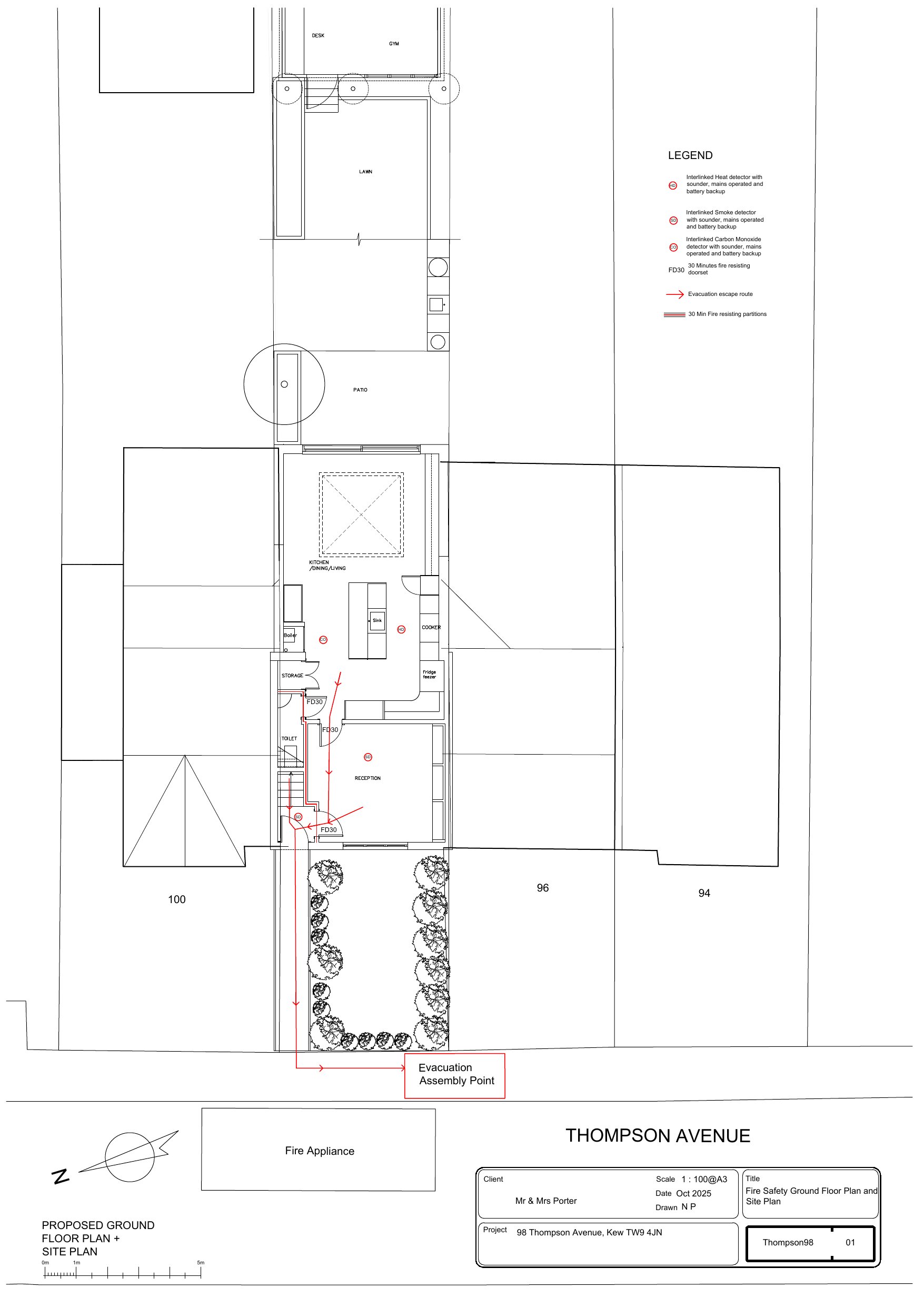
Fire & Second Floor Safety Plan
Submitted Drawing
Not archived · Council Link
Submitted Drawing
Archived · Council Link
Fire Safety Report
Report
Not archived · Council Link
Flood risk assessment
Report
Not archived · Council Link
Proposed Elevations 08
Submitted Drawing
Not archived · Council Link
Proposed First Floor & Roof Plan 07
Submitted Drawing
Not archived · Council Link
Proposed Section 09
Submitted Drawing
Not archived · Council Link
Submitted Drawing
Archived · Council Link
The location plan
Submitted Drawing
Not archived · Council Link

Take Action

Make your voice heard. Authorities need to hear from people who support new homes.

✉️ Write Email in Support View on Council Portal