← Back to Rossendale Borough Council

Status

Pending Consideration
Received
01 Apr 2025
New dwellings
n/a

Summary

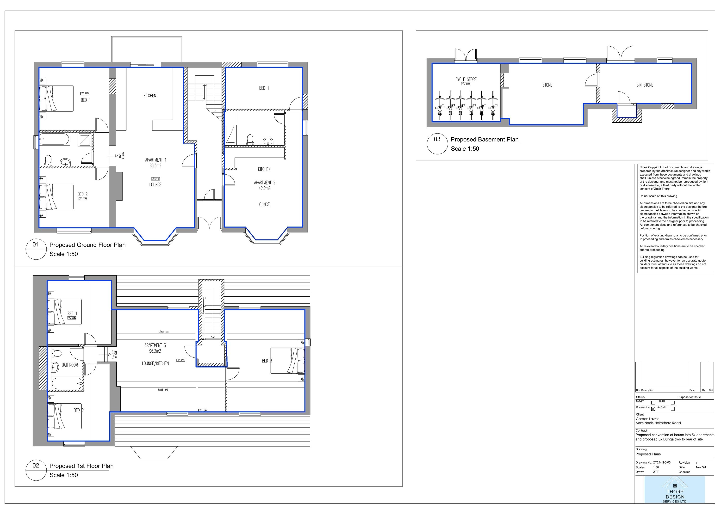
Convert remainder of house into 3 apartments and build 4 bungalows; partial demolition for vehicle access.

Full Proposal

Proposed demolition of a section of the existing dwelling to facilitate vehicular access, conversion of remainder of house into 3x apartments and construction of proposed 4x Bungalows to rear of site.

Documents

APPENDIX A_FIGURE 1 - MOSS NOOK UKHABS BASELINE MAP
Other
Not archived · Council Link
APPLICATIONFORMREDACTED
Application Form
Not archived · Council Link
BIODIVERSITY NET GAIN ASSESSMENT SUMMARY REPORT - MOSS NOOK_HELMSHORE ROAD_HASLI
Other
Not archived · Council Link
D HOLT - OBJECTION REDACTED
Objection Comment
Not archived · Council Link
ENVIRONMENTAL PROTECTION - COMMENTS
Consultee Comment
Not archived · Council Link
EXISTING AND PROPOSED SITE SECTIONS
Drawing
Not archived · Council Link
EXISTING ELEVATIONS
Drawing
Not archived · Council Link
EXISTING PLANS
Drawing
Not archived · Council Link
Block Plan
Archived · Council Link
GMEU - COMMENTS
Consultee Comment
Not archived · Council Link
HELMSHORE ROAD_HASLINGDEN_PRA E-DOC1
Other
Not archived · Council Link
HELMSHORE ROAD_HASLINGDEN_PRA E-DOC2
Other
Not archived · Council Link
HELMSHORE ROAD_HASLINGDEN_PROPOSALS E-DOC
Other
Not archived · Council Link
LANCASHIRE FIRE & RESCUE - COMMENTS REDACTED
Consultee Comment
Not archived · Council Link
LCC HIGHWAYS - COMMENTS
Consultee Comment
Not archived · Council Link
LCC HIGHWAYS - FURTHER COMMENTS
Consultee Comment
Not archived · Council Link
LOCATION PLAN
Location Plan
Not archived · Council Link
MICHAEL POOLER ASSOCIATES - COMMENTS
Consultee Comment
Not archived · Council Link
MOSS NOOK_HASLINGDEN - STATUTORY_BIODIVERSITY_METRIC_CONDITION_ASSESSMENTS23.07.
Other
Not archived · Council Link
PENNINE ECOLOGICAL - MOSS NOOK_HELMSHORE RD_HASLINGDEN - PRELIMINARY ECOLOGICAL
Other
Not archived · Council Link
PLANNING STATEMENT
Design & Access Statement
Not archived · Council Link
PROPOSED BUNGALOW PLAN AND ELEVATIONS
Revised Drawing
Not archived · Council Link
PROPOSED DRAINAGE PLAN
Revised Drawing
Not archived · Council Link
PROPOSED ELEVATIONS 1
Revised Drawing
Not archived · Council Link
PROPOSED ELEVATIONS 2
Revised Drawing
Not archived · Council Link
PROPOSED LANDSCAPING_MARTERIALS AND BOUNDARY TREATMENT PLAN
Revised Drawing
Not archived · Council Link
Revised Drawing
Archived · Council Link
PROPOSED REFUSE PLAN
Revised Drawing
Not archived · Council Link
Block Plan
Archived · Council Link
STATEMENT FOR NEW HOMES
Other
Not archived · Council Link
THE_STATUTORY_BIODIVERSITY_METRIC_CALCULATION_TOOL
Other
Not archived · Council Link
TOPOGRAPHIC SURVEY
Drawing
Not archived · Council Link
UNITED UTILITIES - COMMENTS
Consultee Comment
Not archived · Council Link
UNITED UTILITIES - FURTHER COMMENTS
Consultee Comment
Not archived · Council Link

Take Action

Make your voice heard. Authorities need to hear from people who support new homes.

✉️ Write Email in Support View on Council Portal