← Back to Rossendale Borough Council

Status

Pending Consideration
Received
05 Aug 2025
New dwellings
n/a

Summary

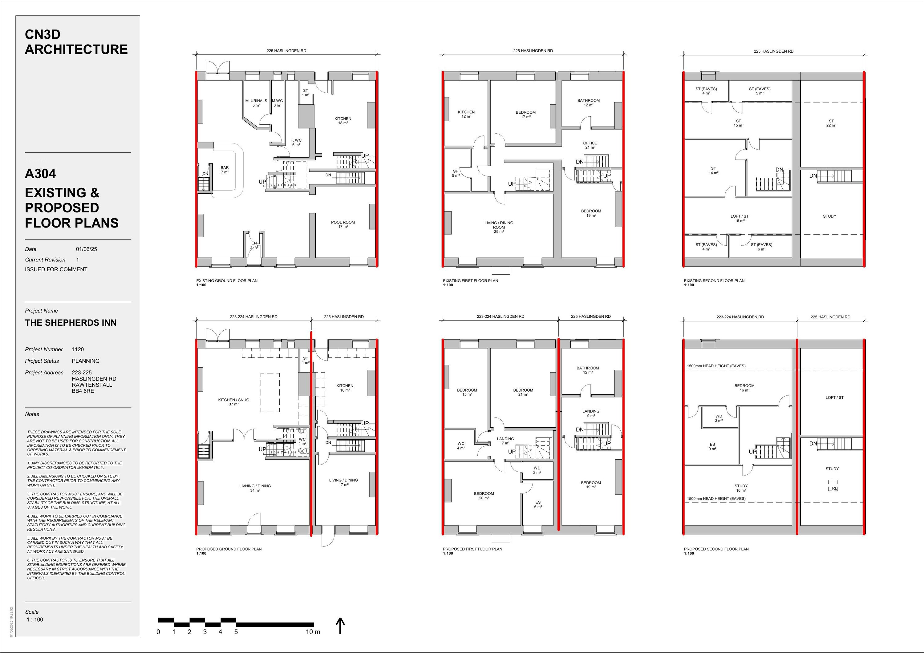
Convert public house and first-floor flat into two residential dwellings.

Full Proposal

Full: Conversion of Public House and first floor flat into 2no. dwellings (Use Class C3)

Documents

APPLICATIONFORMREDACTED
Application Form
Not archived · Council Link
CONTAMINATED LAND QUESTIONNAIRE
Other
Not archived · Council Link
ENVIRONMENTAL PROTECTION - COMMENTS
Consultee Comment
Not archived · Council Link
EXISTING AND PROPOSED ELEVATIONS
Drawing
Not archived · Council Link
Block Plan
Archived · Council Link
LCC HIGHWAYS - COMMENTS
Consultee Comment
Not archived · Council Link
LOCATION PLAN
Location Plan
Not archived · Council Link
PLANNING STATEMENT (1)
Design & Access Statement
Not archived · Council Link
Block Plan
Archived · Council Link
RBC OPERATIONS - COMMENTS
Consultee Comment
Not archived · Council Link

Take Action

Make your voice heard. Authorities need to hear from people who support new homes.

✉️ Write Email in Support View on Council Portal