← Back to Rossendale Borough Council

Status

Pending Consideration
Received
27 Oct 2025
New dwellings
n/a

Full Proposal

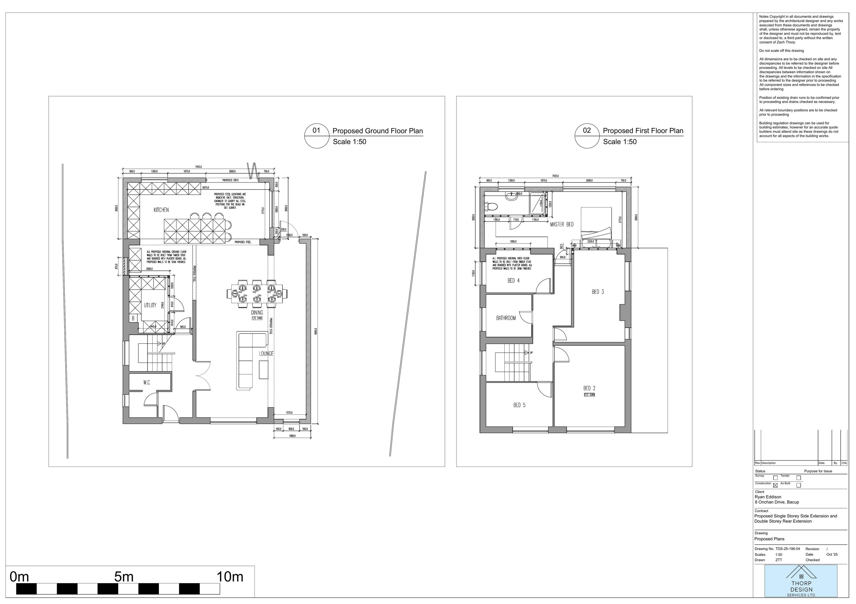
Householder: Proposed Single Storey Side Extension and Double Storey Rear Extension

Documents

APPLICATIONFORMREDACTED
Application Form
Not archived · Council Link
EXISTING ELEVATIONS
Drawing
Not archived · Council Link
EXISTING PLANS
Drawing
Not archived · Council Link
Block Plan
Archived · Council Link
LCC HIGHWAYS - COMMENTS
Consultee Comment
Not archived · Council Link
LOCATIONPLAN
Location Plan
Not archived · Council Link
PROPOSED ELEVATIONS
Drawing
Not archived · Council Link
Drawing
Archived · Council Link
Block Plan
Archived · Council Link

Take Action

Make your voice heard. Authorities need to hear from people who support new homes.

✉️ Write Email in Support View on Council Portal