← Back to Rossendale Borough Council

Status

Pending Consideration
Received
27 Oct 2025
New dwellings
n/a

Full Proposal

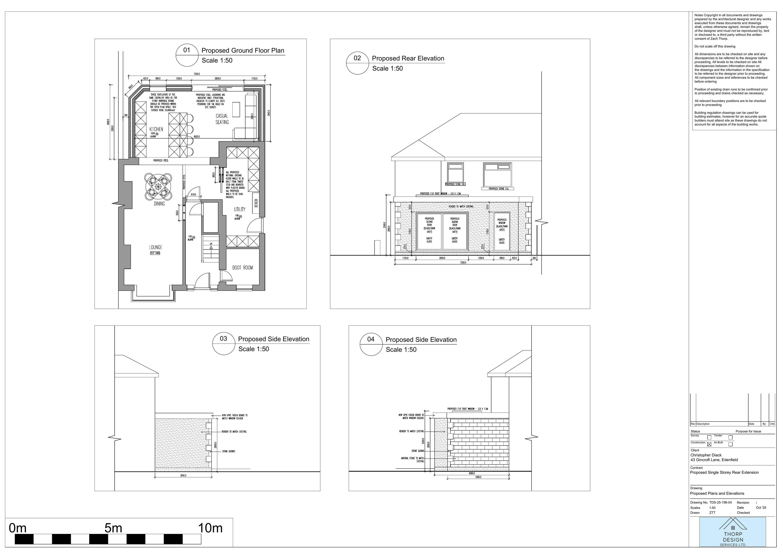
Householder: Proposed Single Storey Rear Extension

Documents

APPLICATIONFORMREDACTED
Application Form
Not archived · Council Link
EXISTING PLANS AND ELEVATIONS
Drawing
Not archived · Council Link
Block Plan
Archived · Council Link
LOCATIONPLAN
Location Plan
Not archived · Council Link
Revised Drawing
Archived · Council Link
Block Plan
Archived · Council Link

Take Action

Make your voice heard. Authorities need to hear from people who support new homes.

✉️ Write Email in Support View on Council Portal