← Back to Rossendale Borough Council

Status

Pending Consideration
Received
17 Nov 2025
New dwellings
n/a

Summary

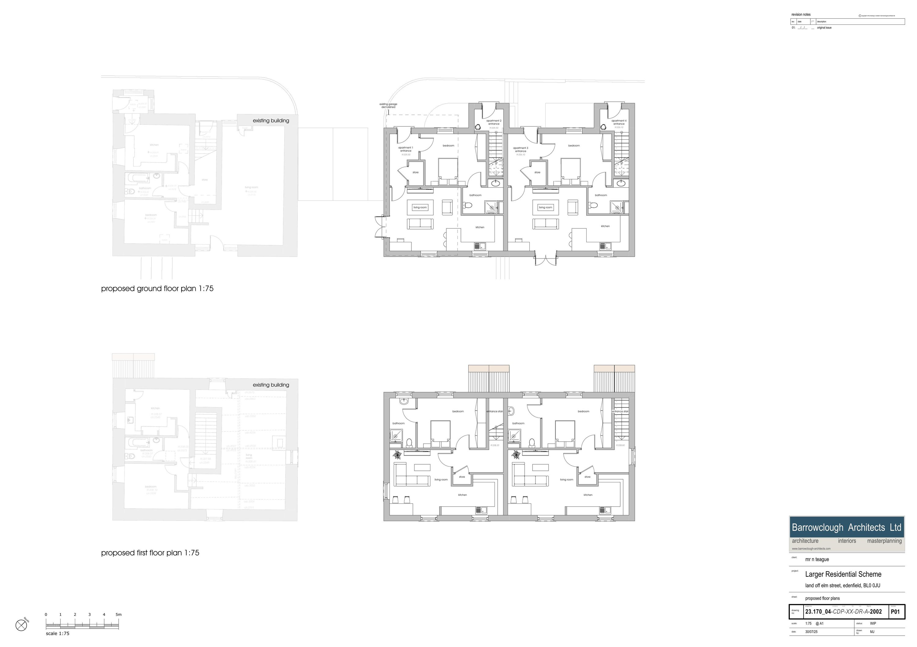
Convert garage into 4 self-contained apartments.

Full Proposal

Demolition of existing detached garage and erection of two storey building to create 4 no. self-contained apartments including associated improvements to the vehicular access.

Documents

18 TONNE RIGID HGV
Report
Not archived · Council Link
2025-11-14 PLANNING STATEMENT
Report
Not archived · Council Link
23.170_04 DESIGN AND ACCESS STATEMENT
Report
Not archived · Council Link
ACCESS DESIGN LAYOUT
Drawing
Not archived · Council Link
APPLICATIONFORMREDACTED
Application Form
Not archived · Council Link
ARTICULATED HGV
Report
Not archived · Council Link
BIN STORE DETAILS
Drawing
Not archived · Council Link
CYCLE STORE DETAILS
Drawing
Not archived · Council Link
ERAP LTD 2024-187 MANGLE FOLD FARM BAT REPORT_23.08.24
Report
Not archived · Council Link
EXISTING ELEVATIONS
Drawing
Not archived · Council Link
EXISTING FLOOR PLAN
Drawing
Not archived · Council Link
Drawing
Archived · Council Link
LOCATION PLAN
Drawing
Not archived · Council Link
MANGLE FOLD SMALL SITES METRIC PORTAL
Report
Not archived · Council Link
NT05-CCE-XX-XX-RP-C-0001 - COAL MINING RISK ASSESSMENT
Report
Not archived · Council Link
PROPOSED ELEVATIONS
Drawing
Not archived · Council Link
Drawing
Archived · Council Link
Drawing
Archived · Council Link
STANDARD RIGID BUS
Report
Not archived · Council Link
SWEPT PATH ANALYSIS 1 OF 3
Drawing
Not archived · Council Link
SWEPT PATH ANALYSIS 2 OF 3
Drawing
Not archived · Council Link
SWEPT PATH ANALYSIS 3 OF 3
Drawing
Not archived · Council Link
THE COAL AUTHORITY - RESPONSE
Consultee Comment
Not archived · Council Link
VISUALS
Drawing
Not archived · Council Link

Take Action

Make your voice heard. Authorities need to hear from people who support new homes.

✉️ Write Email in Support View on Council Portal