← Back to Rossendale Borough Council

Status

Pending Consideration
Received
08 Dec 2025
New dwellings
n/a

Full Proposal

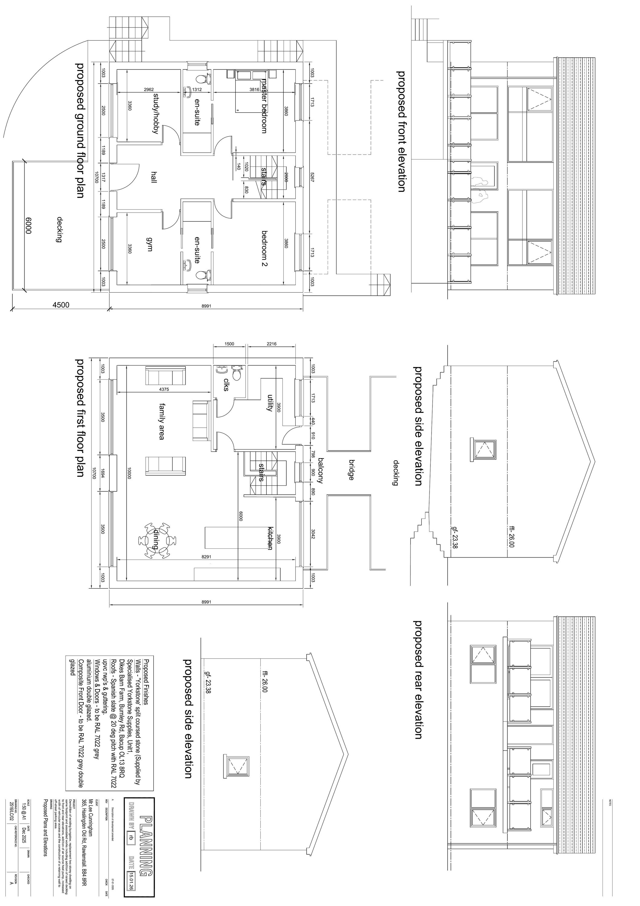
Full: Demolition of existing bungalow, replacement two storey dwelling on same footprint and associated works including addition of raised decking to front and rear elevations, addition of air source heat pump, increased width of vehicular access and the construction of a retaining wall to off-street parking area.

Documents

2516- CONSTRUCTION MANAGEMENT TRAFFIC PLAN
Other
Not archived · Council Link
2516- CONSTRUCTION METHOD STATEMENT
Other
Not archived · Council Link
2516- HERITAGE STATEMENT
Other
Not archived · Council Link
2516-DESIGN AND ACCESS INCLUDING PLANNING JUSTIFICATION STATEMENT
Design & Access Statement
Not archived · Council Link
2516-GREEN BELT JUSTIFICATION
Other
Not archived · Council Link
2516-TREE PROTECTION METHOD STATEMENT PDF
Other
Not archived · Council Link
ADDENDUM TO BAT PRA REPORT 365 HASLINGDEN OLD ROAD RAWTENSTALL BB4 8RR
Other
Not archived · Council Link
AIR SOURCE HEAT PUMP SPECIFICATION DOCUMENTS - MODEL INSTALLED IS 12KW
Other
Not archived · Council Link
APPLICATIONFORMREDACTED
Application Form
Not archived · Council Link
BAT AND SPARROW TERRACE
Other
Not archived · Council Link
BAT PRA REPORT 365 HASLINGDEN OLD ROAD RAWTENSTALL BB4 8RR
Other
Not archived · Council Link
BIODIVERSITY NET GAIN ASSESSMENT
Other
Not archived · Council Link
BNG METRIC
Other
Not archived · Council Link
BOUNDARY TREATMENT
Drawing
Not archived · Council Link
BS5837 2012 TREES IN RELATION TO DESIGN - DEMOLITION AND CONSTRUCTION
Other
Not archived · Council Link
COMPARISON OVERLAY SECTION
Drawing
Not archived · Council Link
COMPARISON OVERLAY TOWARDS NEIGHBOUR
Drawing
Not archived · Council Link
EXISTING DWELLING
Drawing
Not archived · Council Link
F-LINE-INSTALL-RAIN-ACTIV-1123
Other
Not archived · Council Link
HARD AND SOFT LANDSCAPING GENERAL LAYOUT PLAN
Drawing
Not archived · Council Link
IMAGE FROM EXTG REAR DECKING TOWARDS NEIGHBOUR
Other
Not archived · Council Link
INDICATIVE MATERIAL IMAGES
Other
Not archived · Council Link
LIST OF SHRUBS AND TREES
Other
Not archived · Council Link
MULBERRY - PLANTING SCHEDULE AND SPECIFICATION FOR PLANTING
Other
Not archived · Council Link
NEST BUILDING SERVICES LIMITEDIMW223837
Other
Not archived · Council Link
PRA PHASE 1 DESK STUDY
Other
Not archived · Council Link
PROPOSED COMPOUND
Drawing
Not archived · Council Link
PROPOSED DRAINAGE
Drawing
Not archived · Council Link
PROPOSED SITE LAYOUT
Drawing
Not archived · Council Link
SITE LAYOUT PLAN/LOCATION PLAN
Location Plan
Not archived · Council Link
SITE SECTIONS
Drawing
Not archived · Council Link
TREE PROTECTION AREA
Drawing
Not archived · Council Link

Take Action

Make your voice heard. Authorities need to hear from people who support new homes.

✉️ Write Email in Support View on Council Portal