← Back to Rossendale Borough Council

Status

Pending Consideration
Received
16 Dec 2025
New dwellings
n/a

Full Proposal

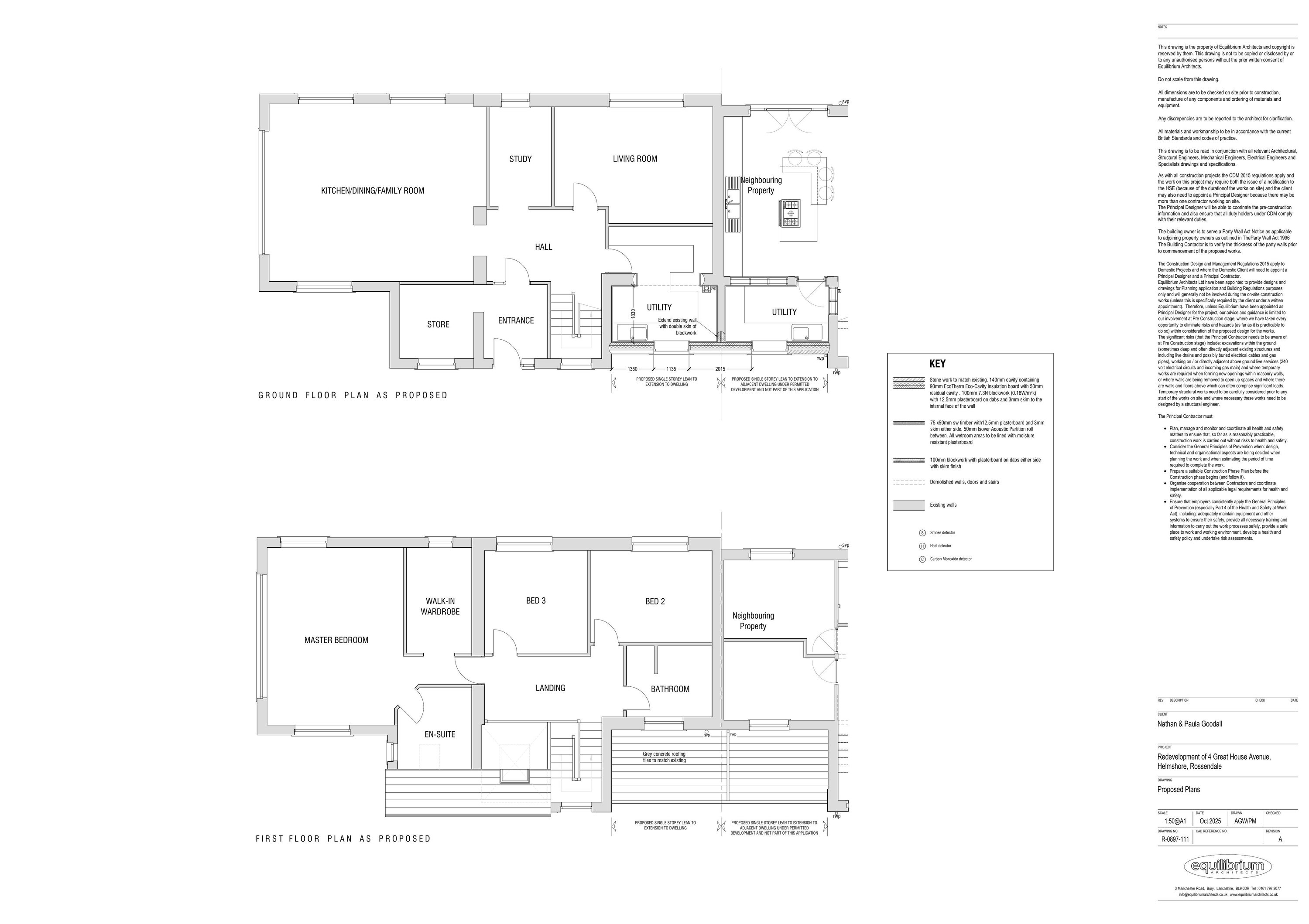
Householder: Single storey infill extension

Documents

HOUSEHOLDER APPLICATION FORM_REDACTED
Application Form
Not archived · Council Link
R-0897-101 - EXISTING PLANS
Drawing
Not archived · Council Link
R-0897-102 - EXISTING ELEVATIONS
Drawing
Not archived · Council Link
R-0897-112A PROPOSED ELEVATIONS
Drawing
Not archived · Council Link

Take Action

Make your voice heard. Authorities need to hear from people who support new homes.

✉️ Write Email in Support View on Council Portal