← Back to Rugby Borough Council

Status

Decision Made
Received
10 Jun 2025
New dwellings
n/a

Summary

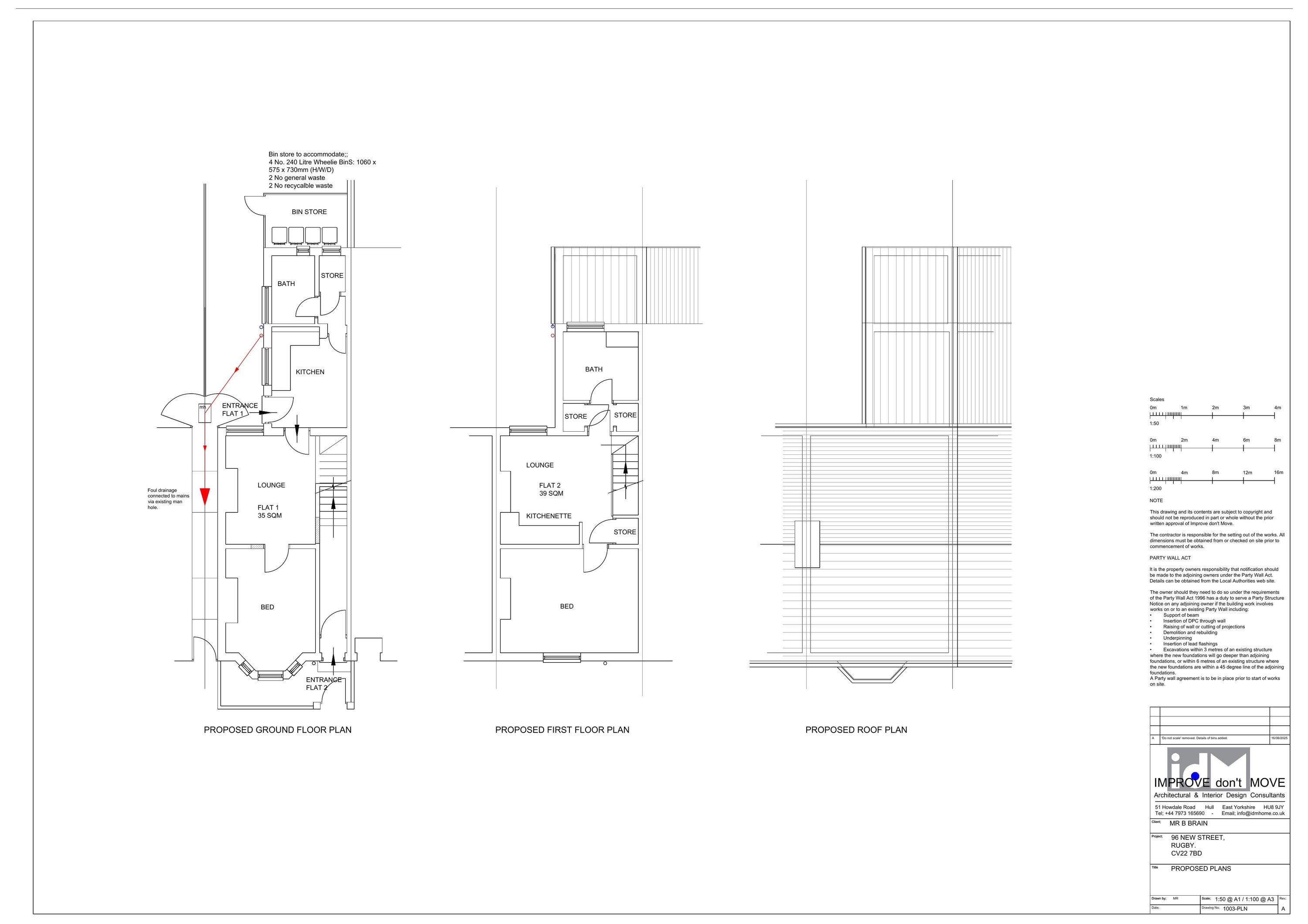
Change of use from a single dwelling to two self-contained flats.

Full Proposal

Change of use from a single dwelling to two self contained flats.

Documents

664231Decision_Approval_Planning_Permission_7873.pdf
Decision Notice
Not archived · Council Link
ApasTemplate_8006.pdf
Officer Report
Not archived · Council Link
Application Form - Without Personal Data R'cd 10.06.2025
Application Form
Not archived · Council Link
Block Plan R'cd 10.06.2025
Block Plan
Not archived · Council Link
Existing Plans and Sections R'cd 19.06.2025
Existing Plans
Not archived · Council Link
Existing Plans R'cd 19.06.2025
Existing Plans
Not archived · Council Link
Proposed Elevations and Sections R'cd 19.06.2025
Proposed Plans
Not archived · Council Link
Proposed Plans
Archived · Council Link
Site Location Plan
Archived · Council Link
Sustainability appraisal R'cd 10.06.2025
Sustainability Checklist
Not archived · Council Link

Take Action

Make your voice heard. Authorities need to hear from people who support new homes.

✉️ Write Email in Support View on Council Portal