← Back to Rushcliffe Borough Council
25/01120/FUL
Rushcliffe Borough Council · IDOX
Status
Pending Decision
Received
20 Jun 2025
New dwellings
n/a
Summary
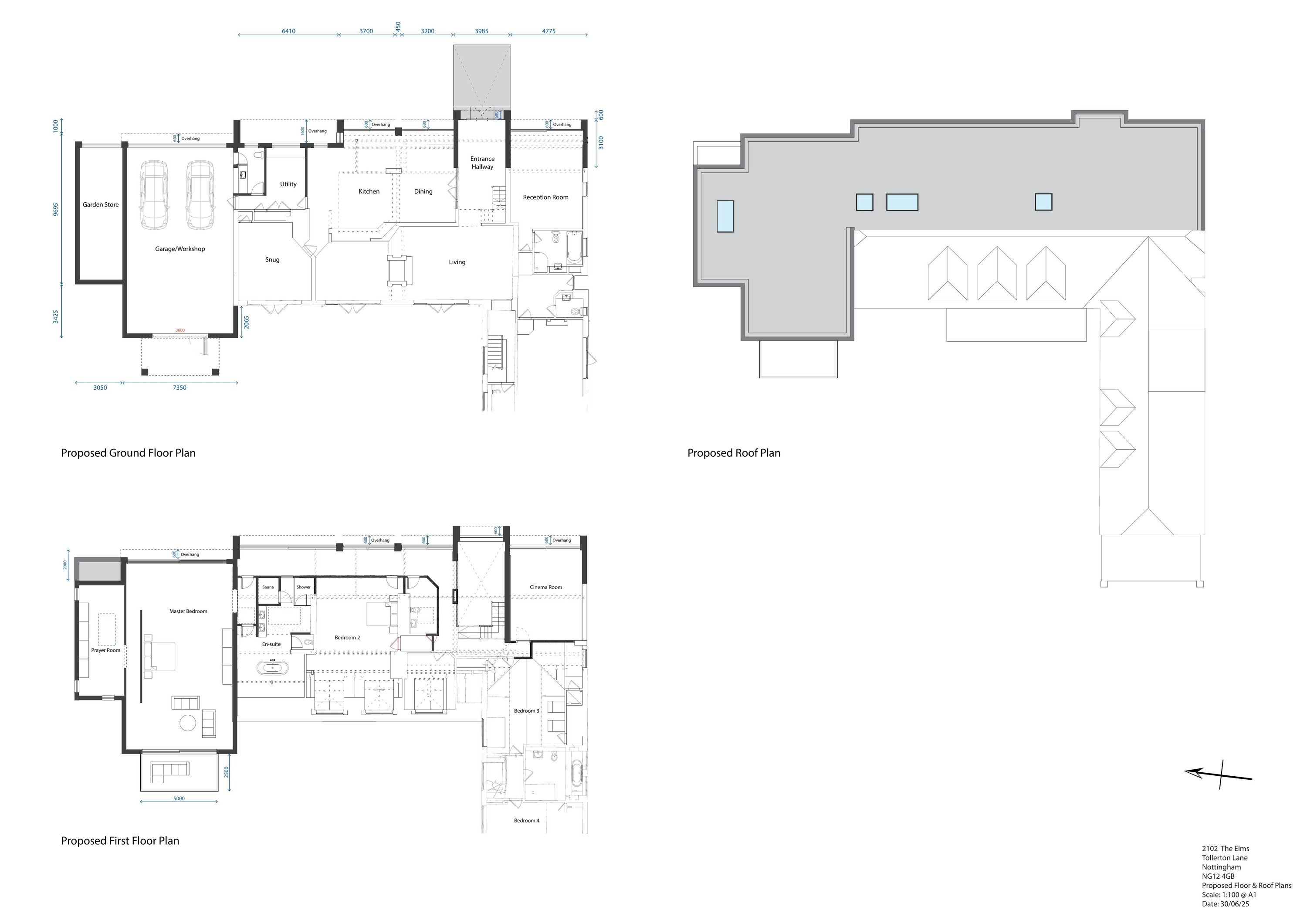
Two-storey front extension, garage conversion with two-storey link, first floor extension and rear balcony.
Full Proposal
Proposed front elevation remodel includes two storey front extension, front ramp and application of render. Conversion of existing detached garage, to include two storey link to existing dwelling, first floor extension and balcony to rear. Landscaping and associated external works.
Documents
Take Action
Make your voice heard. Authorities need to hear from people who support new homes.