← Back to Rushcliffe Borough Council

Status

Pending Decision
Received
16 Sep 2025
New dwellings
n/a

Full Proposal

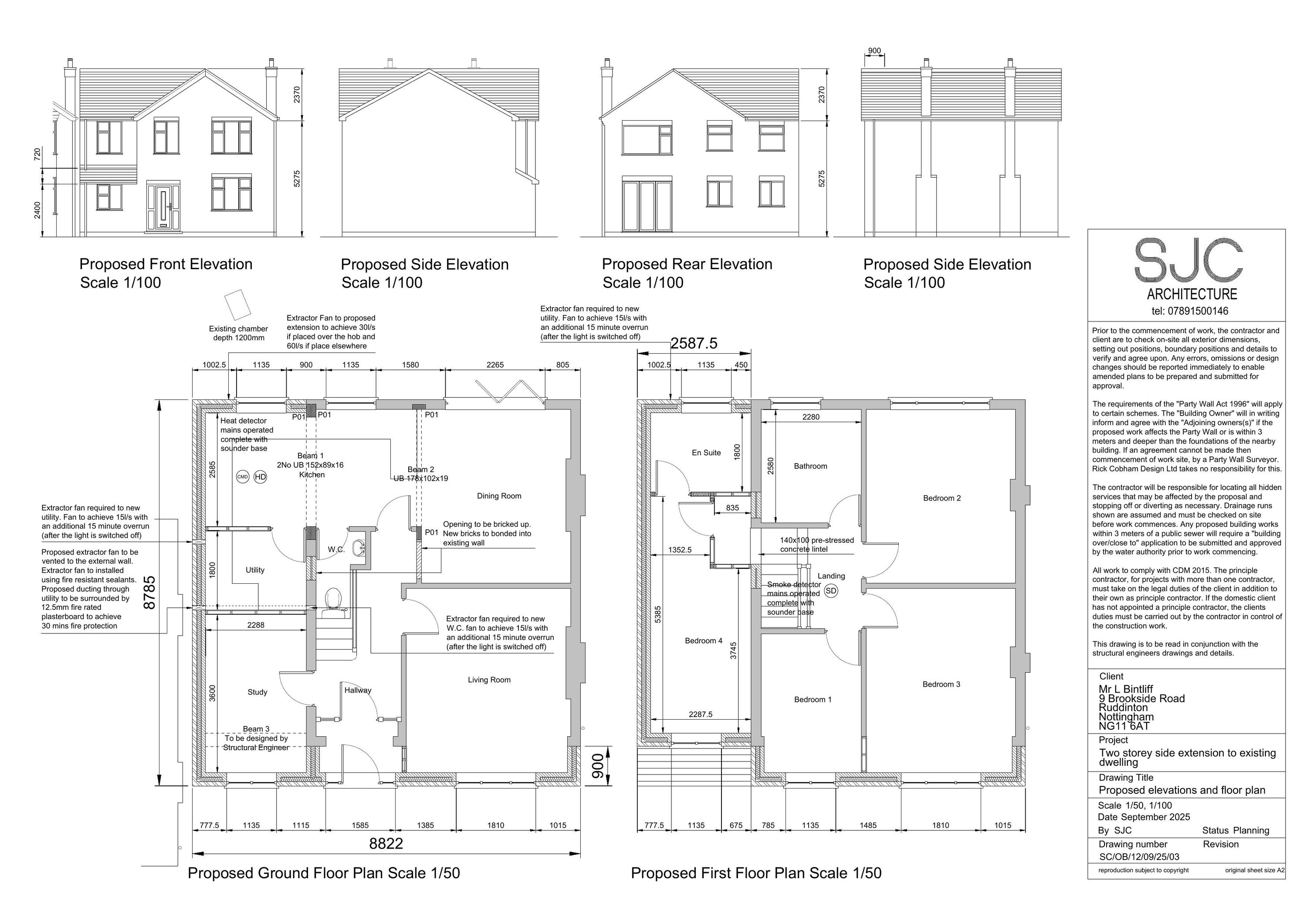
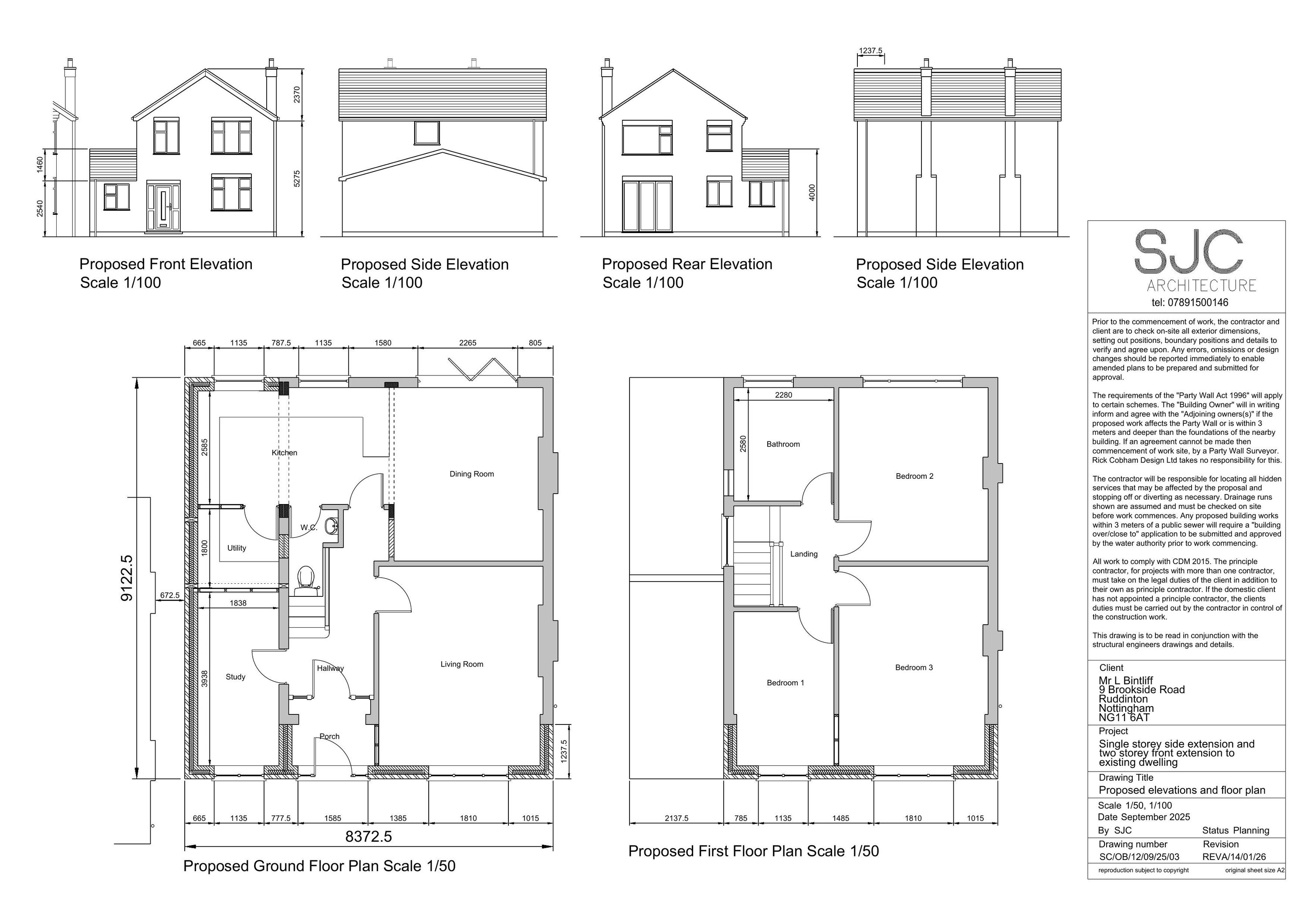
Demolition of storage area, two storey front and single storey side extension to existing dwelling

Documents

APPLICATIONFORMREDACTED
Application Form
Not archived · Council Link
EXISTING PLANS
Plans
Not archived · Council Link
LOCATION AND BLOCK PLANS
Plans
Not archived · Council Link
MS RUDDINGTON PARISH CLERK
Consultee Comment
Not archived · Council Link
MS RUDDINGTON PARISH CLERK
Consultee Comment
Not archived · Council Link
Plans
Archived · Council Link
Plans (proposed)
Archived · Council Link
SITE LOCATION AND BLOCK PLAN
Site location plan
Not archived · Council Link
Superseded Plans
Archived · Council Link
SUPERSEDED - SITE LOCATION AND BLOCK PLAN
Superseded Plans
Not archived · Council Link

Take Action

Make your voice heard. Authorities need to hear from people who support new homes.

✉️ Write Email in Support View on Council Portal