← Back to Rushcliffe Borough Council

Status

Pending Decision
Received
Last month
New dwellings
n/a

Full Proposal

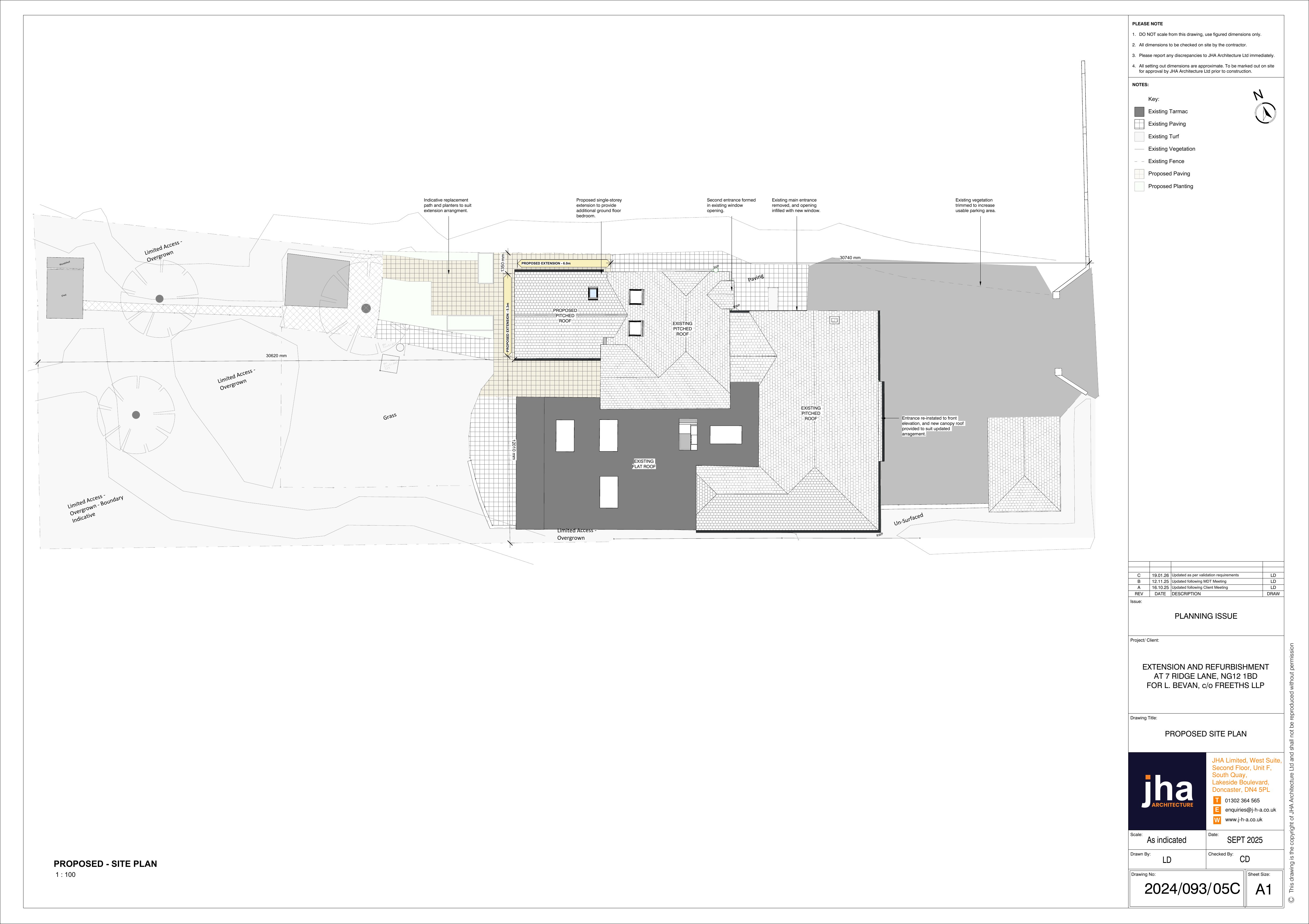
Single storey rear extension with rooflights and internal adaptations to an existing dwelling. Alterations to fenestration. New front entrance with canopy roof.

Documents

Application Form
Application Form
Not archived · Council Link
EXISTING ELEVATIONS
Plans
Not archived · Council Link
EXISTING FIRST FLOOR PLAN
Plans (existing)
Not archived · Council Link
EXISTING GROUND FLOOR PLAN
Plans
Not archived · Council Link
EXISTING SITE
Plans
Not archived · Council Link
MRS HAYLEY GANDY
Consultee Comment
Not archived · Council Link
PROPOSED ELEVATIONS.
Plans
Not archived · Council Link
PROPOSED FIRST FLOOR
Plans
Not archived · Council Link
PROPOSED FIRST FLOOR PLAN
Plans
Not archived · Council Link
PROPOSED GROUND FLOOR
Plans
Not archived · Council Link
Plans
Archived · Council Link
Site location plan
Archived · Council Link

Take Action

Make your voice heard. Authorities need to hear from people who support new homes.

✉️ Write Email in Support View on Council Portal