← Back to Rushcliffe Borough Council

Status

Pending Decision
Received
19 days ago
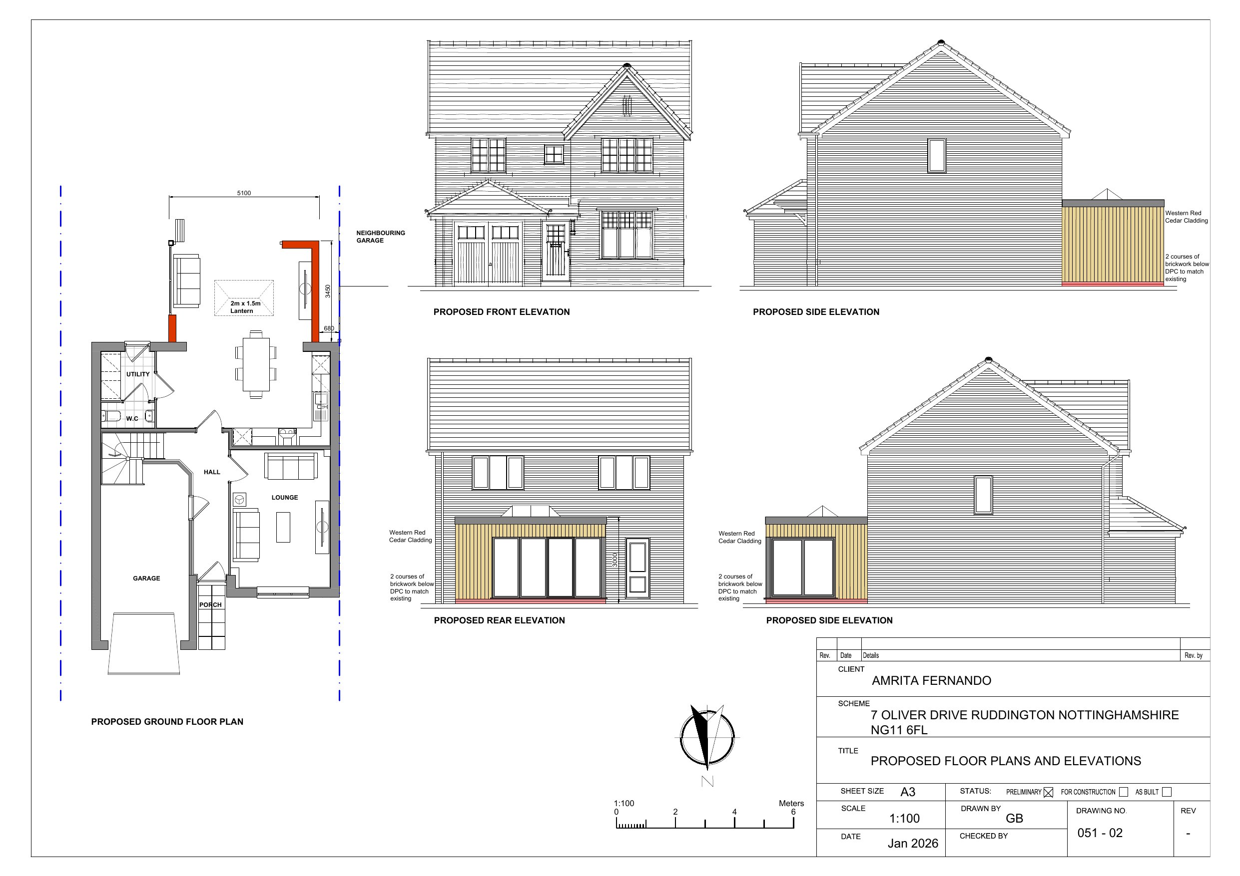
New dwellings
n/a

Full Proposal

Single storey rear extension with flat roof and timber cladding finish.

Documents

2026_020 - 7 OLIVE DRIVE - FLOOD RISK IMPACT STATEMENT__
Flood Risk Assessment
Not archived · Council Link
APPLICATIONFORMREDACTED
Application Form
Not archived · Council Link
EXISTING PLANS
Plans
Not archived · Council Link
LOCATIONPLAN
Superseded Plans
Not archived · Council Link
MS RUDDINGTON PARISH CLERK
Consultee Comment
Not archived · Council Link
Plans
Archived · Council Link
SITE AND BLOCK PLANS
Plans
Not archived · Council Link
Site location plan
Archived · Council Link

Take Action

Make your voice heard. Authorities need to hear from people who support new homes.

✉️ Write Email in Support View on Council Portal