← Back to all authorities

Recent applications

Showing the most recent records stored for this authority (max 200).

Erection of a three-storey building with Class E Use on ground floor and 2 X 2-bed flats on the upper floors with associated parking

Type n/a
Status Registered
Date Last month

Outline application for demolition of existing buildings and provision of up to 420 dwellings (Use Class C3), with new vehicular and active ...

Type n/a
Status Registered
Date 15 days ago

Change of use of building and site from offices (Class E) to assisted living (Class C2) including conversion works to a listed building and ...

Type n/a
Status Registered
Date 29 Nov 2025

A full crown reduction to the height of 8.5m same height as house and a reduction of volume by 50% to a sweet chestnut (Castanea sativa) as ...

Type n/a
Status Unknown
Date 19 Nov 2025

CERTIFICATE OF EXISTING LAWFUL USE: Use of dwelling as a 9 bedroom (14 Person) House in Multiple Occupation

Type n/a
Status Registered
Date 05 Dec 2025
Plan thumbnail

Change of use of ticket office building into cafe with outdoor seating and shop front alterations

Type n/a
Status Registered
Date 28 Nov 2025
Plan thumbnail

Change of use of building and site from offices (Class E) to assisted living (Class C2) including conversion works to a listed building and ...

Type n/a
Status Registered
Date 29 Nov 2025
Plan thumbnail

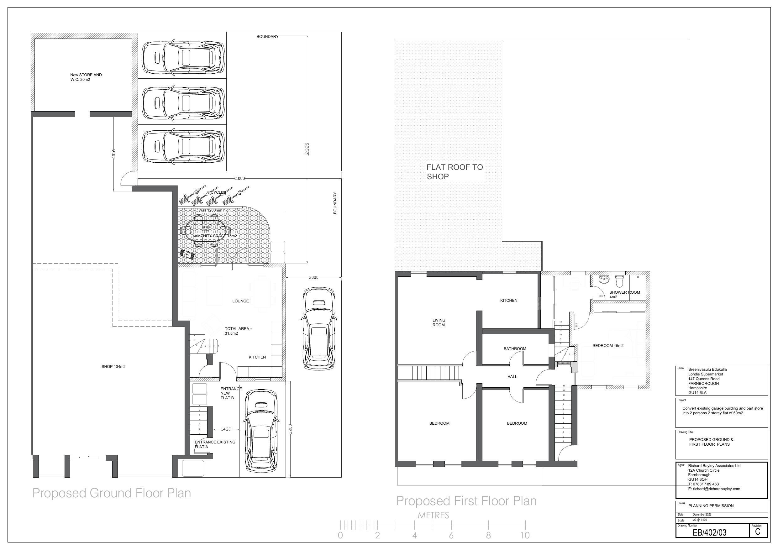
Demolition of existing annexe to side (formerly a double garage) and erection of 2-storey side extension comprising 2-person occupancy 1-bed...

Type n/a
Status Registered
Date 17 Nov 2025
Plan thumbnail

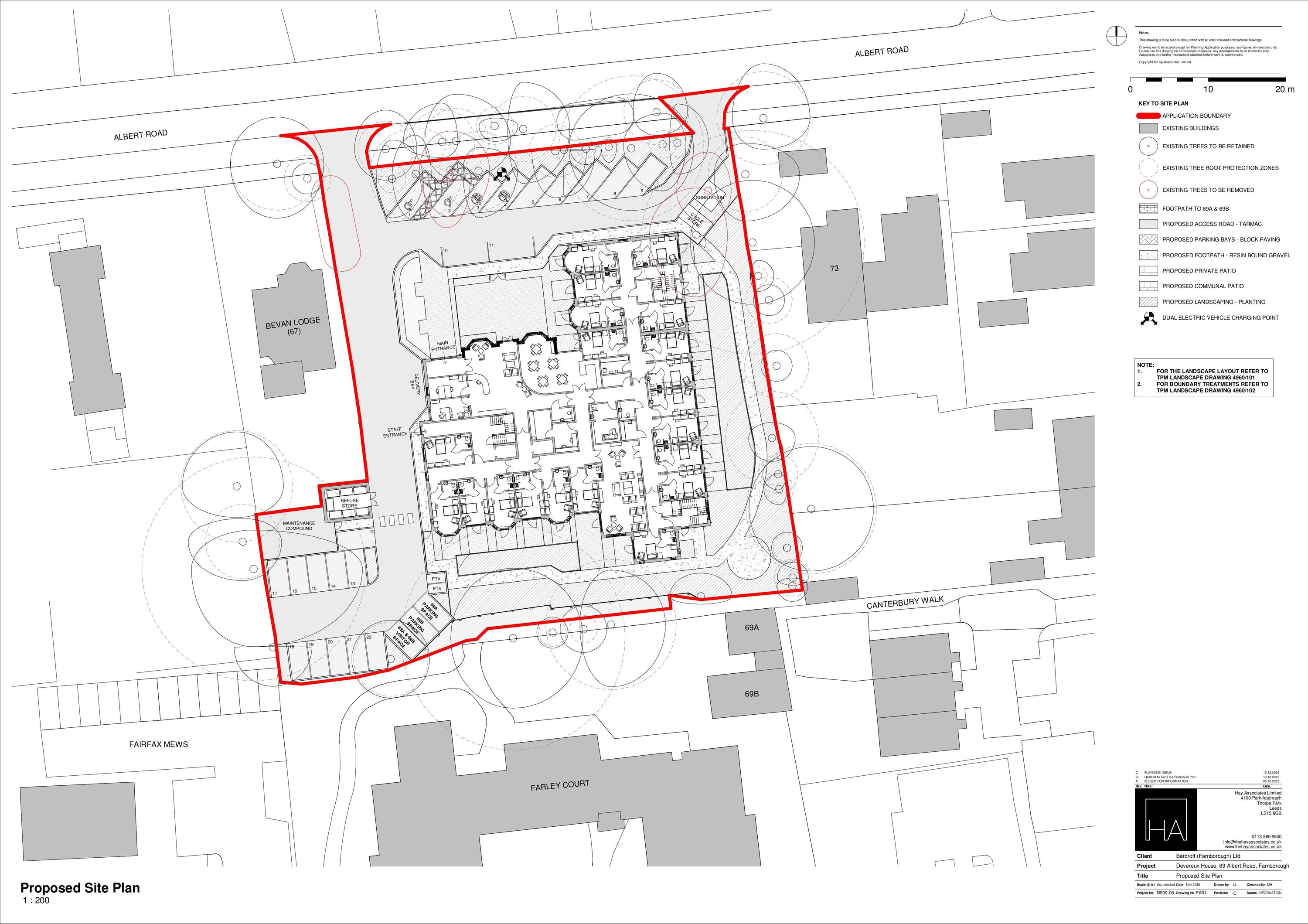
Demolition of existing building, excluding the original façade to Devereux House which is to be retained, and construction of part two/three...

Type n/a
Status Registered
Date Last month
Plan thumbnail

Erection of an additional (fourth) storey to provide four flats comprising 3 x 1-bedroom and 1 x 2-bedroom flats

Type n/a
Status Unknown
Date 14 Aug 2024

Convert offices to a flat, add staircase and walkway.

Type n/a
Status Registered
Date 14 Nov 2025