← Back to Sandwell Council

Status

Unknown
Received
24 Dec 2024
New dwellings
n/a

Full Proposal

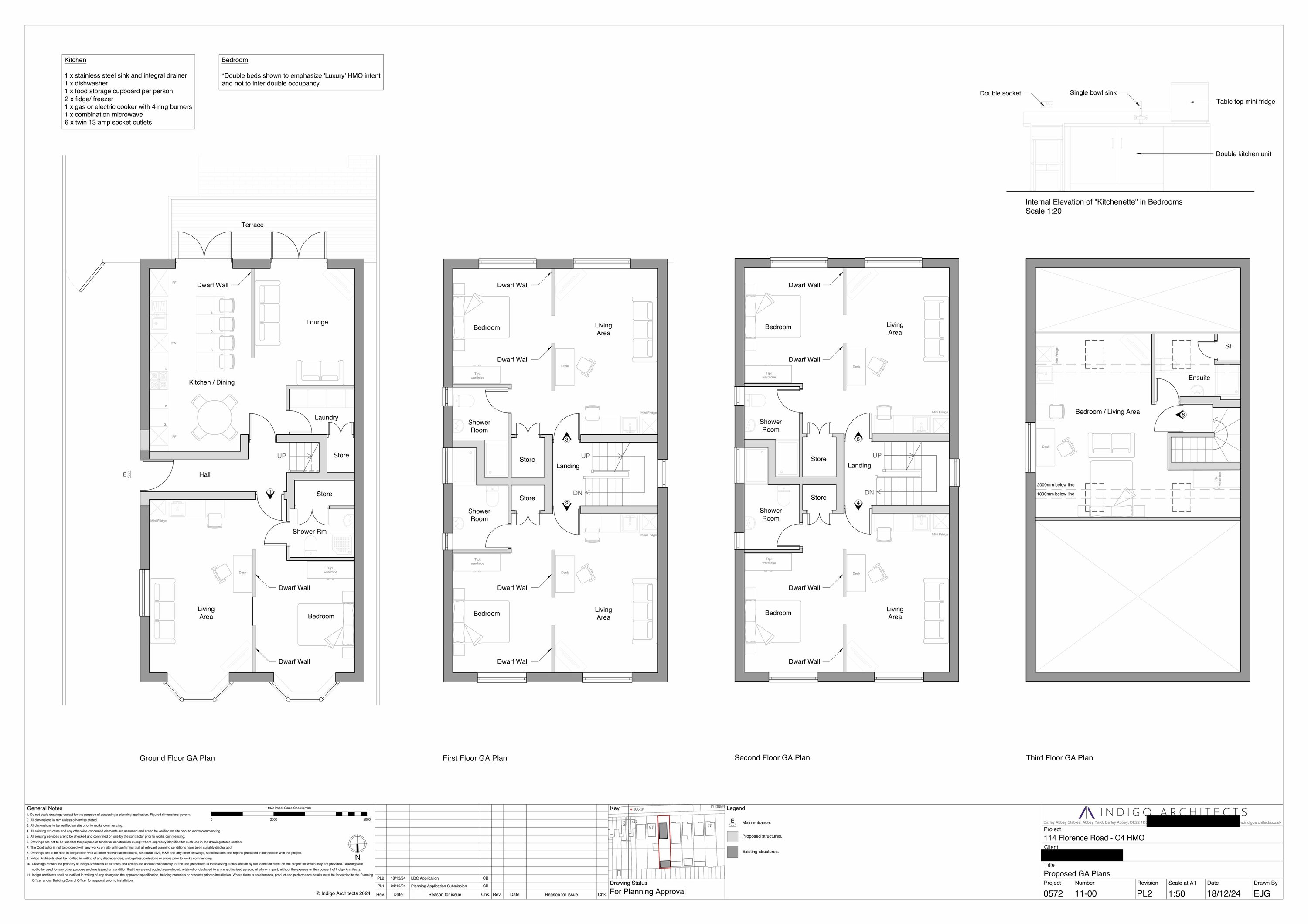
Proposed change of use from residential dwelling to HMO for six residents and loft conversion (Lawful Development Certificate).

Documents

Revised Drawing
Archived · Council Link
COVER LETTER
Correspondence
Not archived · Council Link
EXISTING FLOOR PLANS
Drawing
Not archived · Council Link
EXISTING LOCATION & BLOCK PLAN
OS Extract
Not archived · Council Link
GRANT LAWFUL USE CERTIFICATE
Decision
Not archived · Council Link
LAWFUL CERTIFICATE TO CONFIRM PROPOSED USE/DEVELOPMENT IS LAWFUL
Application Form
Not archived · Council Link

Take Action

Make your voice heard. Authorities need to hear from people who support new homes.

✉️ Write Email in Support View on Council Portal