← Back to Sandwell Council

Status

Awaiting decision
Received
31 Mar 2025
New dwellings
n/a

Summary

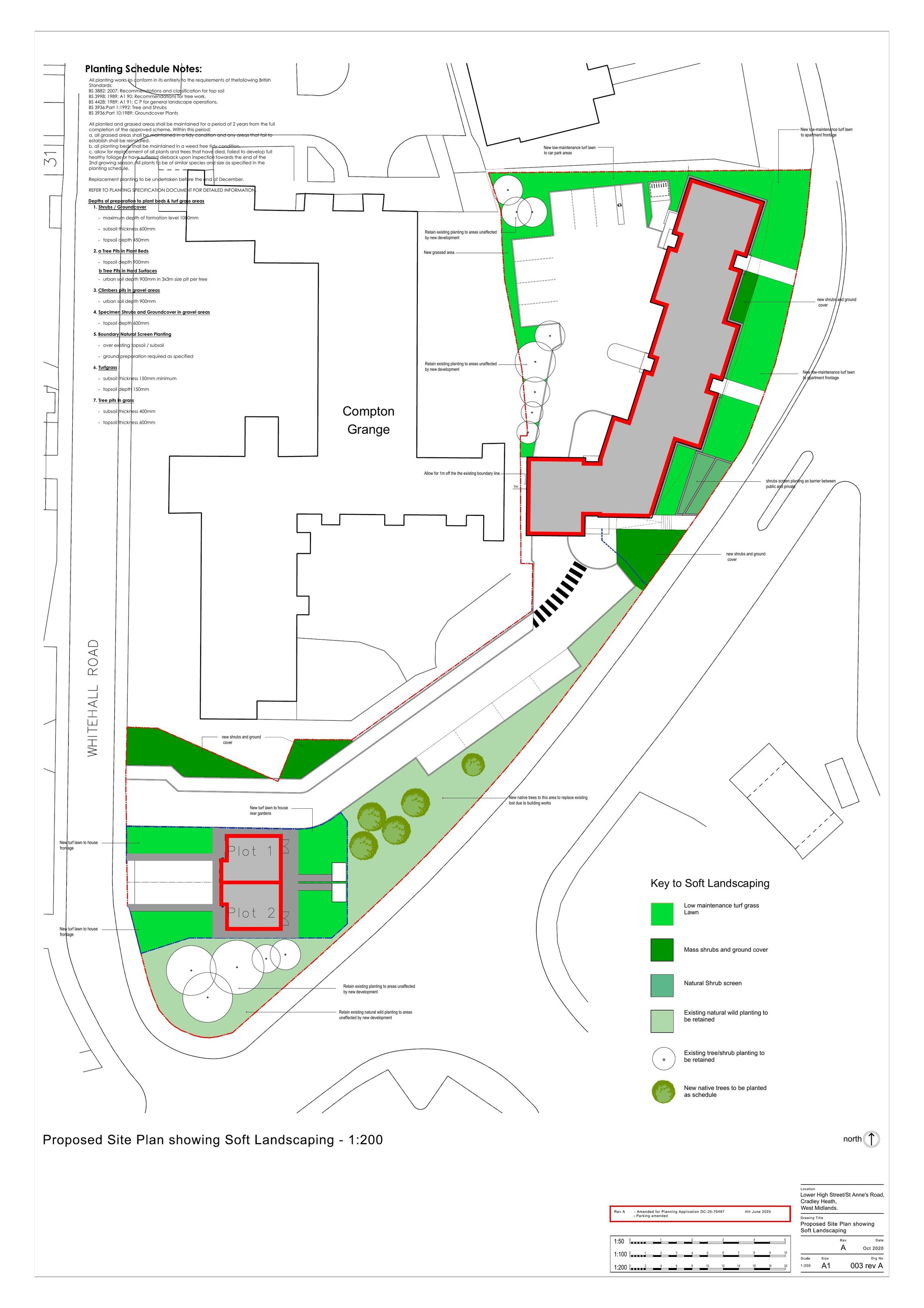
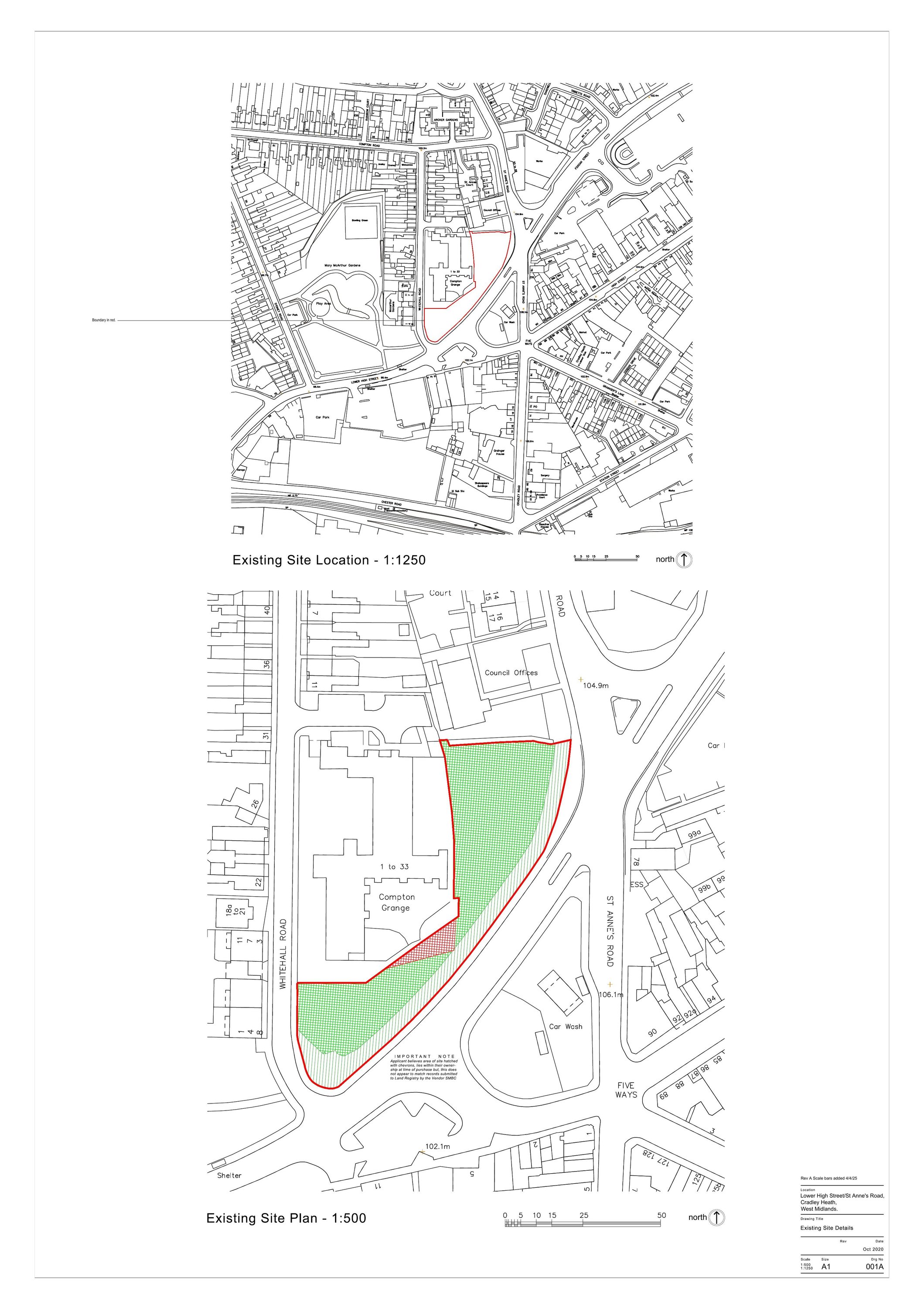
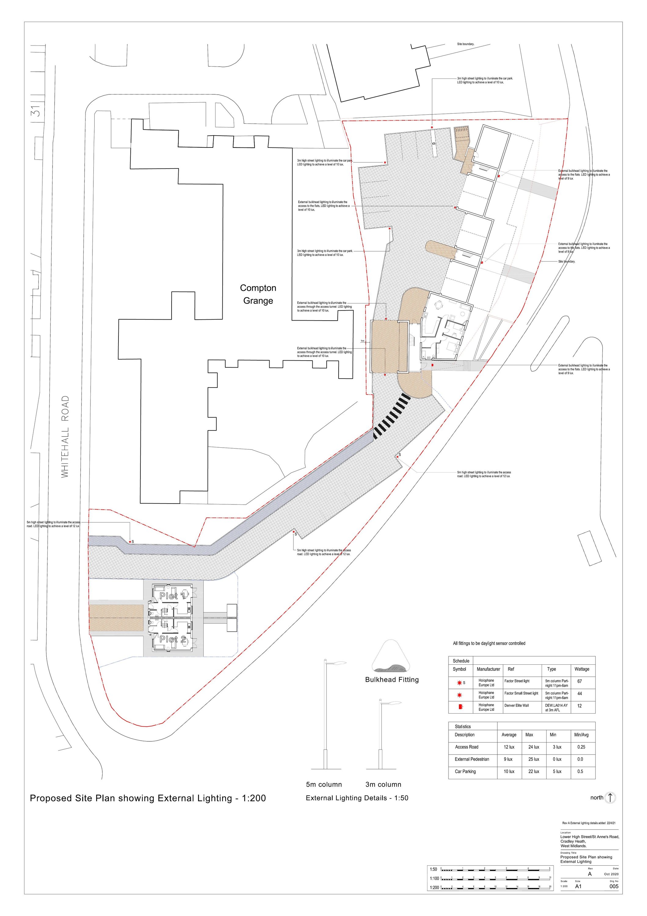
Three-storey block with 13 two-bed apartments and 2 houses with associated works.

Full Proposal

Proposed three storey apartment block comprising of 13 No. two bedroom self-contained apartments, 2 No. residential dwelling houses and associated works.

Documents

BIODIVERSITY NET GAIN ASSESSMENT
Report
Not archived · Council Link
BNG METRIC
Report
Not archived · Council Link
CIL ADDITIONAL INFORMATION
Application Form
Not archived · Council Link
DESIGN & ACCESS STATEMENT
Other
Not archived · Council Link
FLOOD RISK ASSESSMENT, SURFACE WATER STRATEGY & SUSTAINABLE DRAINAGE SYSTEMS ASS
Report
Not archived · Council Link
FULL APPLICATION FOR PLANNING PERMISSION
Application Form
Not archived · Council Link
HIGHWAYS COMMENTS
Consultee Comment
Not archived · Council Link
NHS COMMENTS
Consultee Comment
Not archived · Council Link
POLICY COMMENTS
Consultee Comment
Not archived · Council Link
PROPOSED FIRST FLOOR & ROOF PLANS APARTMENT BLOCK
Drawing
Not archived · Council Link
PROPOSED LOWER GROUND & UPPER GROUND FLOOR PLANS APARTMENT BLOCK
Drawing
Not archived · Council Link
PROPOSED NORTH EAST & NORTH WEST ELEVATIONS APARTMENT BLOCK
Drawing
Not archived · Council Link
PUBLIC HEALTH - AIR POLLUTION & NOISE COMMENTS
Consultee Comment
Not archived · Council Link
PUBLIC HEALTH - AIR QUALITY COMMENTS
Consultee Comment
Not archived · Council Link
PUBLIC HEALTH - CONTAMINATED LAND COMMENTS
Consultee Comment
Not archived · Council Link
SEVERN TRENT WATER COMMENTS
Consultee Comment
Not archived · Council Link
STAFFORDSHIRE COUNTY COUNCIL FLOOD RISK COMMENTS
Consultee Comment
Not archived · Council Link
SUPERSEDED LOCATION/BLOCK PLAN
OS Extract
Not archived · Council Link
TOPOGRAPHICAL SURVEY
Drawing
Not archived · Council Link
TRANSPORTATION PLANNING COMMENTS
Consultee Comment
Not archived · Council Link
WEST MIDLANDS POLICE COMMENTS
Consultee Comment
Not archived · Council Link

Take Action

Make your voice heard. Authorities need to hear from people who support new homes.

✉️ Write Email in Support View on Council Portal