← Back to Sandwell Council

Status

Decided
Received
07 Apr 2025
New dwellings
n/a

Summary

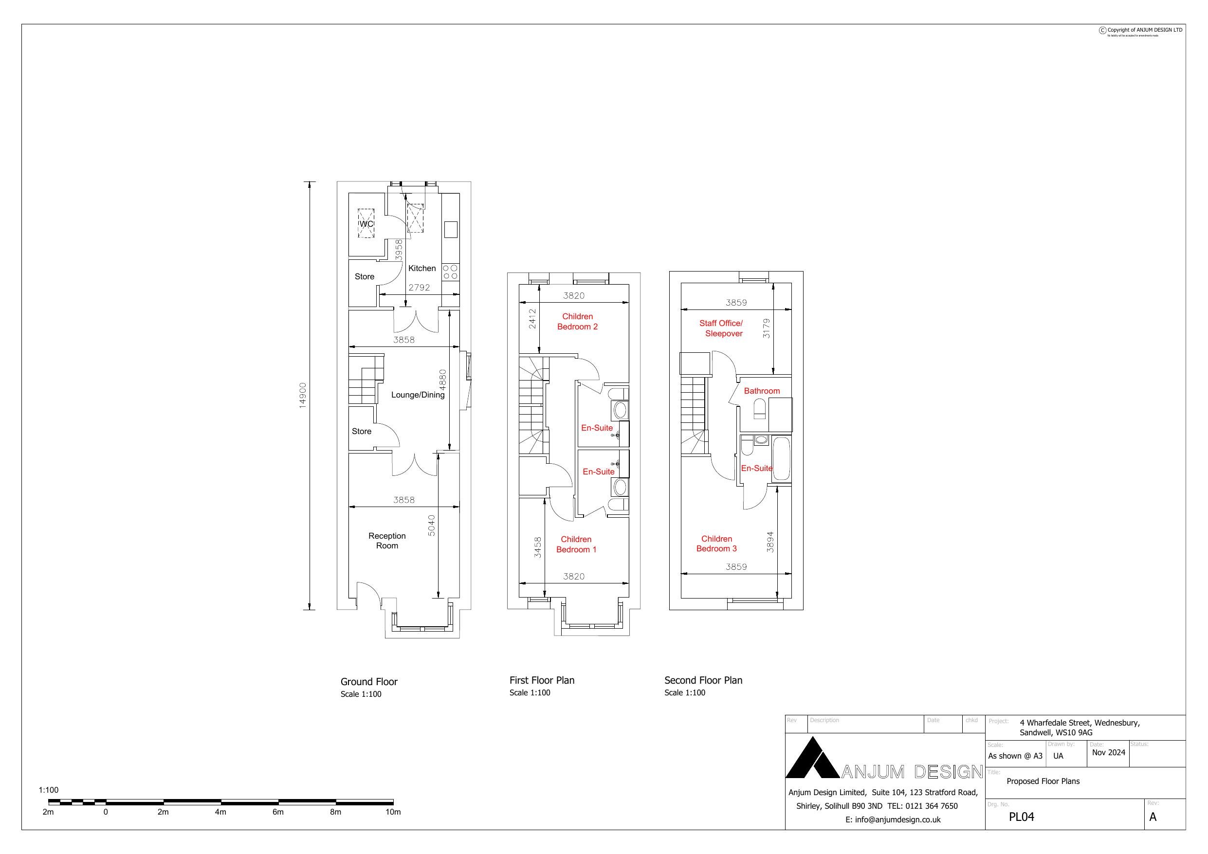
Change of 4-bed house to residential children's home (C2) for up to three children; car port.

Full Proposal

Proposed change of use of 4 bedroom house (Class C3) into residential home (Class C2) for up to three children and proposed car port to the rear.

Documents

Revised Drawing
Archived · Council Link
Revised Drawing
Archived · Council Link
CHANGE OF USE APPLICATION FOR PLANNING PERMISSION
Application Form
Not archived · Council Link
COMMITTEE REPORT
Report
Not archived · Council Link
COMMITTEE REPORT
Committee Report
Not archived · Council Link
COMMITTEE REPORT
Committee Report
Not archived · Council Link
EXISTING FLOOR PLANS
Drawing
Not archived · Council Link
EXISTING GARAGE LAYOUT PLAN
Drawing
Not archived · Council Link
FINAL HIGHWAYS COMMENTS
Consultee Comment
Not archived · Council Link
FINAL HIGHWAYS COMMENTS
Consultee Comment
Not archived · Council Link
GRANT PERMISSION SUBJECT TO CONDITIONS
Decision
Not archived · Council Link
HIGHWAYS COMMENTS
Consultee Comment
Not archived · Council Link
LOCATION PLAN
OS Extract
Not archived · Council Link
OBJECTS
Objection Comment
Not archived · Council Link
PLANNING POLICY COMMENTS
Consultee Comment
Not archived · Council Link
PLANNING STATEMENT
Report
Not archived · Council Link
Drawing
Archived · Council Link
PROPOSED GARAGE LAYOUT PLAN
Drawing
Not archived · Council Link
SITE NOTICE
Other
Not archived · Council Link
SITE NOTICE PHOTOS AND LOCATION PLAN
Photo
Not archived · Council Link
Revised Drawing
Archived · Council Link
Drawing
Archived · Council Link
Revised Drawing
Archived · Council Link
WEST MIDLANDS POLICE COMMENTS
Consultee Comment
Not archived · Council Link

Take Action

Make your voice heard. Authorities need to hear from people who support new homes.

✉️ Write Email in Support View on Council Portal