← Back to Sandwell Council

Status

Decided
Received
22 Sep 2025
New dwellings
n/a

Summary

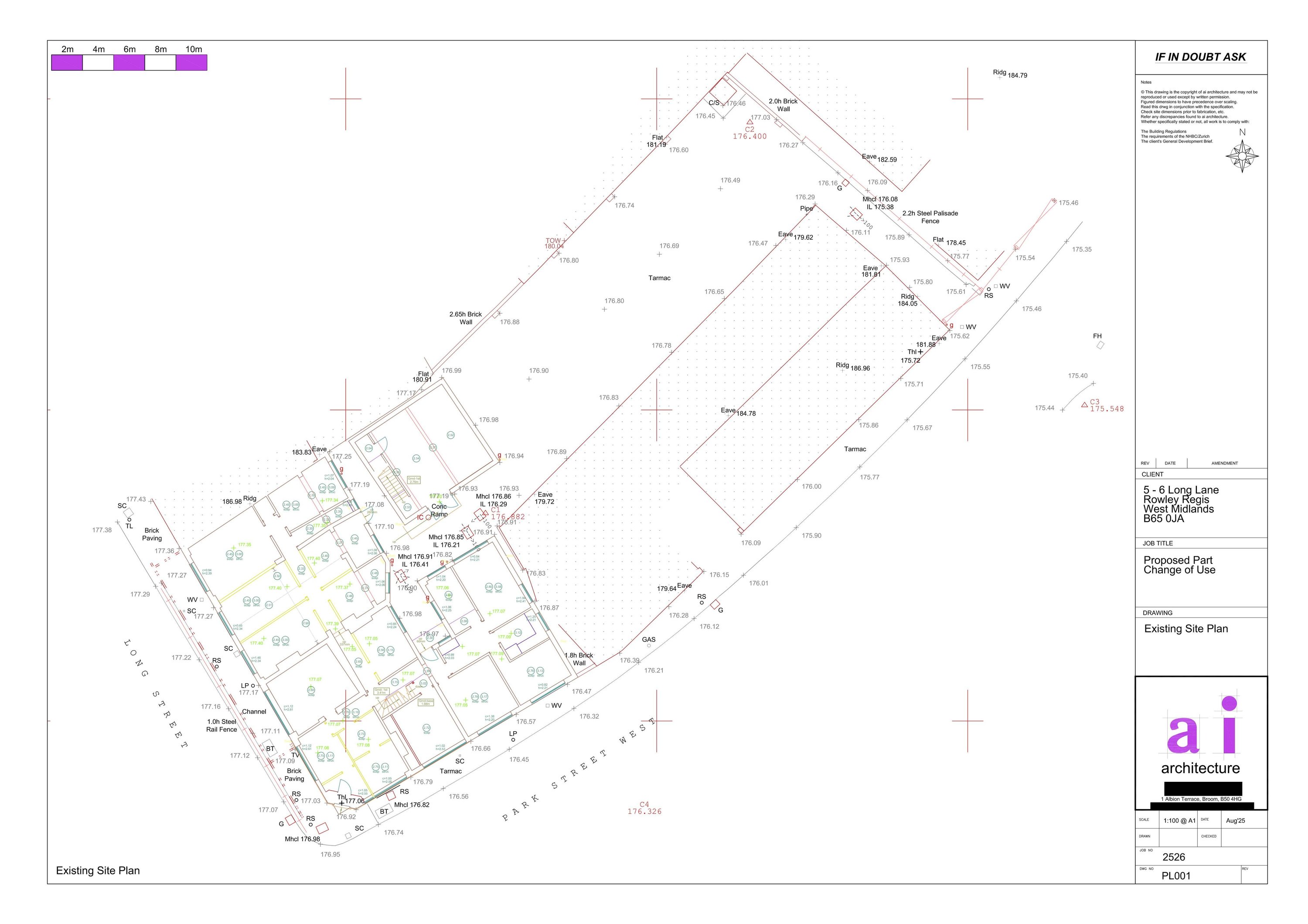
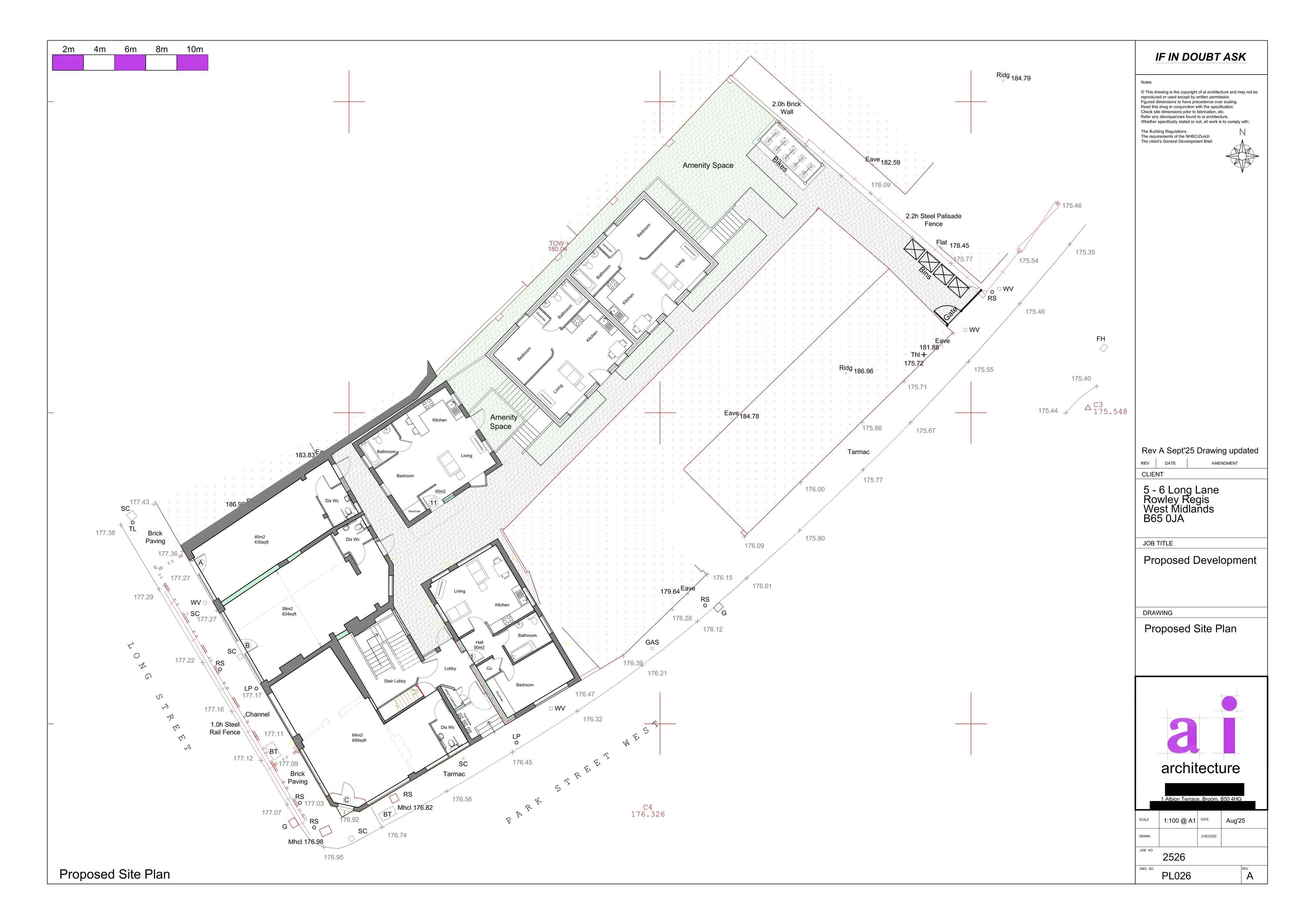
Two-storey detached rear apartment block proposed containing four self-contained apartments (permission in principle).

Full Proposal

Proposed two storey detached apartment block consisting of 4 No. self-contained apartments to rear (permission in principle)

Documents

CIL ADDITIONAL INFORMATION REQUIREMENT FORM
Other
Not archived · Council Link
DESIGN & ACCESS STATEMENT
Other
Not archived · Council Link
Drawing
Archived · Council Link
LOCATION PLAN
OS Extract
Not archived · Council Link
OFFICER DECISION NOTES
Officer Notes
Not archived · Council Link
PERMISSION IN PRINCIPLE APPLICATION FOR PLANNING PERMISSION
Application Form
Not archived · Council Link
PROPOSED ELEVATIONS
Drawing
Not archived · Council Link
Drawing
Archived · Council Link
Drawing
Archived · Council Link
PUBLIC HEALTH - AIR POLLUTION & NOISE COMMENTS
Consultee Comment
Not archived · Council Link
PUBLIC HEALTH - AIR QUALITY COMMENTS
Consultee Comment
Not archived · Council Link
PUBLIC HEALTH - CONTAMINATED LAND COMMENTS
Consultee Comment
Not archived · Council Link
REFUSE PERMISSION
Decision
Not archived · Council Link
SITE NOTICE PHOTO
Photo
Not archived · Council Link
WEST ELEVATION - SWIFT BRICK PLACEMENT
Drawing
Not archived · Council Link

Take Action

Make your voice heard. Authorities need to hear from people who support new homes.

✉️ Write Email in Support View on Council Portal