← Back to Sandwell Council

Status

Decided
Received
25 Sep 2025
New dwellings
n/a

Summary

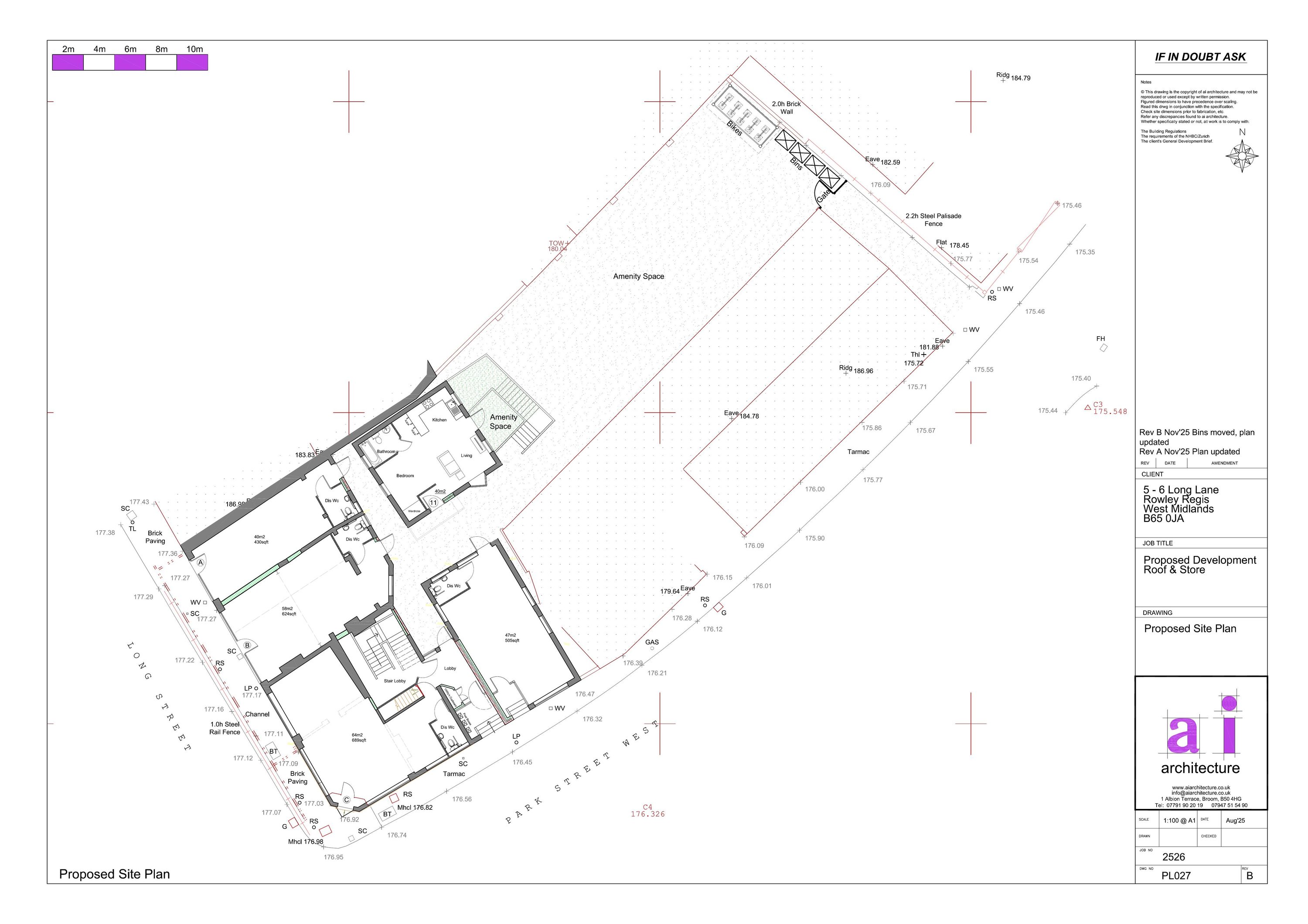
Roof extension and conversion works to create six self-contained studio apartments with external works.

Full Proposal

Proposed roof extension and raising of roof height creating 4 No. self-contained studio apartments and conversion of existing two storey storeroom to rear with fenestration alterations creating an additional 2 No. self-contained studio apartments with ground works and external steps to first floor.

Documents

AMENDED PROPOSED FRONT-REAR ELEVATIONS PLAN
Revised Drawing
Not archived · Council Link
AMENDED PROPOSED ROOF PLAN
Revised Drawing
Not archived · Council Link
AMENDED PROPOSED SIDE ELEVATIONS PLAN
Revised Drawing
Not archived · Council Link
Revised Drawing
Archived · Council Link
CIL - ADDITIONAL INFORMATION REQUIREMENT FORM
Correspondence
Not archived · Council Link
DESIGN AND ACCESS STATEMENT
Other
Not archived · Council Link
EXISTING FRONT/REAR ELEVATIONS AND SECTION PLAN
Drawing
Not archived · Council Link
EXISTING ROOF PLAN
Drawing
Not archived · Council Link
EXISTING SIDE ELEVATIONS PLAN
Drawing
Not archived · Council Link
Drawing
Archived · Council Link
EXISTING STORE ELEVATIONS PLAN
Drawing
Not archived · Council Link
EXISTING STORE GROUND/FIRST FLOOR AND ELEVATIONS PLAN
Drawing
Not archived · Council Link
FULL APPLICATION FOR PLANNING PERMISSION
Application Form
Not archived · Council Link
GRANT PERMISSION SUBJECT TO CONDITIONS
Decision
Not archived · Council Link
LOCATION PLAN
OS Extract
Not archived · Council Link
PLANNING POLICY COMMENTS
Consultee Comment
Not archived · Council Link
PRIVATE SECTOR HOUSING COMMENTS
Consultee Comment
Not archived · Council Link
PROPOSED SECOND FLOOR PLAN
Drawing
Not archived · Council Link
PROPOSED STORE ELEVATIONS/GROUND LEVELS
Drawing
Not archived · Council Link
PROPOSED STORE GROUND/FIRST FLOOR AND ELEVATIONS PLAN
Drawing
Not archived · Council Link
PUBLIC HEALTH - AIR POLLUTION & NOISE COMMENTS
Consultee Comment
Not archived · Council Link
PUBLIC HEALTH - AIR QUALITY COMMENTS
Consultee Comment
Not archived · Council Link
PUBLIC HEALTH - CONTAMINATED LAND COMMENTS
Consultee Comment
Not archived · Council Link
OS Extract
Archived · Council Link
SUPERSEDED PROPOSED FRONT/REAR ELEVATIONS PLAN
Drawing
Not archived · Council Link
SUPERSEDED PROPOSED ROOF PLAN
Drawing
Not archived · Council Link
SUPERSEDED PROPOSED SIDE ELEVATIONS PLAN
Drawing
Not archived · Council Link
Revised Drawing
Archived · Council Link

Take Action

Make your voice heard. Authorities need to hear from people who support new homes.

✉️ Write Email in Support View on Council Portal