← Back to Sandwell Council

Status

Awaiting decision
Received
19 Nov 2025
New dwellings
n/a

Full Proposal

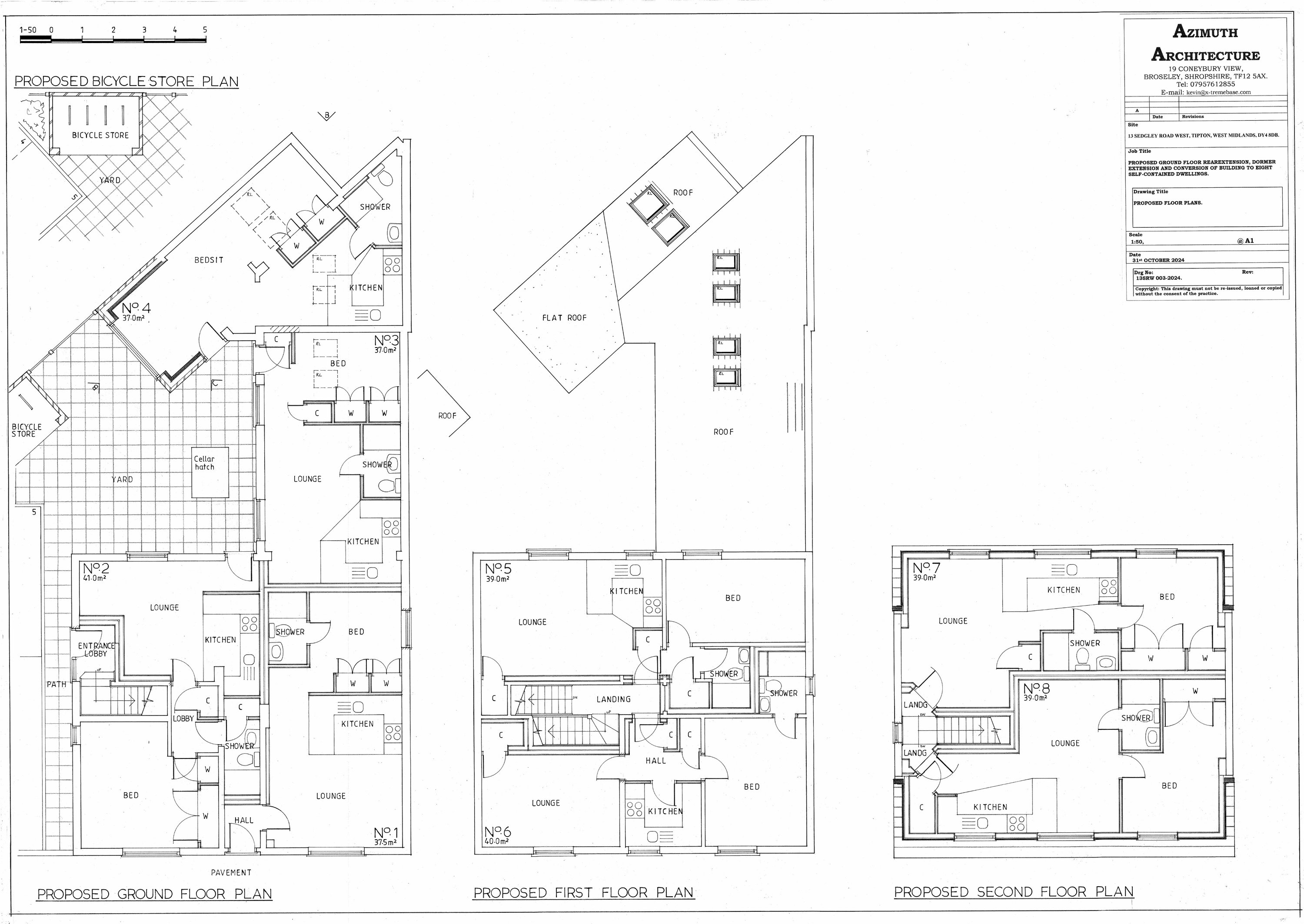
Proposed single storey rear extension, loft conversion with front and rear dormers and change of use of restaurant to form x 8 self-contained flats, boundary fencing and associated works.

Documents

ADDITIONAL BNG INFORMATION
Report
Not archived · Council Link
AGREEMENT WITH DESCRIPTION OF DEVELOPMENT
Correspondence
Not archived · Council Link
BNG COMMENTS
Consultee Comment
Not archived · Council Link
CANAL & RIVER TRUST COMMENTS
Consultee Comment
Not archived · Council Link
CHANGE OF USE APPLICATION FOR PLANNING PERMISSION
Application Form
Not archived · Council Link
CIL ADDITIONAL INFORMATION REQUIREMENT FORM
Other
Not archived · Council Link
COAL MINING RISK ASSESSMENT
Report
Not archived · Council Link
EXISTING ELEVATIONS
Drawing
Not archived · Council Link
EXISTING FLOOR PLANS
Drawing
Not archived · Council Link
FINAL HIGHWAYS COMMENTS
Consultee Comment
Not archived · Council Link
HIGHWAY COMMENTS
Other
Not archived · Council Link
LOCATION PLAN
OS Extract
Not archived · Council Link
PLANNING STATEMENT
Other
Not archived · Council Link
PROPOSED ELEVATIONS
Drawing
Not archived · Council Link
Drawing
Archived · Council Link
PUBLIC HEALTH - AIR POLLUTION & NOISE COMMENTS
Consultee Comment
Not archived · Council Link
PUBLIC HEALTH - AIR QUALITY COMMENTS
Consultee Comment
Not archived · Council Link
PUBLIC HEALTH - AIR QUALITY COMMENTS
Consultee Comment
Not archived · Council Link
THE COAL AUTHORITY COMMENTS
Consultee Comment
Not archived · Council Link
WEST MIDLANDS POLICE COMMENTS
Consultee Comment
Not archived · Council Link

Take Action

Make your voice heard. Authorities need to hear from people who support new homes.

✉️ Write Email in Support View on Council Portal