← Back to Sandwell Council

Status

Awaiting decision
Received
01 Dec 2025
New dwellings
n/a

Full Proposal

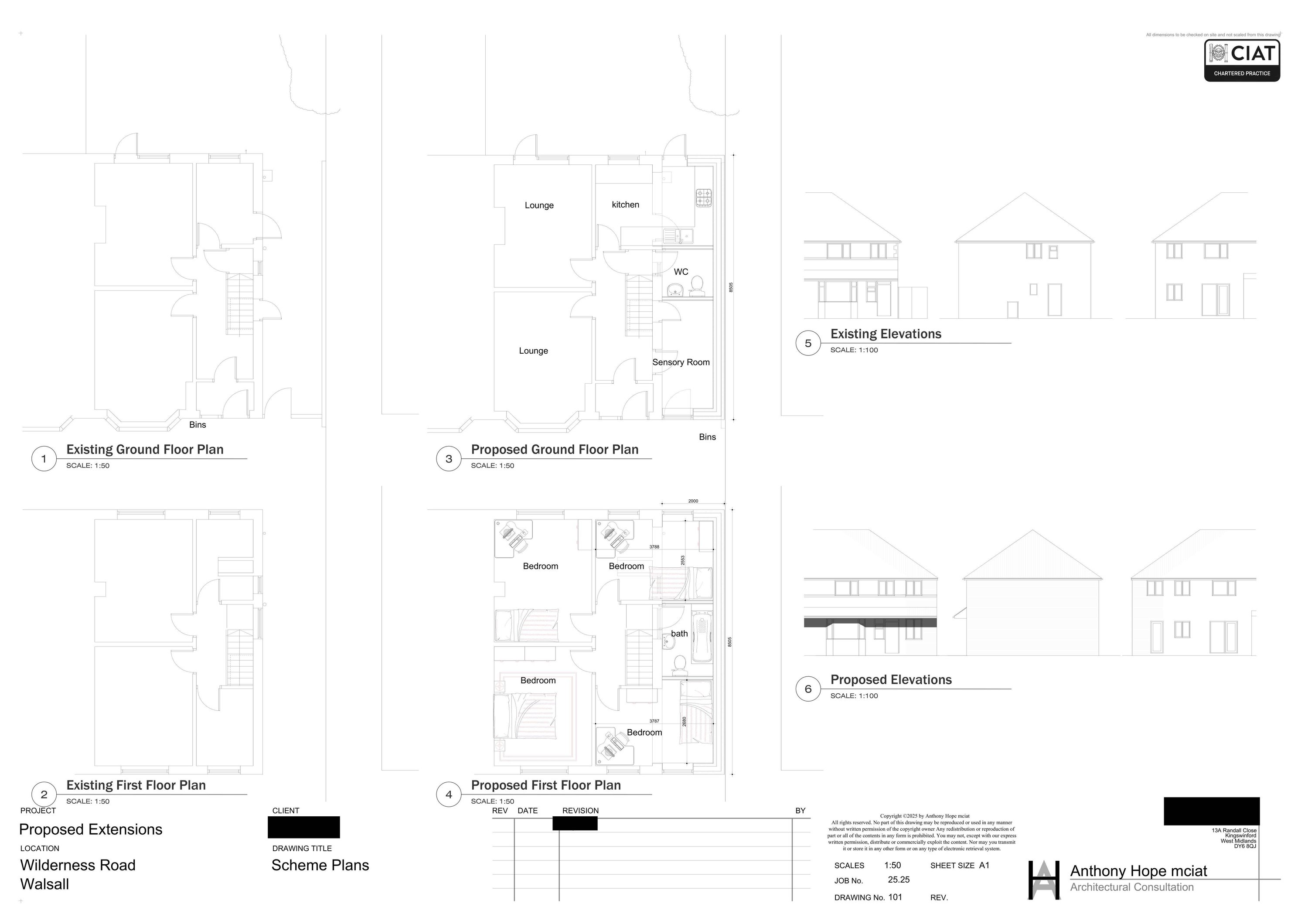
Change of use from house (Class C3), to residential home (Class C2) for up to three children, and two storey side extension to allow for extra bedroom, larger kitchen, downstairs wc and a sensory room.

Documents

DESIGN & ACCESS STATEMENT
Other
Not archived · Council Link
FULL APPLICATION FOR PLANNING PERMISSION
Application Form
Not archived · Council Link
OS Extract
Archived · Council Link
OBJECTS
Objection Comment
Not archived · Council Link
OBJECTS
Objection Comment
Not archived · Council Link
PUBLIC HEALTH - NOISE & LIGHTING COMMENTS
Consultee Comment
Not archived · Council Link
STAFF ROTA
Report
Not archived · Council Link

Take Action

Make your voice heard. Authorities need to hear from people who support new homes.

✉️ Write Email in Support View on Council Portal