← Back to Scottish Borders Council

Status

Registered
Received
04 Dec 2025
New dwellings
n/a

Full Proposal

Extension to dwellinghouse

Documents

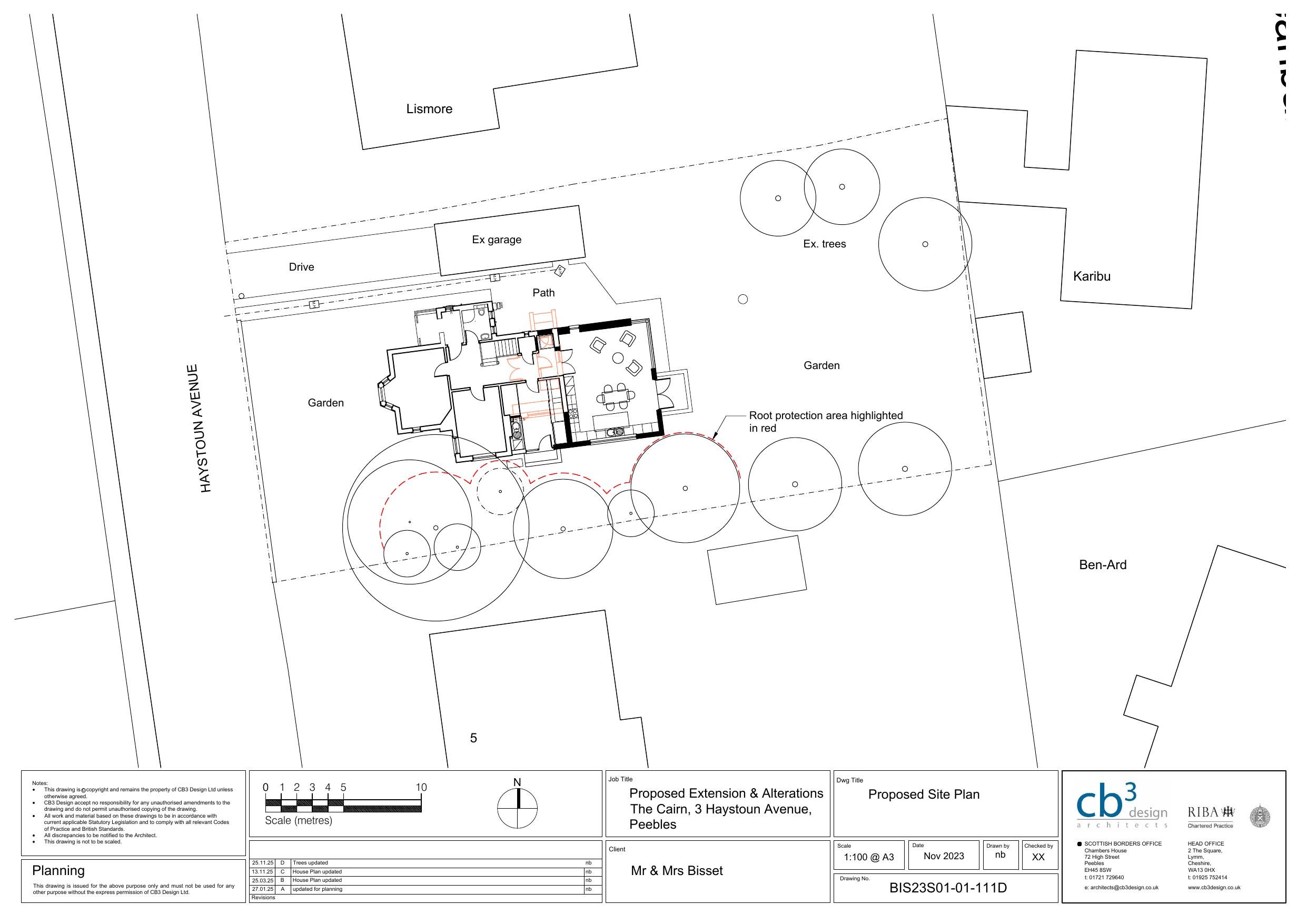
A LOCATION PLAN
Drawing
Not archived · Council Link
AILEEN BRADWELL
Support Comment
Not archived · Council Link
APPLICATION PDF
Application Form
Not archived · Council Link
APPLICATION SUMMARY PDF
Other
Not archived · Council Link
EXISTING ELEVATIONS
Drawing
Not archived · Council Link
EXISTING FLOOR PLANS
Drawing
Not archived · Council Link
Drawing
Archived · Council Link
NEIGHBOUR NOTIFICATION LIST
Neighbour Notification List
Not archived · Council Link
PROPOSED ELEVATIONS
Drawing - Amended
Not archived · Council Link
PROPOSED FIRST FLOOR PLAN
Drawing
Not archived · Council Link
PROPOSED GROUND FLOOR PLAN
Drawing
Not archived · Council Link
Drawing
Archived · Council Link

Take Action

Make your voice heard. Authorities need to hear from people who support new homes.

✉️ Write Email in Support View on Council Portal