← Back to Sefton Council

Status

Registered
Received
n/a
New dwellings
n/a

Full Proposal

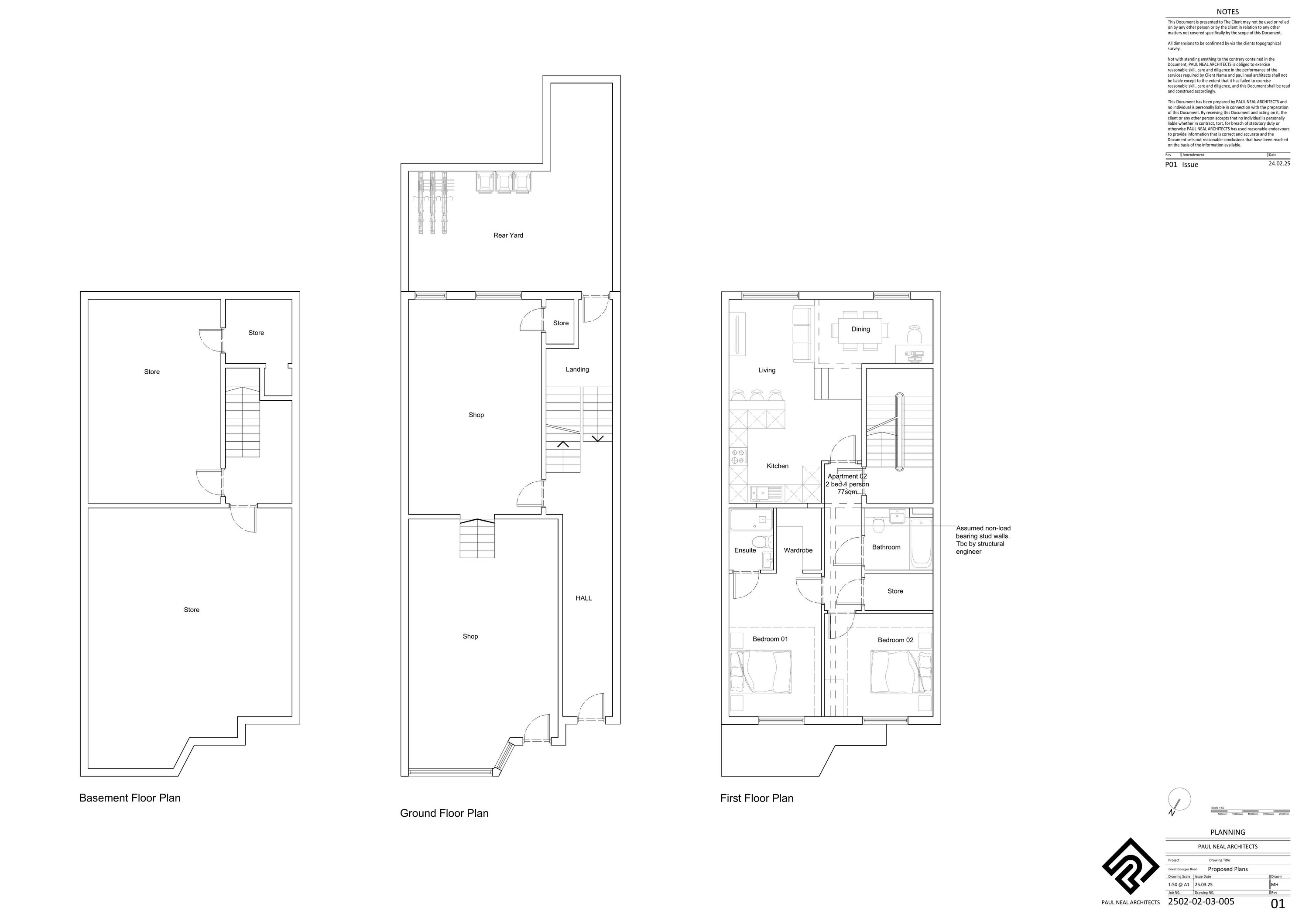
Proposed change of use of the first, second, and third floors from one self-contained flat (C3) and a 4 bed HMO (C4) to 3 self-contained apartments (C3), together with the installation of a rooflight to the rear.

Documents

Amended proposed front and rear elevations
Drawing
Not archived · Council Link
Amended proposed section and third floor plan
Drawing
Not archived · Council Link
Design and access statement
Report
Not archived · Council Link
Existing elevations (2502-02-05-001)
Drawing
Not archived · Council Link
Existing floor plans (2502-02-03-003)
Drawing
Not archived · Council Link
Existing second and third floor plan and east elevation (2502-02-03-004)
Drawing
Not archived · Council Link
Extension of time agreement
Correspondence
Not archived · Council Link
Planning statement
Report
Not archived · Council Link
Proposed second floor plan and east elevation
Drawing
Not archived · Council Link
Redacted application form
Application Form
Not archived · Council Link
Superseded proposed elevations (2502-02-05-002)
Drawing
Not archived · Council Link
Superseded proposed second and third floor plan and east elevation (2502-02-03-0
Drawing
Not archived · Council Link
Technical note - highway impact
Report
Not archived · Council Link

Take Action

Make your voice heard. Authorities need to hear from people who support new homes.

✉️ Write Email in Support View on Council Portal