← Back to Sefton Council

Status

Registered
Received
n/a
New dwellings
n/a

Full Proposal

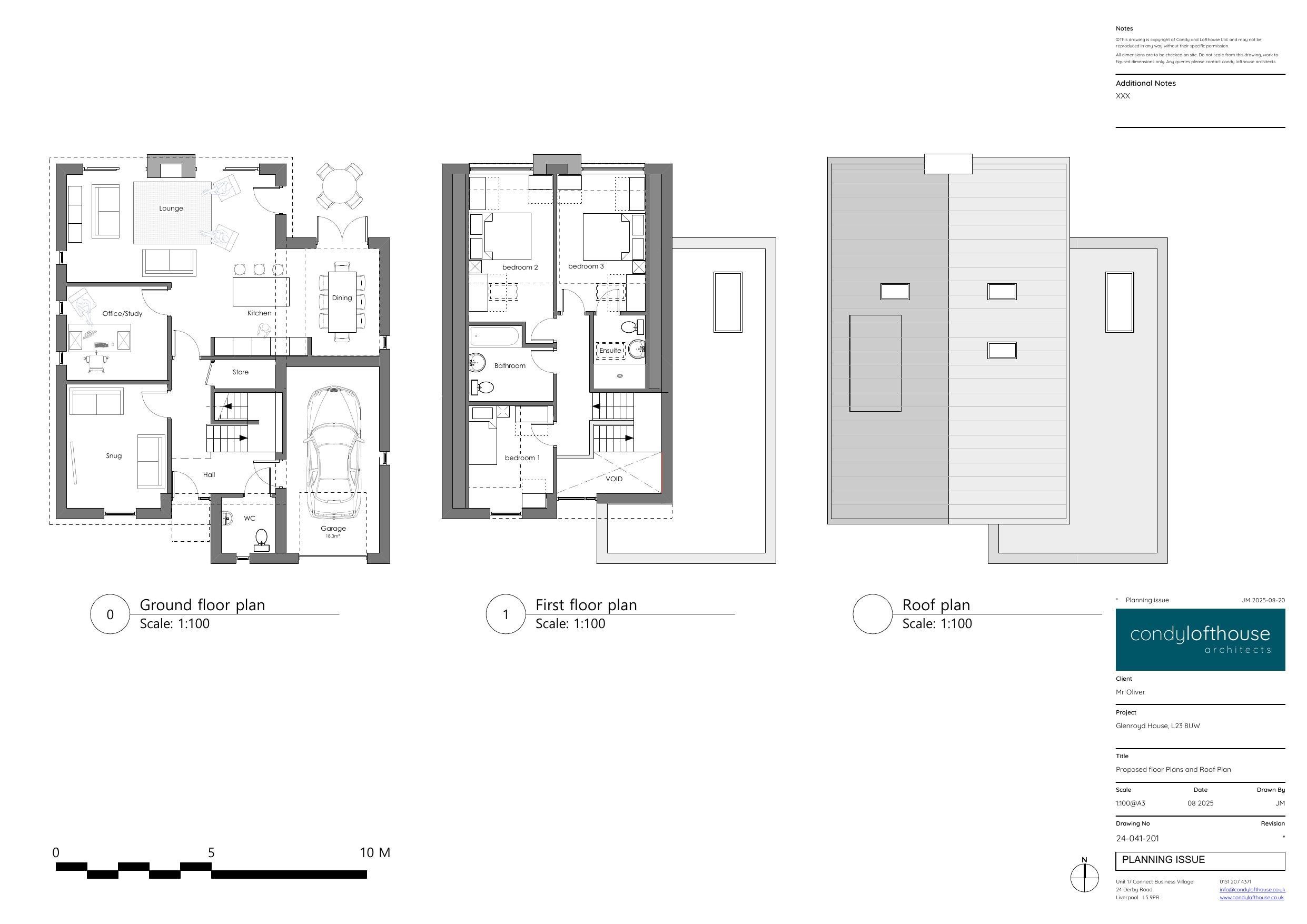
Erection of a two storey detached dwelling-house with construction of a vehicular access to College Road North

Documents

(pr-0185-24 v2) glenroyd house - v2 biodiversity net gain assessment
Report
Not archived · Council Link
(pr-0185-24 v2) statutory biodiversity net gain metric
Report
Not archived · Council Link
24-041 design and access statement
Report
Not archived · Council Link
24-041-103 - shadow analysis
Drawing
Not archived · Council Link
24-041-104 - 3d modelling
Drawing
Not archived · Council Link
24-041-301 existing street scene elevation
Drawing
Not archived · Council Link
Amended proposed elevations
Drawing
Not archived · Council Link
Amended proposed street scene elevation
Drawing
Not archived · Council Link
Applicationformredacted
Application Form
Not archived · Council Link
Arboricultural impact assessment and method statement
Report
Not archived · Council Link
Bng metrics
Report
Not archived · Council Link
Eot agreement
Correspondence
Not archived · Council Link
Extension of time agreement
Correspondence
Not archived · Council Link
Pr-0185-24 glenroyd house - pea and baseline bng
Report
Not archived · Council Link
Proposed materials sheet
Drawing
Not archived · Council Link
Superseded proposed elevations
Drawing
Not archived · Council Link
Superseded proposed street scene elevation
Drawing
Not archived · Council Link

Take Action

Make your voice heard. Authorities need to hear from people who support new homes.

✉️ Write Email in Support View on Council Portal