← Back to Sefton Council

Status

Registered
Received
n/a
New dwellings
n/a

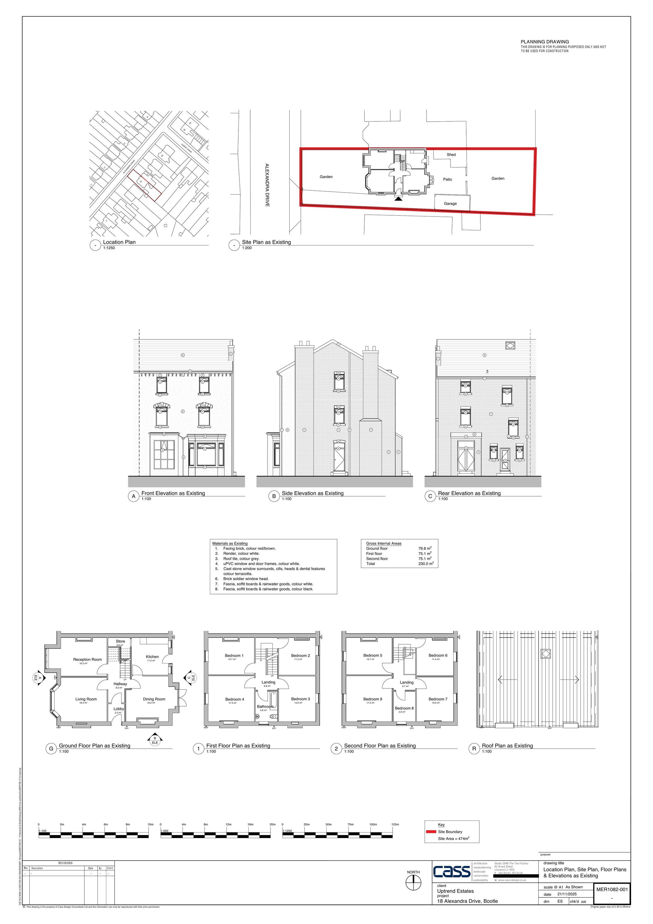
Full Proposal

Conversion of one dwelling into 6 self-contained studio flats with associated external works

Documents

Applicationformredacted
Application Form
Not archived · Council Link
Consultee comment - flooding & drainage
Consultee Comment
Not archived · Council Link
Consultee comment - highways
Consultee Comment
Not archived · Council Link
Consultee comment - local plans
Consultee Comment
Not archived · Council Link
Consultee comment - meas
Consultee Comment
Not archived · Council Link
Planning statement
Report
Not archived · Council Link
The_small_sites_metric alexanra drive (no macros)
Report
Not archived · Council Link

Take Action

Make your voice heard. Authorities need to hear from people who support new homes.

✉️ Write Email in Support View on Council Portal