← Back to Sefton Council

Status

Registered
Received
n/a
New dwellings
n/a

Full Proposal

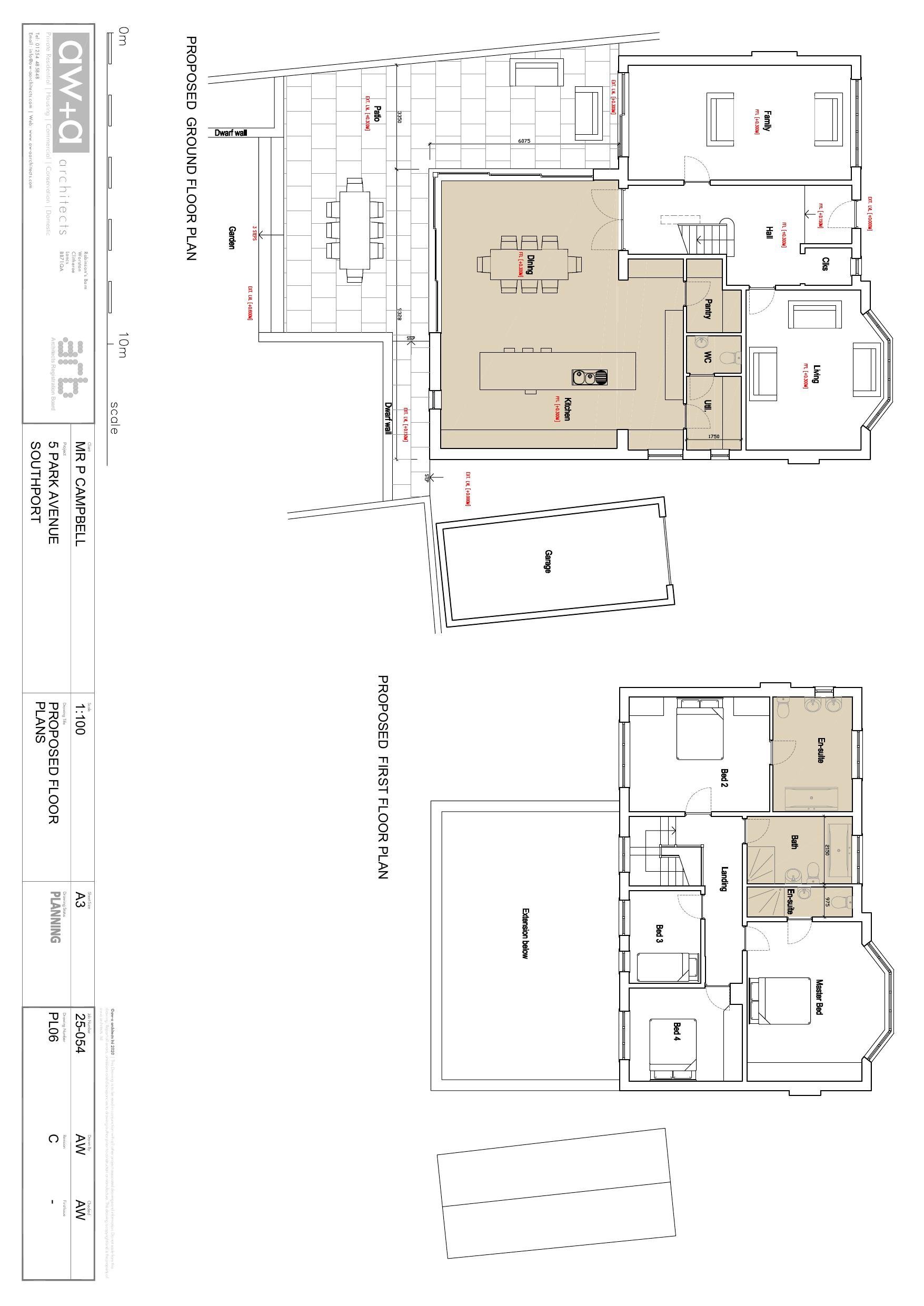
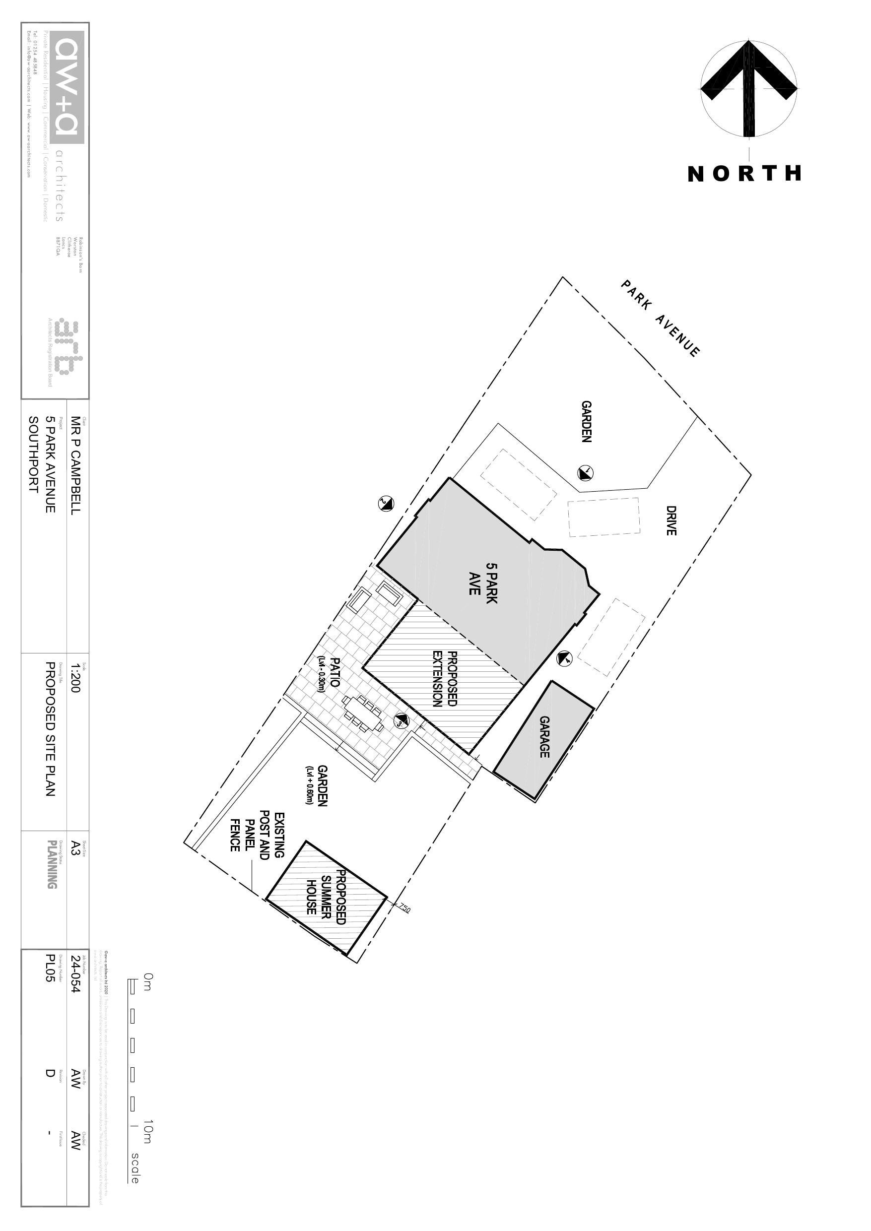
Proposed alterations/first floor extension to the front elevation, single storey extension to the rear elevation and detached summerhouse within garden

Documents

Applicationformredacted
Application Form
Not archived · Council Link
Existing elevations (25-054 pl04_rb)
Drawing
Not archived · Council Link
Existing floor plans (25-054 pl03_ra)
Drawing
Not archived · Council Link
Location plan (25-054 pl01_ra)
Drawing
Not archived · Council Link
Proposed elevations (25-054 pl07_rf)
Drawing
Not archived · Council Link
Proposed plan and elevations - summerhouse (25-054 pl08_rb)
Drawing
Not archived · Council Link

Take Action

Make your voice heard. Authorities need to hear from people who support new homes.

✉️ Write Email in Support View on Council Portal