← Back to Sevenoaks District Council

Status

Refused
Received
20 Dec 2024
New dwellings
n/a

Summary

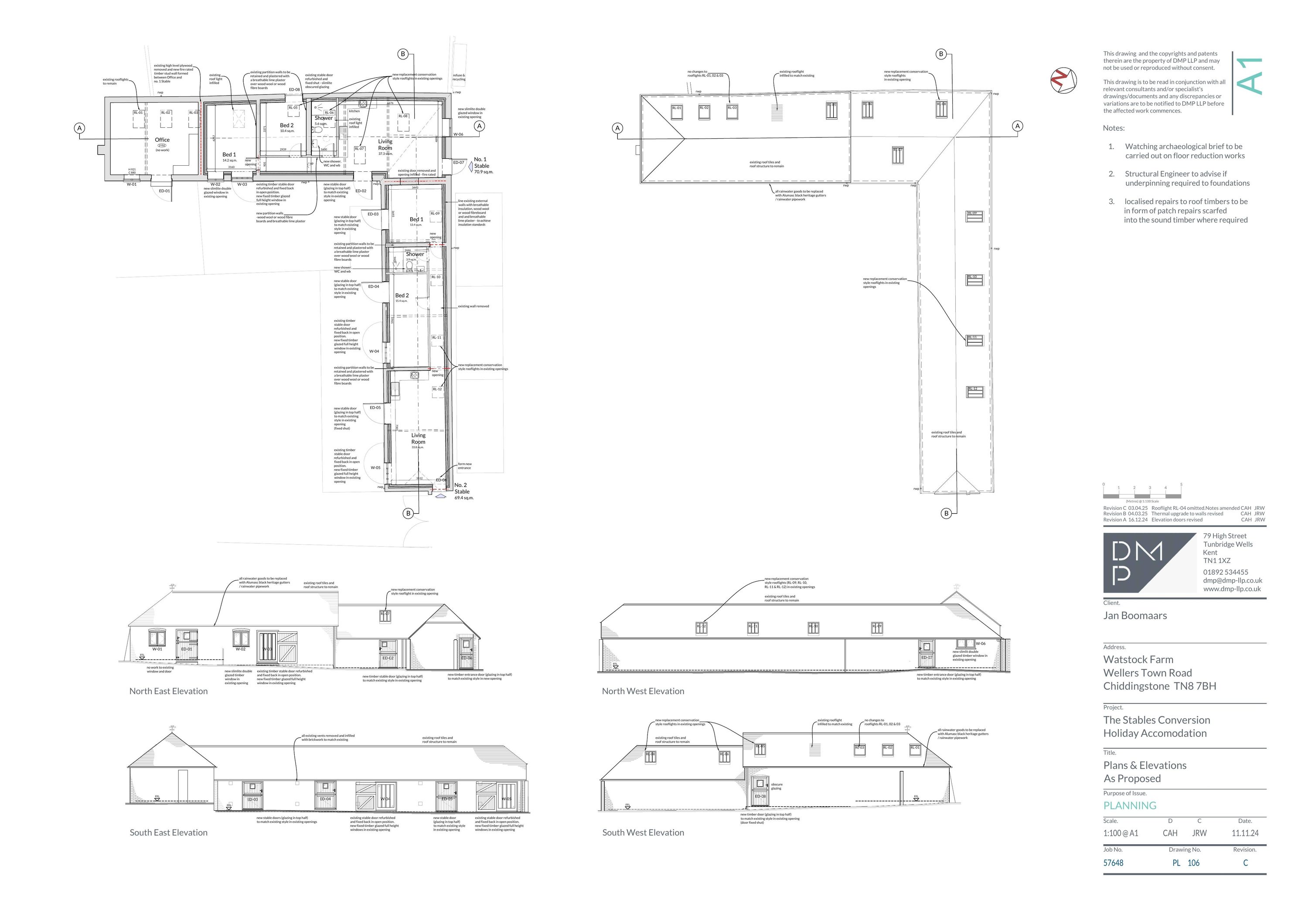
Convert part of existing stables into two dwellings with parking, fenestration changes and landscaping.

Full Proposal

Conversion of part of the existing stables into two dwellings. Parking. Alterations to fenestration. Internal alterations. Landscaping and raised beds. Fencing.

Documents

APPLICATION FORM - WITHOUT PERSONAL DATA
Application Form
Not archived · Council Link
DESIGN AND ACCESS STATEMENT
Design And Access Statement
Not archived · Council Link
EMAIL CORRESPONDENCE WITH AGENT
Application Details
Not archived · Council Link
EXISTING BLOCK PLAN
Drawing
Not archived · Council Link
EXISTING PLANS & ELEVATIONS
Drawing
Not archived · Council Link
HERITAGE STATEMENT
Application Details
Not archived · Council Link
OFFICER REPORT
Decision
Not archived · Council Link
PROPOSED AMENITY SPACE BOUNDARY FENCE AND LANDSCAPING
Drawing - Amended
Not archived · Council Link
Drawing - Amended
Archived · Council Link
PROPOSED SECTION A-A AND B-B
Drawing - Amended
Not archived · Council Link
Drawing
Archived · Council Link
PROPOSED THERMAL UPGRADES
Drawing - Amended
Not archived · Council Link
PROPOSED WINDOWS AND DOORS
Drawing - Amended
Not archived · Council Link
REFUSE - FULL PERMISSION
Decision
Not archived · Council Link
Drawing
Archived · Council Link
STRUCTURAL SURVEY
Application Details
Not archived · Council Link
TOPOGRAPHICAL SURVEY
Drawing
Not archived · Council Link

Take Action

Make your voice heard. Authorities need to hear from people who support new homes.

✉️ Write Email in Support View on Council Portal