← Back to Sevenoaks District Council

Status

Awaiting decision
Received
11 Apr 2025
New dwellings
n/a

Summary

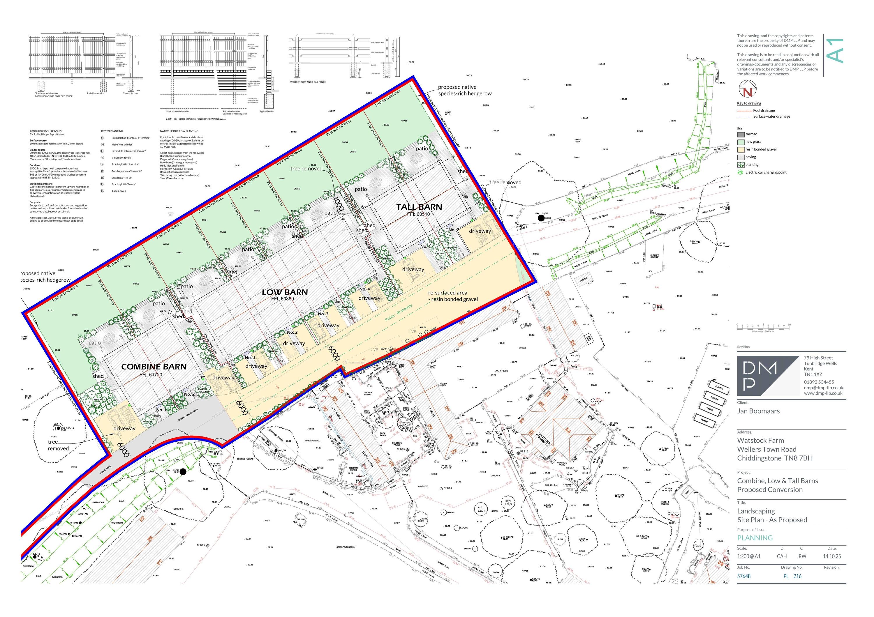
Conversion and partial alteration of three barns into eight self-contained dwellings with parking.

Full Proposal

Conversion and part alteration of three existing barns to create eight self-contained dwellings with associated parking, private garden and landscaping, air source heat pumps and bin stores. Diversion of public path and bridle way.

Documents

AIR QUALITY ASSESSMENT
Application Details
Not archived · Council Link
APPLICATION - CONSULTEES STATUS
Consultations - Request
Not archived · Council Link
APPLICATION - CONSULTEES STATUS
Consultations - Request
Not archived · Council Link
APPLICATION - CONSULTEES STATUS
Consultations - Request
Not archived · Council Link
APPLICATION FORM - WITHOUT PERSONAL DATA
Application Form
Not archived · Council Link
ASBESTOS DEMOLITION SURVEY
Application Details
Not archived · Council Link
ASBESTOS REMOVAL QUOTE
Application Details
Not archived · Council Link
ASHP TECHNICAL DETAILS
Application Details
Not archived · Council Link
BA-BB BAX BIODISC IPS SALES DRAWING
Drawing
Not archived · Council Link
BAT SURVEY
Application Details
Not archived · Council Link
BH - BL BIODISC GENERAL ARRANGEMENT
Drawing
Not archived · Council Link
BIODISC IPS DETAILS
Application Details
Not archived · Council Link
BIODIVERSITY GAIN PLAN
Application Details
Not archived · Council Link
BIODIVERSITY GAIN PLAN
BNG
Not archived · Council Link
CHIDDINGSTONE PARISH COUNCIL
Consultations - Response
Not archived · Council Link
COMMERCIAL STP SERVICE FLYER
Application Details
Not archived · Council Link
CONTAMINATED LAND REPORT
Application Details
Not archived · Council Link
DESIGN, ACCESS & HERITAGE STATEMENT
Application Details
Not archived · Council Link
ENVIRONMENT AGENCY
Consultations - Response
Not archived · Council Link
ENVIRONMENT AGENCY
Consultations - Response
Not archived · Council Link
ENVIRONMENT AGENCY COMMENTS
Consultations - Response
Not archived · Council Link
ENVIRONMENTAL HEALTH
Consultations - Response
Not archived · Council Link
ENVIRONMENTAL HEALTH
Consultations - Response
Not archived · Council Link
EV CHARGER
Application Details
Not archived · Council Link
EXISTING & PROPOSED HARD STANDING
Drawing
Not archived · Council Link
EXISTING PLANS & ELEVATIONS
Drawing
Not archived · Council Link
EXISTING PLANS & ELEVATIONS - LOW BARN
Drawing
Not archived · Council Link
EXISTING PLANS & ELEVATIONS - TALL BARN
Drawing
Not archived · Council Link
Drawing
Archived · Council Link
FLOOD RISK ASSESSMENT
Application Details
Not archived · Council Link
FORESTRY COMMISSION
Consultations - Response
Not archived · Council Link
FORESTRY COMMISSION
Consultations - Response
Not archived · Council Link
FOUL DRAINAGE STATEMENT
Application Details
Not archived · Council Link
GCN MITIGATION STRATEGY
Application Details
Not archived · Council Link
HABITAT MANAGEMENT & MONITORING PLAN
Application Details
Not archived · Council Link
HIGHWAYS APPRAISAL
Application Details
Not archived · Council Link
KCC ARCHAEOLOGY
Consultations - Response
Not archived · Council Link
KCC ECOLOGICAL ADVICE SERVICE
Consultations - Response
Not archived · Council Link
KCC ECOLOGY
Consultations - Response
Not archived · Council Link
KCC HIGHWAYS & TRANSPORTATION
Consultations - Response
Not archived · Council Link
KCC HIGHWAYS & TRANSPORTATION
Consultations - Response
Not archived · Council Link
KCC PUBLIC RIGHTS OF WAY (1 OF 3)
Consultations - Response
Not archived · Council Link
KCC PUBLIC RIGHTS OF WAY (2 OF 3)
Consultations - Response
Not archived · Council Link
KCC PUBLIC RIGHTS OF WAY (3 OF 3)
Consultations - Response
Not archived · Council Link
LEAD LOCAL FLOOD AUTHORITY
Consultations - Response
Not archived · Council Link
LEAD LOCAL FLOOD AUTHORITY
Consultations - Response
Not archived · Council Link
LOCAL LEAD FLOOD AUTHORITY
Consultations - Response
Not archived · Council Link
LOCATION PLAN
Drawing
Not archived · Council Link
NOISE IMPACT ASSESSMENT
Application Details
Not archived · Council Link
PARISH COUNCIL CONSULTATION LETTER
Consultations - Request
Not archived · Council Link
PRELIMINARY ECOLOGICAL APPRAISAL
Application Details
Not archived · Council Link
PROPOSED COMBINE BARN
Drawing
Not archived · Council Link
PROPOSED DRAINAGE PLAN
Drawing
Not archived · Council Link
PROPOSED DRIVEWAY SIGNAGE
Drawing
Not archived · Council Link
PROPOSED LOW BARN
Drawing
Not archived · Council Link
PROPOSED NW & SE ELEVATIONS & SECTIONS
Superseded Documents
Not archived · Council Link
PROPOSED NW 7 SE ELEVATIONS 7 SECTIONS
Drawing
Not archived · Council Link
Superseded Documents
Archived · Council Link
PROPOSED TALL BARN
Drawing
Not archived · Council Link
PUBLIC COMMENT
Public Consultation - Response
Not archived · Council Link
PUBLIC COMMENT
Public Consultation - Response
Not archived · Council Link
PUBLIC COMMENT
Public Consultation - Response
Not archived · Council Link
PUBLIC COMMENT
Public Consultation - Response
Not archived · Council Link
PUBLIC COMMENT
Public Consultation - Response
Not archived · Council Link
PUBLIC COMMENT
Public Consultation - Response
Not archived · Council Link
PUBLIC COMMENT
Public Consultation - Response
Not archived · Council Link
PUBLIC COMMENT
Public Consultation - Response
Not archived · Council Link
PUBLIC COMMENT
Public Consultation - Response
Not archived · Council Link
PUBLIC COMMENT
Public Consultation - Response
Not archived · Council Link
PUBLIC COMMENT
Public Consultation - Response
Not archived · Council Link
PUBLIC PATH DIVERSION ORDER
Application Details
Not archived · Council Link
RESPONSE TO CONSULTEE COMMENTS
Application Details
Not archived · Council Link
SALES DRAWING - KIOSKS
Drawing
Not archived · Council Link
SDC ENVIRONMENTAL PROTECTION COMMENTS
Consultations - Response
Not archived · Council Link
SDC HOUSING POLICY
Consultations - Response
Not archived · Council Link
SDC HOUSING POLICY
Consultations - Response
Not archived · Council Link
SEWAGE TREATMENT PLANT BROCHURE
Application Details
Not archived · Council Link
Drawing - Amended
Archived · Council Link
SOAKAWAY CALCULATION
Application Details
Not archived · Council Link
SOUTHERN WATER
Consultations - Response
Not archived · Council Link
SOUTHERN WATER (1 OF 2)
Consultations - Response
Not archived · Council Link
SOUTHERN WATER (1 OF 2)
Consultations - Response
Not archived · Council Link
SOUTHERN WATER (2 OF 2)
Consultations - Response
Not archived · Council Link
SOUTHERN WATER (2 OF 2)
Consultations - Response
Not archived · Council Link
STATUTORY BIODIVERSITY METRIC
BNG
Not archived · Council Link
STRUCTURAL REPORT
Application Details
Not archived · Council Link
SUDS COMPLIANCE STATEMENT
Application Details
Not archived · Council Link
TEGULA PRIORA 160X160X60 PALLETISED DATASHEET
Application Details
Not archived · Council Link
TOPOGRAPHICAL SURVEY
Drawing
Not archived · Council Link
TREE OFFICER
Consultations - Response
Not archived · Council Link
TREE OFFICER
Consultations - Response
Not archived · Council Link
Ø490 MM DOWNSTREAM SAMPLE CHAMBER (PLASTIC)
Drawing
Not archived · Council Link

Take Action

Make your voice heard. Authorities need to hear from people who support new homes.

✉️ Write Email in Support View on Council Portal