← Back to Sevenoaks District Council
Summary
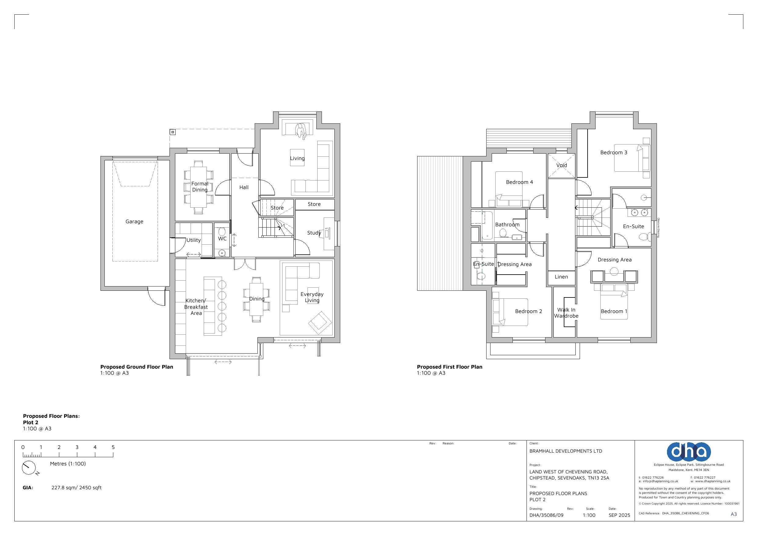
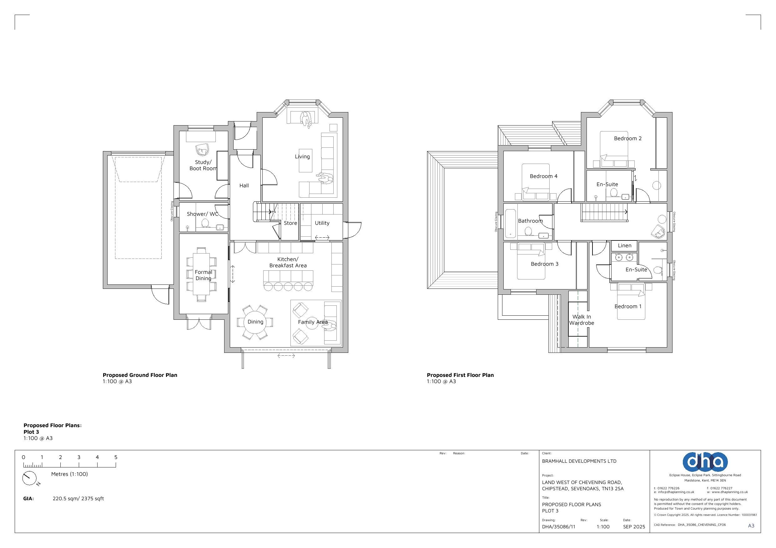
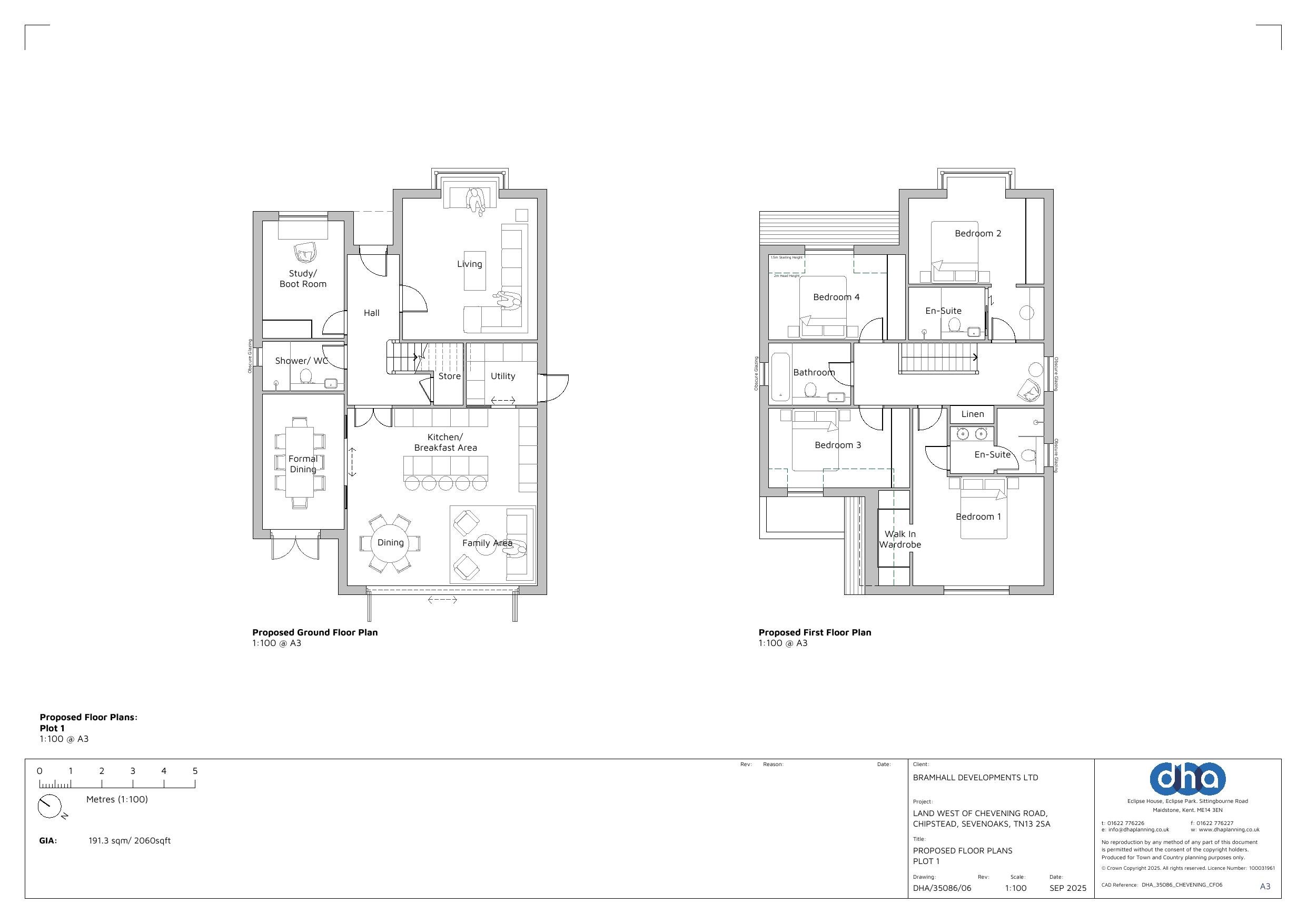
Erection of five dwellings with associated new access.
Full Proposal
Erection of five dwellings with associated new access.
Documents
AIR QUALITY ASSESSMENT
Application Details
APPLICATION - CONSULTEES STATUS
Consultations - Request
APPLICATION - CONSULTEES STATUS
Consultations - Request
APPLICATION - CONSULTEES STATUS
Consultations - Request
APPLICATION - CONSULTEES STATUS
Consultations - Request
APPLICATION - CONSULTEES STATUS
Consultations - Request
APPLICATION FORM - WITHOUT PERSONAL DATA
Application Form
ARBORICULTURAL IMPACT ASSESSMENT
Application Details
BIODIVERSITY NET GAIN FEASIBILITY ASSESSMENT
BNG
COMPARATIVE BLOCK PLANS
Drawing
DENSITY AND CHARACTER STATEMENT
Application Details
DESIGN AND ACCESS STATEMENT
Design And Access Statement
ENVIRONMENT AGENCY
Consultations - Response
ENVIRONMENT AGENCY
Consultations - Response
ENVIRONMENT AGENCY
Consultations - Response
ENVIRONMENT AGENCY
Consultations - Response
ENVIRONMENTAL HEALTH
Consultations - Response
ENVIRONMENTAL HEALTH
Consultations - Response
ENVIRONMENTAL STATEMENT
Application Details
ENVIRONMENTAL STATEMENT - MAPPING
Application Details
EXISTING SITE LAYOUT PLAN
Drawing
EXISTING SITE SECTIONS
Drawing
FLOOD RISK ASSESSMENT AND SUSTAINABLE DRAINAGE STRATEGY
Application Details
KCC ECOLOGICAL ADVICE SERVICE
Consultations - Response
KCC ECOLOGY
Consultations - Response
KCC FLOOD AND WATER MANAGEMENT
Consultations - Response
KCC HIGHWAYS & TRANSPORTATION
Consultations - Response
KCC HIGHWAYS & TRANSPORTATION
Consultations - Response
LEAD LOCAL FLOOD AUTHORITY
Consultations - Response
LEAD LOCAL FLOOD AUTHORITY
Consultations - Response
NOISE IMPACT ASSESSMENT
Application Details
PARISH COUNCIL CONSULTATION LETTER
Consultations - Request
PLANNING STATEMENT
Application Details
PRELIMINARY ECOLOGICAL APPRAISAL
Application Details
PROPOSED ACCESS ARRANGEMENT & VISIBILITY SPLAYS
Drawing
PROPOSED ELEVATIONS - PLOT 2
Drawing
PROPOSED ELEVATIONS - PLOT 3
Superseded Documents
PROPOSED ELEVATIONS - PLOT 4
Superseded Documents
PROPOSED ELEVATIONS -PLOT 1
Drawing
PROPOSED ELEVATIONS PLOT 3
Drawing - Amended
PROPOSED ELEVATIONS PLOT 4
Drawing - Amended
PROPOSED ELEVATIONS PLOT 5
Superseded Documents
PROPOSED ELEVATIONS PLOT 5
Drawing - Amended
PROPOSED ELEVATIONS PLOT 5 CAR BARN
Drawing - Amended
PROPOSED SITE LAYOUT PLAN
Drawing
PROPOSED SITE SECTIONS
Drawing
PUBLIC COMMENT
Public Consultation - Response
PUBLIC COMMENT
Public Consultation - Response
PUBLIC COMMENT
Public Consultation - Response
PUBLIC COMMENT
Public Consultation - Response
PUBLIC COMMENT
Public Consultation - Response
PUBLIC COMMENT (1 OF 3)
Public Consultation - Response
PUBLIC COMMENT (2 OF 3)
Public Consultation - Response
PUBLIC COMMENT (3 OF 3)
Public Consultation - Response
RESPONSE TO ENVIRONMENTAL HEALTH COMMENTS ON NOISE ASSESSMENT
Application Details
SDC TREE OFFICER COMMENTS
Consultations - Response
TRANSPORT STATEMENT
Application Details
TRANSPORT TECHNICAL NOTE
Application Details
TREE OFFICER
Consultations - Response
Take Action
Make your voice heard. Authorities need to hear from people who support new homes.