← Back to Sevenoaks District Council

Status

Awaiting decision
Received
07 Oct 2025
New dwellings
n/a

Full Proposal

Demolition of dwelling and extension to be replaced with new 4-bed house. New access, parking and the creation of associated hard and soft landscaping. New fences and gates. Alteration to fenestration of hall building. EV charger. Bin store.

Documents

APPLICATION - CONSULTEES STATUS
Consultations - Request
Not archived · Council Link
APPLICATION - CONSULTEES STATUS
Consultations - Request
Not archived · Council Link
APPLICATION FORM - WITHOUT PERSONAL DATA
Application Form
Not archived · Council Link
APPROVAL FOR TRO FROM PARISH COUNCIL
Application Details
Not archived · Council Link
APPROVAL FOR TRO FROM SDC PARKING TEAM
Application Details
Not archived · Council Link
BNG EXEMPTION STATEMENT
Application Details
Not archived · Council Link
CADENT GAS
Consultations - Response
Not archived · Council Link
CADET GAS
Consultations - Response
Not archived · Council Link
DESIGN AND ACCESS STATEMENT
Design And Access Statement
Not archived · Council Link
DESIGN STATEMENT
Design And Access Statement
Not archived · Council Link
EMAIL FROM AGENT RE PARKING
Application Details
Not archived · Council Link
ENVIRONMENTAL HEALTH
Consultations - Response
Not archived · Council Link
ENVIRONMENTAL HEALTH
Consultations - Response
Not archived · Council Link
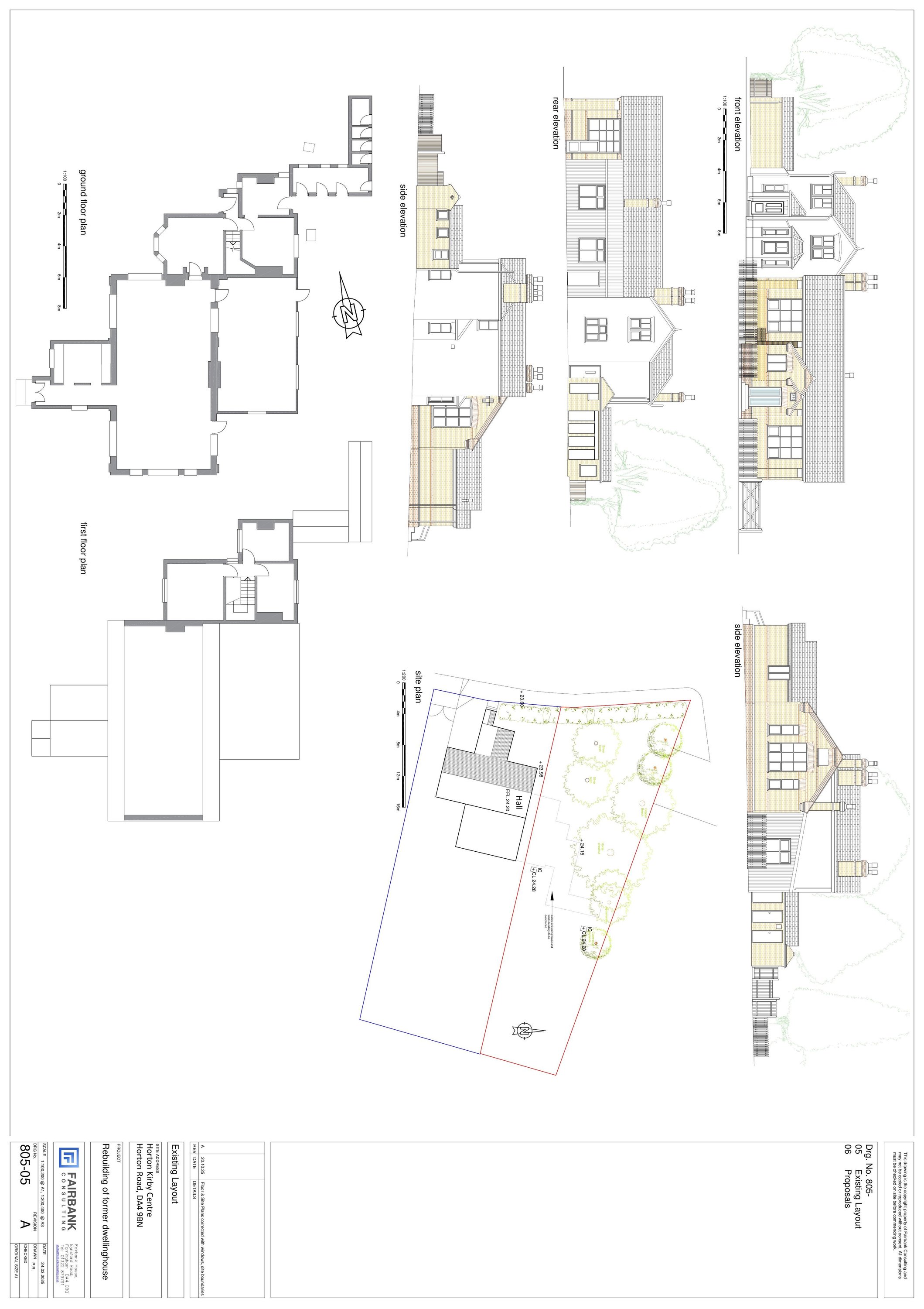
EXISTING PLANS & ELEVATIONS
Drawing
Not archived · Council Link
HORTON KIRBY & SOUTH DARENTH PARISH COUNCIL
Consultations - Response
Not archived · Council Link
KCC ARCHAEOLOGY
Consultations - Response
Not archived · Council Link
KCC CREDIT NUMBER
Application Details
Not archived · Council Link
KCC ECOLOGICAL ADVICE SERVICE
Consultations - Response
Not archived · Council Link
KCC HIGHWAYS AND TRANSPORTATION
Consultations - Response
Not archived · Council Link
KCC HIGHWAYS AND TRANSPORTATION
Consultations - Response
Not archived · Council Link
LINESEARCH BEFORE YOU DIG
Consultations - Response
Not archived · Council Link
LOCATION PLAN
Drawing
Not archived · Council Link
NATIONAL GRID COMMENTS
Consultations - Response
Not archived · Council Link
PARISH COUNCIL CONSULTATION LETTER
Consultations - Request
Not archived · Council Link
PRELIMINARY ECOLOGICAL APPRAISAL
Application Details
Not archived · Council Link
PROPOSED NEW HOUSE
Drawing - Amended
Not archived · Council Link
Superseded Documents
Archived · Council Link
SCOTIA GAS NETWORKS (1 OF 7)
Consultations - Response
Not archived · Council Link
SCOTIA GAS NETWORKS (2 OF 7)
Consultations - Response
Not archived · Council Link
SCOTIA GAS NETWORKS (3 OF 7)
Consultations - Response
Not archived · Council Link
SCOTIA GAS NETWORKS (4 OF 7)
Consultations - Response
Not archived · Council Link
SCOTIA GAS NETWORKS (5 OF 7)
Consultations - Response
Not archived · Council Link
SCOTIA GAS NETWORKS (6 OF 7)
Consultations - Response
Not archived · Council Link
SCOTIA GAS NETWORKS (7 OF 7)
Consultations - Response
Not archived · Council Link
THAMES WATER
Consultations - Response
Not archived · Council Link
UK POWER NETWORKS COMMENTS
Consultations - Response
Not archived · Council Link

Take Action

Make your voice heard. Authorities need to hear from people who support new homes.

✉️ Write Email in Support View on Council Portal