← Back to Sevenoaks District Council
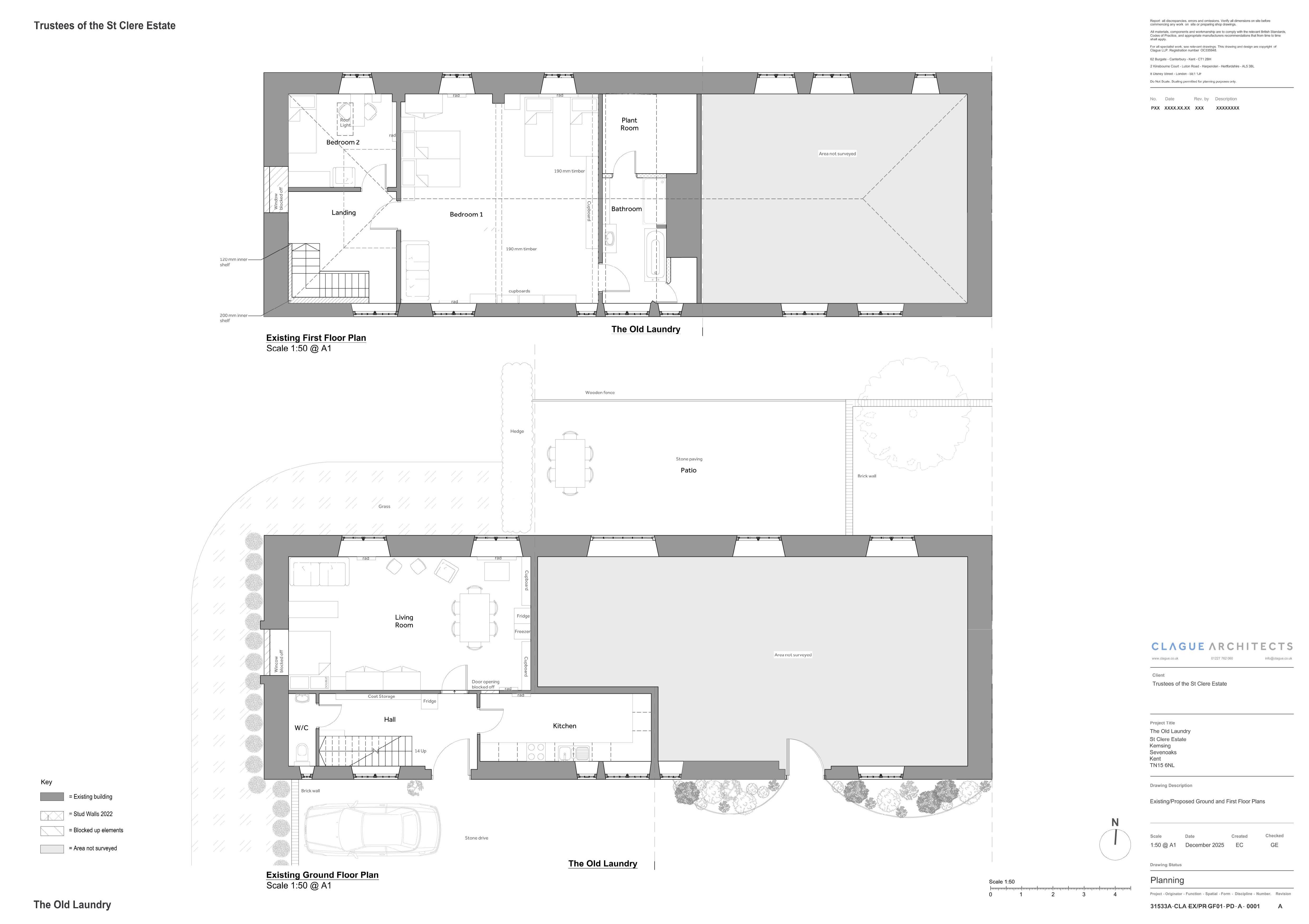
26/00042/LBCALT
Sevenoaks District Council · IDOX
Status
Awaiting decision
Received
Last month
New dwellings
n/a
Full Proposal
Change of use of the property to a dwelling
Documents
Take Action
Make your voice heard. Authorities need to hear from people who support new homes.