← Back to Sheffield City Council
25/02580/FUL
Sheffield City Council · IDOX
Status
Awaiting decision
Received
01 Sep 2025
New dwellings
n/a
Summary
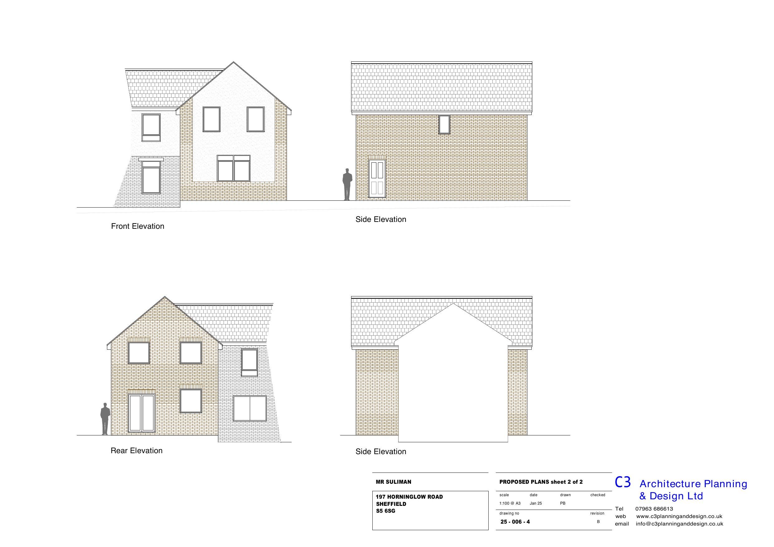
Construction of one self-build dwelling.
Full Proposal
Erection of a dwellinghouse (self build)
Documents
Application (Amended Drawings)
Archived
· Council Link
Application (Amended Drawings)
Archived
· Council Link
Take Action
Make your voice heard. Authorities need to hear from people who support new homes.