← Back to Sheffield City Council

Status

Awaiting decision
Received
07 Oct 2025
New dwellings
n/a

Full Proposal

Demolition of existing buildings including Plumbley Cottage and erection of new replacement dwellinghouse

Documents

Applicationformredacted
Application Form
Not archived · Council Link
Biodiversity net gain (bng) summary report
Ecology documentation
Not archived · Council Link
Bng metric
Ecology documentation
Not archived · Council Link
Coal mining risk assessment
Coal mining risk assessment
Not archived · Council Link
Correspondence - consent to wsi (archaeology) pre-commencement condition
Application Other
Not archived · Council Link
Ecological impact assessment
Ecology documentation
Not archived · Council Link
Existing and proposed site section
Application (Drawings)
Not archived · Council Link
Existing block plan
Application (Drawings)
Not archived · Council Link
Existing plans and elevations
Application (Drawings)
Not archived · Council Link
Form 1: cil additional information
CIL Documentation
Not archived · Council Link
Landscape and visual assessment addendum'
Landscaping details
Not archived · Council Link
Landscape strategy
Application (Drawings)
Not archived · Council Link
Mining remediation (the coal authority)
Consultee Comment
Not archived · Council Link
National grid
Consultee Comment
Not archived · Council Link
Newspaper advert published in the sheffield telegraph 06.11.25
Application Other
Not archived · Council Link
Planning statement
Planning statement
Not archived · Council Link
Previous proposed elevations and roof plan
Application (Drawings)
Not archived · Council Link
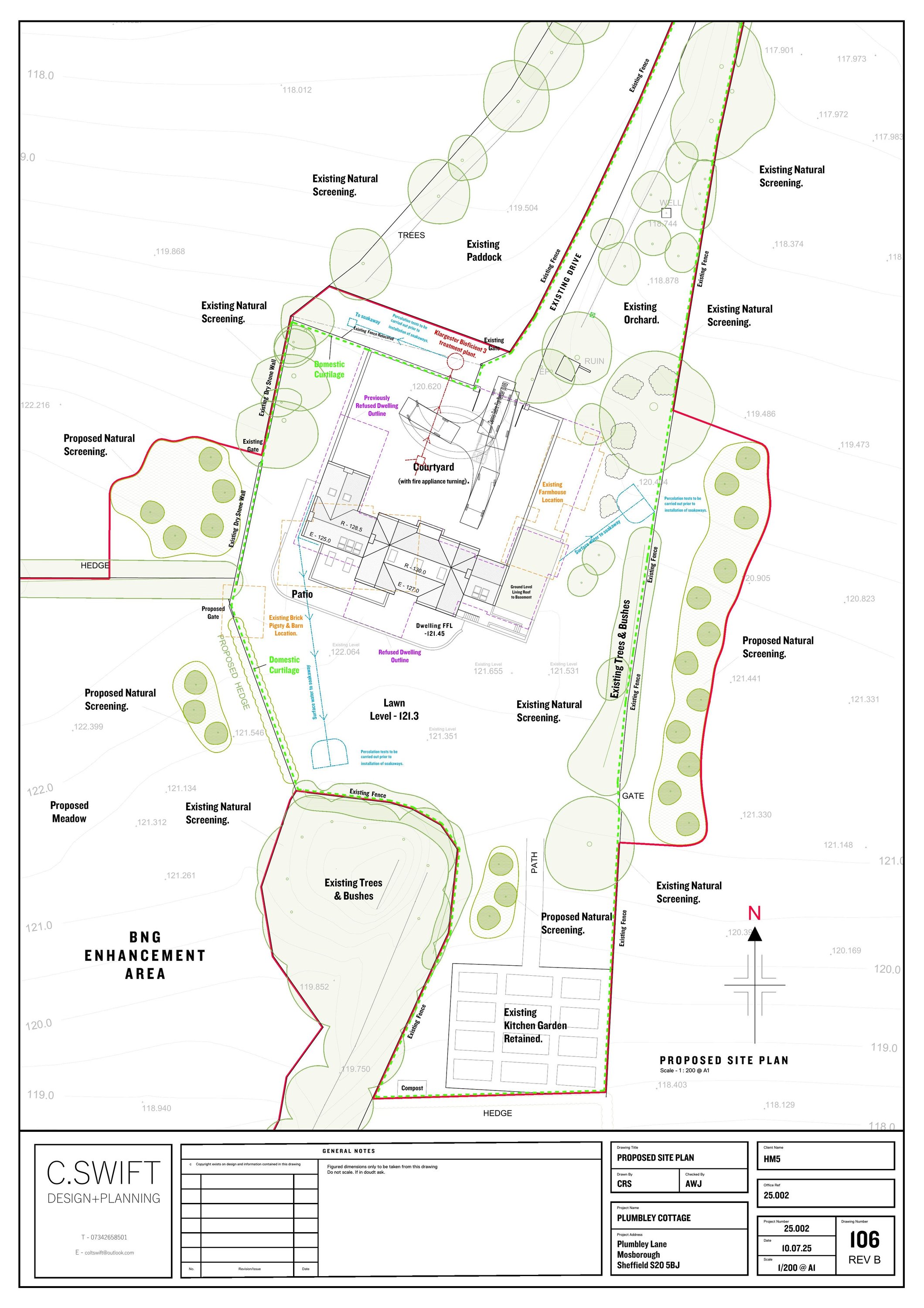
Proposed block plan
Application (Drawings)
Not archived · Council Link
Proposed elevations
Application (Drawings)
Not archived · Council Link
Application (Drawings)
Archived · Council Link
Application (Drawings)
Archived · Council Link
Application (Drawings)
Archived · Council Link
Site notices
Photographs
Not archived · Council Link
Sustainability statement and appendix
Application (Supporting Submis
Not archived · Council Link

Take Action

Make your voice heard. Authorities need to hear from people who support new homes.

✉️ Write Email in Support View on Council Portal